Cargando...
El proyecto Ciudad de la Música alrededor del Auditorio Municipal se inició el año 1989. La redacción del programa preveía un programa de actividades musicales que superaba ampliamente la de una estricta sala de conciertos. Así, el nuevo centro alojaría en las tres salas de audición (sinfónica, cámara y polivalente) una escuela de altos estudios musicales, y un museo de la música. El presente proyecto de construcción del Museo de la Música completó el conjunto del auditorio.
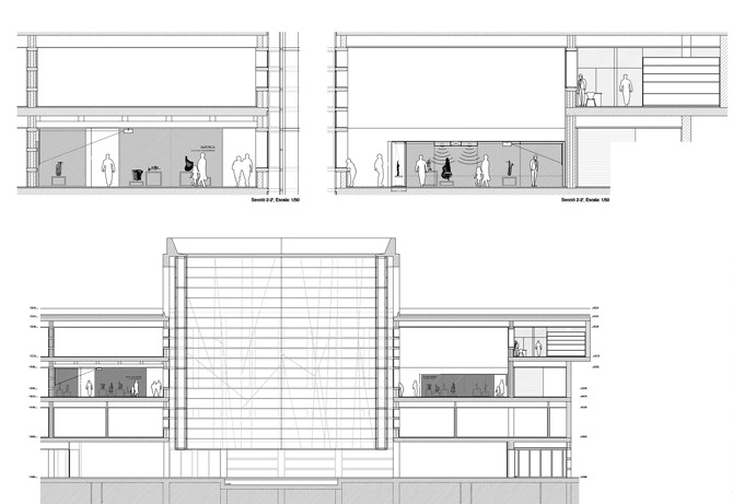
El proyecto se desarrolla en las plantas segunda, tercera y sótano del edificio. Los espacios donde se aloja el programa del museo se organizan alrededor de un gran patio: el atrio central abierto en toda su altura con el impluvium de vidrio soporte de las pinturas de Pablo Palazuelo.
El acceso principal al museo se realiza desde la escalera principal de la plaza de las Artes que llega directamente a la planta segunda. En esta planta se agrupa toda la administración del museo, recepción e información, servicios, sala de acogida, exposición permanente y exposición temporal. Desde la planta segunda vía las escaleras interiores se llega a la planta tercera donde se encuentra la biblioteca. Finalmente, en la planta sótano se encuentran el taller de restauración y fotografía, el archivo de publicaciones, administración y el fondo de reserva.
Información general
Museo de la Música de Barcelona
AÑO
Opción de visitas
Dirección
c/ Lepant, 150
08013 Barcelona - Barcelona
Latitud: 41.398555322
Longitud: 2.1854143908
Clasificación
Sistema constructivo
Estructura de pórticos y losas de hormigón armado blanco
Superficie construida
Arquitectos participantes
Colaboradores
Información aportada por
Arriola & Fiol arquitectes
Enlaces web
-
Museo de la Música de Barcelona Plan 1 - Arriola & Fiol arquitectes -
Museo de la Música de Barcelona 5 - Arriola & Fiol arquitectes
Ubicación
https://content.gnoss.ws/carq/https://content.gnoss.ws/carq//imagenes/Documentos/imgsem/2c/2ccb/2ccbe670-8e6d-43cd-b219-91046592623b/b7daa257-49f0-4a1d-ae84-265372e7ab8c.jpg, 0000034294/MusMusica_img03_300dpi_2872x1890.jpg
https://content.gnoss.ws/carq/https://content.gnoss.ws/carq//imagenes/Documentos/imgsem/2c/2ccb/2ccbe670-8e6d-43cd-b219-91046592623b/68929c22-4e23-4d62-887b-5f6384d2e6d5.jpg, 0000034294/1201 ESMUC 101.jpg
https://content.gnoss.ws/carq/https://content.gnoss.ws/carq//imagenes/Documentos/imgsem/2c/2ccb/2ccbe670-8e6d-43cd-b219-91046592623b/3f4b13f5-b555-46e6-b7ae-f5d87136e474.jpg, 0000034294/1201 ESMUC 102.jpg
https://content.gnoss.ws/carq/https://content.gnoss.ws/carq//imagenes/Documentos/imgsem/2c/2ccb/2ccbe670-8e6d-43cd-b219-91046592623b/9158eef8-e367-4705-bb1b-f3be3bca6b11.jpg, 0000034294/12.jpg
https://content.gnoss.ws/carq/https://content.gnoss.ws/carq//imagenes/Documentos/imgsem/2c/2ccb/2ccbe670-8e6d-43cd-b219-91046592623b/242464e1-1b46-4ec6-b1d7-f3e0f6976967.jpg, 0000034294/13.jpg
https://content.gnoss.ws/carq//imagenes/Documentos/imgsem/2c/2ccb/2ccbe670-8e6d-43cd-b219-91046592623b/c4e1df71-1cb6-4534-bf00-b9e5441a695f.jpg, 0000034294/MusMusica_dib22_300dpi_1985x1417.jpg
https://content.gnoss.ws/carq//imagenes/Documentos/imgsem/2c/2ccb/2ccbe670-8e6d-43cd-b219-91046592623b/a3784bb8-f531-45d9-85be-f943a91c4360.jpg, 0000034294/Distribuzione degli spazi.jpg
https://content.gnoss.ws/carq//imagenes/Documentos/imgsem/2c/2ccb/2ccbe670-8e6d-43cd-b219-91046592623b/efde02a0-e4fc-4d83-a1b7-8b87363b0019.jpg, 0000034294/Pages from Doc 2 PLANOLS-2.jpg
https://content.gnoss.ws/carq//imagenes/Documentos/imgsem/2c/2ccb/2ccbe670-8e6d-43cd-b219-91046592623b/0902414f-987e-46e3-bfc6-7b61514ce7a4.jpg, 0000034294/Prospetti interni.jpg
https://content.gnoss.ws/carq//imagenes/Documentos/imgsem/2c/2ccb/2ccbe670-8e6d-43cd-b219-91046592623b/b28d9dae-461d-49f2-b686-a0b10a00a15e.jpg, 0000034294/Sezione trasversale.jpg
https://content.gnoss.ws/carq//imagenes/Documentos/imgsem/2c/2ccb/2ccbe670-8e6d-43cd-b219-91046592623b/8e96c023-99ba-46c3-9398-65e396e16960.jpg, 0000034294/plan floor 2.jpg
https://content.gnoss.ws/carq//imagenes/Documentos/imgsem/2c/2ccb/2ccbe670-8e6d-43cd-b219-91046592623b/286cf493-5e6a-48e4-9d59-7fc72f8e1739.jpg, 0000034294/image21.jpg
https://content.gnoss.ws/carq//imagenes/Documentos/imgsem/2c/2ccb/2ccbe670-8e6d-43cd-b219-91046592623b/9206ead3-210f-464e-985f-585db1573248.jpg, 0000034294/Pages from Doc 2 PLANOLS-4.jpg
https://content.gnoss.ws/carq//imagenes/Documentos/imgsem/2c/2ccb/2ccbe670-8e6d-43cd-b219-91046592623b/4db52e0e-5cc7-4d81-9530-d13be571d409.jpg, 0000034294/plan floor2.jpg
https://content.gnoss.ws/carq//imagenes/Documentos/imgsem/2c/2ccb/2ccbe670-8e6d-43cd-b219-91046592623b/5207826e-0d3e-4a63-aa24-3be47b83efa8.jpg, 0000034294/sections2.jpg
https://content.gnoss.ws/carq//imagenes/Documentos/imgsem/2c/2ccb/2ccbe670-8e6d-43cd-b219-91046592623b/1b9663d2-2442-481f-bb38-460ff5f23b82.jpg, 0000034294/section.jpg
https://content.gnoss.ws/carq//imagenes/Documentos/imgsem/2c/2ccb/2ccbe670-8e6d-43cd-b219-91046592623b/e9a844f3-c539-4917-939c-1799de77b288.jpg, 0000034294/sections.jpg
https://content.gnoss.ws/carq//imagenes/Documentos/imgsem/2c/2ccb/2ccbe670-8e6d-43cd-b219-91046592623b/895d4af4-19ca-4a05-b34f-b5735fffbfc2.jpg, 0000034294/Pages from Doc 2 PLANOLS.jpg
https://content.gnoss.ws/carq//imagenes/Documentos/imgsem/2c/2ccb/2ccbe670-8e6d-43cd-b219-91046592623b/2f70751e-1d34-4010-b2ff-6e6c1c25e5d4.jpg, 0000034294/MusMusica_dib16_300dpi_4001x2835.jpg




