Cargando...
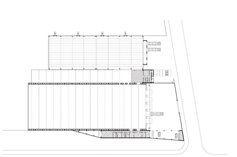
El almacén automatizado era en realidad un gran contenedor que debía soportar un flujo constante e intenso de entradas y salidas de mercancías. Una primera zona de manipulación y control se trató como antesala del gran espacio lleno de estanterías entre las que se movía un sofisticado robot que accedía a cualquier punto del espacio.
La gran nave de 100 m de longitud se cubrió con unas cerchas metálicas de 46,5 m de luz situadas a 15 m de altura. Se apoyaban en cada uno de sus extremos sobre un capitel de hormigón, a modo de zapata de 1,2 x 6 m en planta, que repartía su carga sobre un pilar rectangular ahuecado construido con fábrica de bloque de 20 cm de espesor. La yuxtaposición por testa de estas piezas, individualizadas por la caligrafía de los bajantes, formó los dos grandes muros de las fachadas laterales.
Mediante un ligero cambio de textura de los bloques se diferenció en los muros un zócalo de 3 m de altura que se prolongó hacia la zona de entrada, definió el patio de carga y descarga de camiones, el aparcamiento de coches de los empleados y abrazó también una pequeña construcción dedicada a oficinas y servicios que se situó de manera que no interfiriera en la accesibilidad a la nave.
Los extremos de cualquier opción estructural unidireccional son, por su propia naturaleza, de características muy diferentes a los tramos longitudinales. El proyecto optó por evidenciarlo y trató los dos testeros como cerramientos ligeros muy parecidos a la cubierta. El quiebro que se producía en el plano vertical al seguir la inclinación dada por los capiteles se aprovechó para colocar dos grandes tragaluces que bañaban homogéneamente los fondos interiores de la nave.
Información general
Nave Simón
AÑO
Opción de visitas
Dirección
C/ d'Isaac Peral, 18
08420 Canovelles - Barcelona
Latitud: 41.632384419
Longitud: 2.2804943193
Clasificación
Superficie construida
Estudios de arquitectura participantes
Información aportada por
Ministerio de Transportes, Movilidad y Agenda urbana (MITMA)
-
Clotet, Paricio & Associats -
Clotet, Paricio & Associats -
I BEAU
Ubicación
https://content.gnoss.ws/carq/https://content.gnoss.ws/carq//imagenes/Documentos/imgsem/f6/f6c0/f6c03ed2-e76a-4ca5-8815-53455a3171e0/1e0e2037-03ba-4c53-b4cf-a738d3e55885.jpg, 0000005162/nave simon 1.jpg
https://content.gnoss.ws/carq/https://content.gnoss.ws/carq//imagenes/Documentos/imgsem/f6/f6c0/f6c03ed2-e76a-4ca5-8815-53455a3171e0/8c307030-819b-4494-8239-c161354e1f61.jpg, 0000005162/nave simon 2.jpg
https://content.gnoss.ws/carq/https://content.gnoss.ws/carq//imagenes/Documentos/imgsem/f6/f6c0/f6c03ed2-e76a-4ca5-8815-53455a3171e0/eebc8464-516e-4a12-a99e-39e1fe65180e.jpg, 0000005162/Nave Simon .jpg
https://content.gnoss.ws/carq/https://content.gnoss.ws/carq//imagenes/Documentos/imgsem/f6/f6c0/f6c03ed2-e76a-4ca5-8815-53455a3171e0/9b17d9ea-7bd7-4ad5-9848-bca2760f6995.jpg, 0000005162/Nave Simon 4 .jpg
https://content.gnoss.ws/carq/https://content.gnoss.ws/carq//imagenes/Documentos/imgsem/f6/f6c0/f6c03ed2-e76a-4ca5-8815-53455a3171e0/f7d3716a-4713-4123-9622-b51184da797e.jpg, 0000005162/Nave Simon 1 .jpg
https://content.gnoss.ws/carq/https://content.gnoss.ws/carq//imagenes/Documentos/imgsem/f6/f6c0/f6c03ed2-e76a-4ca5-8815-53455a3171e0/14a13859-c8c3-4284-b3e3-76e22abeceef.jpg, 0000005162/Nave Simon 2 .jpg
https://content.gnoss.ws/carq/https://content.gnoss.ws/carq//imagenes/Documentos/imgsem/f6/f6c0/f6c03ed2-e76a-4ca5-8815-53455a3171e0/4ddf18fd-802f-4607-bd3d-11cde5705825.jpg, 0000005162/Nave Simon 3 .jpg
https://content.gnoss.ws/carq/https://content.gnoss.ws/carq//imagenes/Documentos/imgsem/f6/f6c0/f6c03ed2-e76a-4ca5-8815-53455a3171e0/0d8ae7e8-3ff6-4219-9be1-84ff014b2479.jpg, 0000005162/Nave Simon 5 .jpg
https://content.gnoss.ws/carq/https://content.gnoss.ws/carq//imagenes/Documentos/imgsem/f6/f6c0/f6c03ed2-e76a-4ca5-8815-53455a3171e0/27752225-7614-4dc8-a17f-0c93151ddc3d.jpg, 0000005162/Nave Simon 6 .jpg
https://content.gnoss.ws/carq//imagenes/Documentos/imgsem/f6/f6c0/f6c03ed2-e76a-4ca5-8815-53455a3171e0/a4788c26-74f3-4b11-996d-22b5886c1419.jpg, 0000005162/Nave Simon planta .jpg
https://content.gnoss.ws/carq//imagenes/Documentos/imgsem/f6/f6c0/f6c03ed2-e76a-4ca5-8815-53455a3171e0/dc4d4620-1f2f-49e7-abd4-968bbb9bfa8b.jpg, 0000005162/Nave Simon planta 1 .jpg
https://content.gnoss.ws/carq//imagenes/Documentos/imgsem/f6/f6c0/f6c03ed2-e76a-4ca5-8815-53455a3171e0/e4f2b427-f3a2-4ef9-a95e-211094b70427.jpg, 0000005162/Nave Simon axonometria .jpg
https://content.gnoss.ws/carq//imagenes/Documentos/imgsem/f6/f6c0/f6c03ed2-e76a-4ca5-8815-53455a3171e0/7162892c-8676-43d6-af3c-f13abeb90a5e.jpg, 0000005162/NAVE SIMON P1.jpg




