Cargando...
Como ampliación del Instituto del Hierro y del Acero situado en la Ciudad Universitaria, en el que ya existía anteriormente una nave de experimentación cuya cubierta había sido diseñada por el ingeniero Eduardo Torroja, en 1963 el centro se planteó una ampliación, debido al auge de la experimentación y el desarrollo de los nuevos métodos de tratamiento de la siderurgia, que sirviera de centro puntero de experimentación, investigación científica de minerales y fabricación. De la Sota recibió el encargo de realizar cuatro pabellones para el CENIM, dedicados a corrosión, soldadura, siderurgia y fundición.
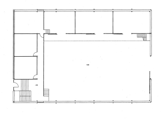
Aportando una solución única para todos los pabellones, que siguen una traza rectangular y compacta, se agrupan las zonas de investigación con laboratorios, oficinas y despachos en la parte delantera del edificio (desarrollado en cuatro plantas), situando detrás la nave de experimentación. Ambas zonas se comunican visualmente mediante una fachada interior vidriada y se diferencian en el tratamiento de los materiales y en su tipología.
En las naves se utiliza una cubierta en diente de sierra, con una iluminación cenital del espacio, forjados de “viroterm” sobre viguetas metálicas y recubrimiento interior de paredes y cubierta para facilitar la absorción de los ruidos. Destaca, asimismo, el tratamiento singular del revestimiento de ladrillo en fachada, en combinación con la estructura metálica vista.
En otro pabellón aparte, separado por una calle y ubicado perpendicularmente a las naves industriales, se encuentra la nave de comedores y cocinas, que está cubierta con planchas de fibrocemento.
Mediante este tratamiento diferenciado (con fundamentos miesianos en la composición general de los volúmenes y los materiales, utilizando paños de ladrillo y chapa propios de la arquitectura industrial), de la Sota implanta con naturalidad el edificio en la Ciudad Universitaria constituyendo un bello ejemplo de inserción de edificación industrial en un entorno ajeno a este tipo de construcciones.
Información general
Naves del Centro Nacional de Investigaciones Metalúrgicas (CENIM)
AÑO
Estado
Obra protegida
Opción de visitas
Dirección
Avda. de Gregorio del Amo, 8
28040 Madrid - Madrid
Latitud: 40.446653234
Longitud: -3.721916228
Clasificación
Sistema constructivo
Estructura Metálica
Superficie construida
Arquitectos participantes
Información aportada por
Fundación DOCOMOMO Ibérico
Fundación Alejandro de la Sota
-
Fondo documental Docomomo Ibérico/© Luis Argüelles -
Fundación Alejandro de la Sota
Ubicación
https://content.gnoss.ws/carq/https://content.gnoss.ws/carq//imagenes/Documentos/imgsem/31/3132/31323874-4904-48e3-b394-3840e98bdf72/6f23c7fe-899b-4d5a-b6d4-38f24dbd5d6c.jpg, 0000011218/63_Z_FO_FI_7_lg.jpg
https://content.gnoss.ws/carq/https://content.gnoss.ws/carq//imagenes/Documentos/imgsem/31/3132/31323874-4904-48e3-b394-3840e98bdf72/d7e96925-f7b5-463b-9902-224517813638.jpg, 0000011218/I_MA_17_055.jpg
https://content.gnoss.ws/carq/https://content.gnoss.ws/carq//imagenes/Documentos/imgsem/31/3132/31323874-4904-48e3-b394-3840e98bdf72/4a9176ae-f055-453a-9cd7-6cce052a32d1.jpg, 0000011218/I_MA_17_065.jpg
https://content.gnoss.ws/carq/https://content.gnoss.ws/carq//imagenes/Documentos/imgsem/31/3132/31323874-4904-48e3-b394-3840e98bdf72/974d148d-ddce-49cd-8f36-6b41039f829b.jpg, 0000011218/I_MA_17_098.jpg
https://content.gnoss.ws/carq//imagenes/Documentos/imgsem/31/3132/31323874-4904-48e3-b394-3840e98bdf72/405afcb5-b6da-40a1-b0e7-15637688b5e8.jpg, 0000011218/63_Z_VA_5_lg.jpg
https://content.gnoss.ws/carq//imagenes/Documentos/imgsem/31/3132/31323874-4904-48e3-b394-3840e98bdf72/5c6b726b-7d66-496f-afa7-c8b13da3e681.jpg, 0000011218/I_MA_17_7.jpg




