Cargando...
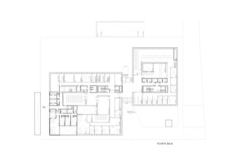
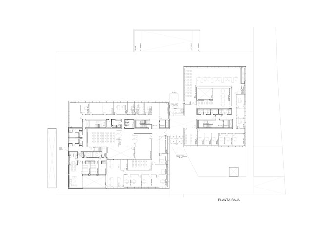
La volumetría de la Jefatura Superior de Policía de Logroño consiste en una relación elemental de elementos prismáticos. Un cuerpo alargado de tres plantas se apoya sobre dos piezas que actúan como zócalo. Los dos accesos peatonales necesariamente diferenciados, de público y funcionarios, se producen por el espacio que separa las dos piezas bajas pero en fachadas opuestas.
La envolvente exterior se materializa con una doble piel: en la pastilla superior, fachadas este y oeste, un primer filtro exterior de lamas móviles de chapa de aluminio perforada y sección triangular protegerá de soleamiento la hoja interior de vidrio; en el basamento, la piel exterior se configura mediante lamas verticales de vidrio doble u-glass para permitir el paso de la luz y proteger de las vistas. Dos patios en planta baja facilitan un interior luminoso e integrar un programa doméstico, como la vivienda del comisario, en un edificio de carácter eminentemente público.
La posición del edificio en la parcela pretende optimizar las posibilidades que su forma ofrece para diferenciar el acceso de vehículos policiales respecto del público que accede a la comisaría para la renovación del DNI, pasaporte o poner una denuncia. Tal separación funcional de circulaciones es básica para el adecuado funcionamiento del conjunto.
Todas las zonas accesibles al público se organizan en planta baja; las oficinas y dependencias policiales en plantas superiores y sótano.
La modularidad, con un interior en construcción seca, facilita tanto la organización interna inicial como el posible intercambio de funciones a lo largo de la vida del edificio.
Información general
Nueva jefatura superior de policía
AÑO
Opción de visitas
Dirección
c/ Serradero, 26
26008 Logrono - La Rioja
Latitud: 42.451097098
Longitud: -2.465552127
Clasificación
Superficie construida
Colaboradores
Estudios de arquitectura participantes
Información aportada por
Colegio Oficial de Arquitectos de La Rioja (COAR)
Matos Castillo arquitectos
Enlaces web
-
Secciones transversales - Matos Castillo Arquitectos -
Planta Baja - Matos Castillo Arquitectos -
Hisao Suzuki
Ubicación
Itinerarios
https://content.gnoss.ws/carq/https://content.gnoss.ws/carq//imagenes/Documentos/imgsem/c7/c76d/c76d742d-5950-4671-9ae0-0ccbf60d66aa/eb428e56-27ad-408d-bc5f-87b72929b30e.jpg, 0000044095/02_1230D-07.jpg
https://content.gnoss.ws/carq/https://content.gnoss.ws/carq//imagenes/Documentos/imgsem/c7/c76d/c76d742d-5950-4671-9ae0-0ccbf60d66aa/c7073b02-39c6-4acd-b1c2-2c741b469f1c.jpg, 0000044095/01_1230-02.jpg
https://content.gnoss.ws/carq/https://content.gnoss.ws/carq//imagenes/Documentos/imgsem/c7/c76d/c76d742d-5950-4671-9ae0-0ccbf60d66aa/833240f4-3066-498b-8003-b8234f6a3f9a.jpg, 0000044095/03_1230D-09.jpg
https://content.gnoss.ws/carq/https://content.gnoss.ws/carq//imagenes/Documentos/imgsem/c7/c76d/c76d742d-5950-4671-9ae0-0ccbf60d66aa/af6587ea-136c-42d9-8ffb-e2b60d20b1e3.jpg, 0000044095/04_1230D-08.jpg
https://content.gnoss.ws/carq/https://content.gnoss.ws/carq//imagenes/Documentos/imgsem/c7/c76d/c76d742d-5950-4671-9ae0-0ccbf60d66aa/7364b9ff-89f5-4f43-b180-b15c4e5ddc4d.jpg, 0000044095/05_1230-04.jpg
https://content.gnoss.ws/carq/https://content.gnoss.ws/carq//imagenes/Documentos/imgsem/c7/c76d/c76d742d-5950-4671-9ae0-0ccbf60d66aa/7c423ac1-e147-45a8-aed9-e333e35e3834.jpg, 0000044095/06_1230-06.jpg
https://content.gnoss.ws/carq/https://content.gnoss.ws/carq//imagenes/Documentos/imgsem/c7/c76d/c76d742d-5950-4671-9ae0-0ccbf60d66aa/d1db1eaa-b29b-4ecc-9a14-a6f63855cad9.jpg, 0000044095/08_1230-05.jpg
https://content.gnoss.ws/carq/https://content.gnoss.ws/carq//imagenes/Documentos/imgsem/c7/c76d/c76d742d-5950-4671-9ae0-0ccbf60d66aa/b3fcf20e-3a58-4328-9936-00d07cd5cb51.jpg, 0000044095/09_1230-07.jpg
https://content.gnoss.ws/carq/https://content.gnoss.ws/carq//imagenes/Documentos/imgsem/c7/c76d/c76d742d-5950-4671-9ae0-0ccbf60d66aa/7ca5b720-d3de-4ab0-a12a-d55e2ec9afa4.jpg, 0000044095/10_1230-08.jpg
https://content.gnoss.ws/carq/https://content.gnoss.ws/carq//imagenes/Documentos/imgsem/c7/c76d/c76d742d-5950-4671-9ae0-0ccbf60d66aa/13d99417-a498-4487-a5b7-f621cde336de.jpg, 0000044095/11_1230-09.jpg
https://content.gnoss.ws/carq/https://content.gnoss.ws/carq//imagenes/Documentos/imgsem/c7/c76d/c76d742d-5950-4671-9ae0-0ccbf60d66aa/3a427ea4-bed0-404e-b3e7-dcaaf748184d.jpg, 0000044095/12_1230-10.jpg
https://content.gnoss.ws/carq/https://content.gnoss.ws/carq//imagenes/Documentos/imgsem/c7/c76d/c76d742d-5950-4671-9ae0-0ccbf60d66aa/a470f369-301e-4d03-984d-0407f8cd14d6.jpg, 0000044095/13_1230D-28.jpg
https://content.gnoss.ws/carq/https://content.gnoss.ws/carq//imagenes/Documentos/imgsem/c7/c76d/c76d742d-5950-4671-9ae0-0ccbf60d66aa/5e47e9c1-0314-4f31-a2b3-69512ded2b79.jpg, 0000044095/14_1230D-22.jpg
https://content.gnoss.ws/carq/https://content.gnoss.ws/carq//imagenes/Documentos/imgsem/c7/c76d/c76d742d-5950-4671-9ae0-0ccbf60d66aa/8d8b5c15-aa14-40ec-8d04-91870d7d064f.jpg, 0000044095/15_1230-11.jpg
https://content.gnoss.ws/carq//imagenes/Documentos/imgsem/c7/c76d/c76d742d-5950-4671-9ae0-0ccbf60d66aa/cbd87de8-9dd9-4b9c-ace1-738c65373c96.jpg, 0000044095/01_planta baja.jpg
https://content.gnoss.ws/carq//imagenes/Documentos/imgsem/c7/c76d/c76d742d-5950-4671-9ae0-0ccbf60d66aa/003b0a57-e849-4383-9c74-d018be343c63.jpg, 0000044095/08_Secciones transversales.jpg
https://content.gnoss.ws/carq//imagenes/Documentos/imgsem/c7/c76d/c76d742d-5950-4671-9ae0-0ccbf60d66aa/682094be-a7c4-4041-aa12-640cce3c7a96.jpg, 0000044095/02_planta primera.jpg
https://content.gnoss.ws/carq//imagenes/Documentos/imgsem/c7/c76d/c76d742d-5950-4671-9ae0-0ccbf60d66aa/fe312c34-b26d-43e7-9c41-249f0f15132a.jpg, 0000044095/06_Alzados.jpg
https://content.gnoss.ws/carq//imagenes/Documentos/imgsem/c7/c76d/c76d742d-5950-4671-9ae0-0ccbf60d66aa/151b210b-d78a-491f-9bc6-b5ff7bc36c85.jpg, 0000044095/07_Secciones longitudinales.jpg
https://content.gnoss.ws/carq//imagenes/Documentos/imgsem/c7/c76d/c76d742d-5950-4671-9ae0-0ccbf60d66aa/9cfb5324-5080-499e-bf2e-6f18ce3cc6f2.jpg, 0000044095/04_planta tercera.jpg
https://content.gnoss.ws/carq//imagenes/Documentos/imgsem/c7/c76d/c76d742d-5950-4671-9ae0-0ccbf60d66aa/486a4ca9-0dac-4c5b-a350-57470a6aa9ad.jpg, 0000044095/03_planta segunda.jpg
https://content.gnoss.ws/carq//imagenes/Documentos/imgsem/c7/c76d/c76d742d-5950-4671-9ae0-0ccbf60d66aa/340501c5-e621-4709-af54-72dcfef3edbd.jpg, 0000044095/DSC02712RED.jpg
https://content.gnoss.ws/carq//imagenes/Documentos/imgsem/c7/c76d/c76d742d-5950-4671-9ae0-0ccbf60d66aa/2f51b2c3-8bb1-4509-a532-9dd716d7263a.jpg, 0000044095/DSC02714RED.jpg




