Cargando...
Los Docks de Madrid eran un conjunto de almacenes que operaban según una logística ferroviaria de inspiración británica –de ahí su nombre-, construidos a principios del siglo XX junto a la estación de Atocha. Cuando perdieron vigencia, una parte del conjunto se transformó en las dependencias militares del cuartel de artillería de Daoiz y Velarde. Para recuperarlo, el Ayuntamiento traza un ambicioso plan que incluye la transformación de su frente a la avenida Ciudad de Barcelona como sede de la Junta Municipal de Distrito.
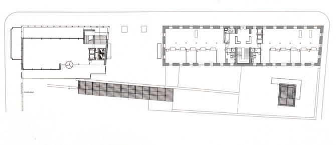
Se ha rehabilitado en primer lugar uno de los dos edificios de ladrillo que flanqueaban el “arco triunfal” de acceso al cuarto. Desaparecido con anterioridad el otro, se proyecta en su lugar uno de nueva planta que reequilibra la simétrica composición original. Finalmente, un zócalo que aloja las dependencias policiales vincula ambos edificios bajo el arco y actúa como acceso único común.
Esta disposición –un zócalo común a dos cuerpos– permite que las tres piezas operen como un solo sistema y se materializa según una estrategia orientada a introducir la actividad pública del distrito al interior del antiguo tinglado militar, transformando un espacio residual en un ámbito de convivencia.
No nos corresponde proyectar esta plaza interior para convivir –solo imaginarla– pero sí hacerla posible, lo que equivale a establecer los vínculos perímetro-interior y calle-plaza que la hagan verosímil. Estaba previsto que la policía municipal ocupase un nuevo edificio situado sobre el frente de la calle Téllez, lo que habría aislado el interior de la manzana de su viario lateral. Hemos preferido alojar la mencionada comisaría en el zócalo y así la plaza interior queda vinculada al barrio. Del otro lado, en el frente de la avenida Ciudad de Barcelona, el zócalo se talla en planos de rampa de forma que la superficie de la plaza fluye a través de sus pendientes hasta la avenida, vinculando también calle y plaza.
Para la entrada a la comisaría una pequeña caja de vidrio perfora el zócalo y terminada la obra, se ha añadido un ascensor de escaso acierto. El arco conserva de este modo su función original de acceso y su simbolismo como tal.
La arquitectura que rehabilita el bloque de ladrillo centra su atención en recuperar la estructura metálica roblonada y en revelar su tipología de nave. La arquitectura de nueva planta sustenta su interés en el doble papel de restituir la envolvente desaparecida de la manzana y en la responsabilidad de representar el carácter institucional y público de la Junta. Para lo primero se respetan los parámetros de alineación, altura de zócalo, cornisa, fondo y crujía que el lugar exige. Para lo segundo, se construye el edificio como un bloque de lamas. La percepción inmediata de esta caja, al igual que en los almacenes y tinglados originales, sugiere una arquitectura densa y opaca.
En la percepción lejana, la que anuncia la Junta Institucional al visitante, el bloque resulta liviano, transparente e ingrávido. Al mismo tiempo abierto y luminoso, como representación democrática de la institución pública y, a su vez, tan cerrado y hermético como una fábrica de ladrillo.
Información general
Nueva Junta Municipal de Retiro
AÑO
Opción de visitas
Dirección
plza. de Daoíz y Velarde, 2
28007 Madrid - Madrid
Latitud: 40.402367953
Longitud: -3.677521
Clasificación
Materiales construcción
Superficie construida
Arquitectos participantes
Colaboradores
Empresa Municipal de la Vivienda (Contratista)
Nicolás Gabicagogeascoa (Arquitecto)
Necso-Entrecanales-Cubiertas (Constructora)
Atei (Ingeniería de Instalaciones)
Fernández Molina Obras y Servicios S.A (Constructora)
Estudios de arquitectura participantes
Información aportada por
Colegio Oficial de Arquitectos de Madrid (COAM)
Ubicación
https://content.gnoss.ws/carq/https://content.gnoss.ws/carq//imagenes/Documentos/imgsem/aa/aaa7/aaa7d2c8-fb62-4361-be06-75070c172d06/b7b2c15b-50bd-4fc0-853e-05f9afdf60e9.png, 0000054508/Junta Municipal Retiro_1.png
https://content.gnoss.ws/carq/https://content.gnoss.ws/carq//imagenes/Documentos/imgsem/aa/aaa7/aaa7d2c8-fb62-4361-be06-75070c172d06/1f6ae98c-cac4-46bc-a831-c47f489658a6.png, 0000054508/Junta Municipal Retiro_2.png
https://content.gnoss.ws/carq/https://content.gnoss.ws/carq//imagenes/Documentos/imgsem/aa/aaa7/aaa7d2c8-fb62-4361-be06-75070c172d06/aa504ae8-c760-4eab-8695-844773665b4a.png, 0000054508/Junta Municipal Retiro_3.png
https://content.gnoss.ws/carq/https://content.gnoss.ws/carq//imagenes/Documentos/imgsem/aa/aaa7/aaa7d2c8-fb62-4361-be06-75070c172d06/e274e52a-7183-4b31-bcb7-56e906587d93.png, 0000054508/Junta Municipal Retiro_4.png
https://content.gnoss.ws/carq/https://content.gnoss.ws/carq//imagenes/Documentos/imgsem/aa/aaa7/aaa7d2c8-fb62-4361-be06-75070c172d06/1ce0ff46-875d-4b35-bf83-9e24bce2f8ac.png, 0000054508/Junta Municipal Retiro_5.png
https://content.gnoss.ws/carq//imagenes/Documentos/imgsem/aa/aaa7/aaa7d2c8-fb62-4361-be06-75070c172d06/aab81f51-5ea1-4309-b126-ff5d0a5cf248.png, 0000054508/Junta Municipal Retiro_b.png
https://content.gnoss.ws/carq//imagenes/Documentos/imgsem/aa/aaa7/aaa7d2c8-fb62-4361-be06-75070c172d06/a3698820-b2c5-4490-8337-ae43690b9581.png, 0000054508/Junta Municipal Retiro_a.png



