Cargando...
En la esquina sureste del término municipal de Madrid, donde este ofrece su cota más deprimida, se encuentra el área de Valdemingómez, un territorio árido y degradado, históricamente dedicado al vertido de los residuos de la ciudad. El proyecto forma parte de un conjunto de acciones destinadas a obtener un sistema racional de tratamiento y reciclado de la basura, así como a la transformación e incorporación de sus terrenos al conjunto del futuro Parque Regional de Sureste, una de las apuestas más atractivas de la ciudad para equilibrar las diferencias sociales y medioambientales norte-sur.
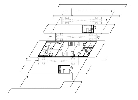
El edificio de reciclado centraliza un conjunto heterogéneo de procesos de selección y procesado de la basura, almacenaje, talleres y oficinas, unificados bajo una gran cubierta verde inclinada que se hace eco tanto del carácter gravitatorio del proceso, como de la ladera original en la que se asienta, “restituida” aprovechando el compost producido. El edificio queda envuelto en policarbonato reciclado unificando los distintos programas e incorporando un área museográfica con un recorrido para visitantes destinado a la sensibilización medioambiental de los ciudadanos.
Este edificio verde, el policarbonato, la estructura ligeramente atornillada y el conjunto de acabados interiores se hacen eco de este espíritu, componiendo un sistema constructivo que muestra el mayor compromiso medioambiental que puede obtenerse hoy con las técnicas disponibles en el mercado. La instalación tiene una vida útil de 25 años. Tras este período, podrá reciclarse como equipamiento del parque o desmantelarse reciclando sus componentes.
Información general
Nueva planta de reciclaje de residuos urbanos
AÑO
Opción de visitas
Dirección
ca. Real de merinas, s/n
28051 Valdemingomez - Madrid
Latitud: 40.334002
Longitud: -3.589811999
Clasificación
Superficie construida
Estudios de arquitectura participantes
Información aportada por
estudio Herreros
EUMies Award
Ábalos + Sentkiewicz
-
EUMies Award -
EUMies Award -
Luis Asín -
Luis Asín
Ubicación
https://content.gnoss.ws/carq/https://content.gnoss.ws/carq//imagenes/Documentos/imgsem/10/1044/10448af4-8a8b-4e77-b279-d5955603024c/c9efa67f-8a6a-4bf3-9158-4eb766431aad.jpg, 0000003622/1.jpg
https://content.gnoss.ws/carq/https://content.gnoss.ws/carq//imagenes/Documentos/imgsem/10/1044/10448af4-8a8b-4e77-b279-d5955603024c/590714d5-5931-4b8c-8ca6-bfa59c1099eb.jpg, 0000003622/2_09.jpg
https://content.gnoss.ws/carq/https://content.gnoss.ws/carq//imagenes/Documentos/imgsem/10/1044/10448af4-8a8b-4e77-b279-d5955603024c/226554f7-0d59-491e-bd0c-186af53c6bd2.jpg, 0000003622/2.jpg
https://content.gnoss.ws/carq/https://content.gnoss.ws/carq//imagenes/Documentos/imgsem/10/1044/10448af4-8a8b-4e77-b279-d5955603024c/d5cdc250-6337-49bb-9674-66e602286368.jpg, 0000003622/7_03.jpg
https://content.gnoss.ws/carq/https://content.gnoss.ws/carq//imagenes/Documentos/imgsem/10/1044/10448af4-8a8b-4e77-b279-d5955603024c/cdf04b2c-c269-42eb-9ec4-6d852d050d9e.jpg, 0000003622/6_02.jpg
https://content.gnoss.ws/carq/https://content.gnoss.ws/carq//imagenes/Documentos/imgsem/10/1044/10448af4-8a8b-4e77-b279-d5955603024c/a0035c21-ff40-4ac4-b21d-38cd099a3635.jpg, 0000003622/3_HA_VALDEMINGOMEZ_30.jpg
https://content.gnoss.ws/carq/https://content.gnoss.ws/carq//imagenes/Documentos/imgsem/10/1044/10448af4-8a8b-4e77-b279-d5955603024c/4a755f35-7e57-46eb-8ff5-cbce0c463ed0.jpg, 0000003622/3_10.jpg
https://content.gnoss.ws/carq//imagenes/Documentos/imgsem/10/1044/10448af4-8a8b-4e77-b279-d5955603024c/481762b8-e030-46b8-ad89-c5d2e69f02a9.jpg, 0000003622/alzado.jpg
https://content.gnoss.ws/carq//imagenes/Documentos/imgsem/10/1044/10448af4-8a8b-4e77-b279-d5955603024c/3d0ebcfe-bc24-4f1a-a6ea-8208d554328f.jpg, 0000003622/New-Recycling-Plant-for-Urban-Waste.jpg
https://content.gnoss.ws/carq//imagenes/Documentos/imgsem/10/1044/10448af4-8a8b-4e77-b279-d5955603024c/dd0072d4-d2ff-418a-8297-735b7d52d426.jpg, 0000003622/MAQUETA_13.jpg
https://content.gnoss.ws/carq//imagenes/Documentos/imgsem/10/1044/10448af4-8a8b-4e77-b279-d5955603024c/689c40cc-4a5d-48de-8df5-95dd19ceb00e.jpg, 0000003622/New Recycling Plant for Urban Waste1.jpg
https://content.gnoss.ws/carq//imagenes/Documentos/imgsem/10/1044/10448af4-8a8b-4e77-b279-d5955603024c/498db689-a3ef-45f3-852f-1f9886c39e4e.png, 0000003622/planta.png
https://content.gnoss.ws/carq//imagenes/Documentos/imgsem/10/1044/10448af4-8a8b-4e77-b279-d5955603024c/f9733758-2610-49c6-991a-dd8243dd0bca.png, 0000003622/detalles.png





