Cargando...
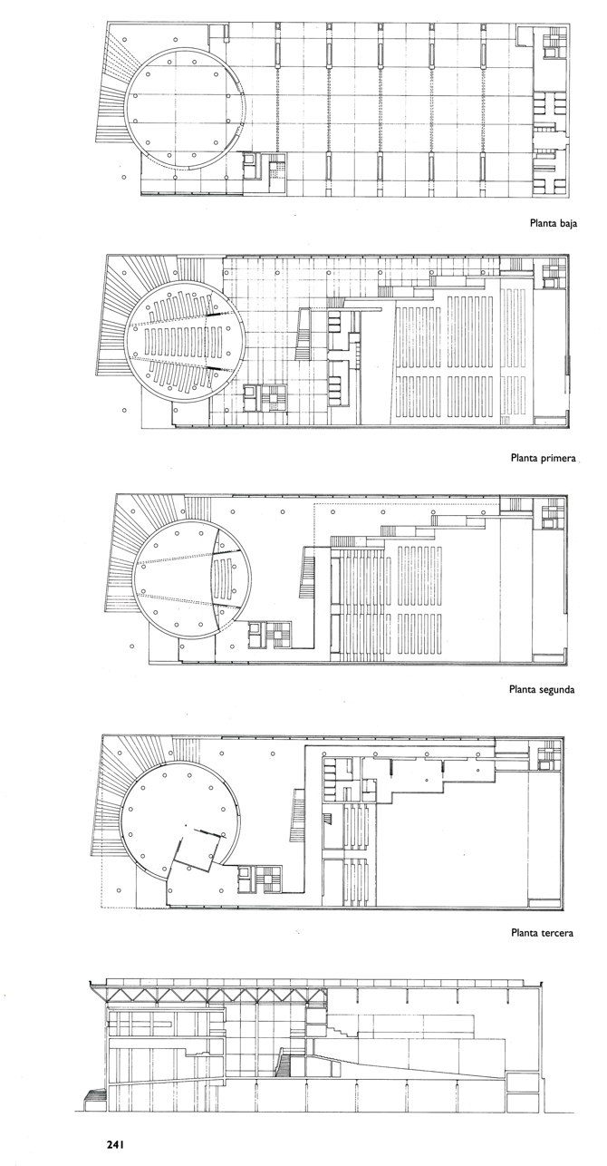
El edificio para el pabellón de Congresos y Exposiciones de la Feria Internacional de Muestras de Asturias se concibe como un gran cajón de vidrio y acero corten levantado sobre un zócalo de piedra. Este cajón de 24 × 62 m de planta y 13 m de altura se construye mediante pilares metálicos ligeramente retranqueados del plano de fachada y sobre los que descansan las cerchas metálicas, que soportan los forjados de cubierta. En su vacío interior se encuentran tres piezas: una cilíndrica y totalmente exenta; otra, un paralelepípedo adosado a las fachadas exteriores en dos de sus caras; y una tercera, mas esbelta y liviana que, en forma de torre cuadrada, aloja las circulaciones verticales. Entre ellas se encuentra el gran volumen vacío de la plaza elevada o vestíbulo del pabellón.
Desde el vestíbulo se percibe el espacio interior del gran cajón, así como el volumen de las piezas ya descritas. La relación entre el espacio interior y exterior del pabellón y sus piezas interiores queda ambiguamente establecida. En su vacío interior se encuentran tres piezas: una cilíndrica y totalmente exenta; otra, un paralelepípedo adosado a las fachadas exteriores en dos de sus caras; y una tercera, mas esbelta y liviana, que en forma de torre cuadrada aloja las circulaciones verticales. Entre ellas se encuentra el gran volumen vacío de la plaza elevada o vestíbulo del pabellón.
Desde el vestíbulo se percibe el espacio interior del gran cajón, así como el volumen de las piezas ya descritas. La relación entre el espacio interior y exterior del pabellón y sus piezas interiores queda ambiguamente establecida. La nitidez de la forma y el clarísimo orden de la estructura de pilares y vigas se contraponen a la libertad con la que se disponen las piezas interiores. Se establece ahí otra de las relaciones que tensionan el espacio interior del pabellón.
Los elementos constructivos son igualmente utilizados para proporcionar tensión al edificio: el vidrio de los grandes muros cortina desarrollados con la tecnología de acero o las grandes celosías de cubierta se oponen, dialogando con ellos, a la piedra del zócalo exterior y del pavimento del vestíbulo.
Información general
Pabellón de Congresos y Exposiciones de Gijón (Museo del Pueblo de Asturias)
AÑO
Opción de visitas
Dirección
p.º Dr. Fleming, 877
33203 Gijon - Asturias
Latitud: 43.537071222
Longitud: -5.634701505
Clasificación
Superficie construida
Estudios de arquitectura participantes
Información aportada por
Colegio Oficial de Arquitectos de Asturias (COAA)
Enlaces web
-
Secciones - JUNQUERA Arquitectos
Ubicación
Itinerarios
https://content.gnoss.ws/carq/https://content.gnoss.ws/carq//imagenes/Documentos/imgsem/fc/fc6c/fc6c6667-3667-4140-9f31-31c7553226bc/84b3d4fd-a35d-41a8-b860-c8b4810b8ce4.jpg, 0000028848/gijon_f11_240ppp 150ppp.jpg
https://content.gnoss.ws/carq/https://content.gnoss.ws/carq//imagenes/Documentos/imgsem/fc/fc6c/fc6c6667-3667-4140-9f31-31c7553226bc/c2c0f167-8f61-41cb-b7d6-ba5765ef5538.jpg, 0000028848/1.jpg
https://content.gnoss.ws/carq/https://content.gnoss.ws/carq//imagenes/Documentos/imgsem/fc/fc6c/fc6c6667-3667-4140-9f31-31c7553226bc/f68419a2-a34d-4f7b-82ee-f295f049c8c5.jpg, 0000028848/2.jpg
https://content.gnoss.ws/carq/https://content.gnoss.ws/carq//imagenes/Documentos/imgsem/fc/fc6c/fc6c6667-3667-4140-9f31-31c7553226bc/a6d4277f-dc98-4ec2-9bfc-a1369bb7c84b.jpg, 0000028848/3.jpg
https://content.gnoss.ws/carq//imagenes/Documentos/imgsem/fc/fc6c/fc6c6667-3667-4140-9f31-31c7553226bc/dc398ad3-cc6d-4d8f-b5e5-a8b4a51aa4c4.jpg, 0000028848/PLANTAS 150ppp.jpg




