Cargando...
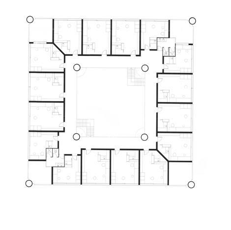
Edificio situado en la Ciutat Lladró de Tavernes Blanques, donde se situaba la producción, diseño y oficinas de la empresa.
El Pabellón de escultores, en forma de pirámide flotante sostenida por columnas en sus cuatro esquinas, fue un edificio diseñado expresamente para alojar a los escultores de nuevas piezas en despachos a su medida que pusieran en valor su trabajo de cara a los visitantes.
Información general
Pabellón Escultores Lladró
AÑO
Opción de visitas
Dirección
C/ Alboraia,
46016 Tavernes Blanques - València -Tavernes Blanques
Latitud: 39.504354563
Longitud: -0.361582461
Superficie construida
Arquitectos participantes
Información aportada por
María Aucejo Mollà
Enlaces web
-
Arxiu CTAV -
Arxiu CTAV -
Arxiu CTAV -
Arxiu CTAV -
Arxiu CTAV -
Arxiu CTAV
Ubicación
Itinerarios
https://content.gnoss.ws/carq/https://content.gnoss.ws/carq//imagenes/Documentos/imgsem/ba/ba73/ba735c00-b030-48d1-8872-05ca9799cb7b/602bed3b-c2b7-4e43-97d7-4238344aa7a1.png, 0000106053/Foto ct-Arxiu CTAV.png
https://content.gnoss.ws/carq/https://content.gnoss.ws/carq//imagenes/Documentos/imgsem/ba/ba73/ba735c00-b030-48d1-8872-05ca9799cb7b/f276c012-71a5-41d2-add9-111a6cb90b43.png, 0000106053/ImageServlet (8).png
https://content.gnoss.ws/carq/https://content.gnoss.ws/carq//imagenes/Documentos/imgsem/ba/ba73/ba735c00-b030-48d1-8872-05ca9799cb7b/4d67bc5d-c898-45aa-8e0b-05977dfcb06d.png, 0000106053/Foto exterior-Arxiu CTAV.png
https://content.gnoss.ws/carq/https://content.gnoss.ws/carq//imagenes/Documentos/imgsem/ba/ba73/ba735c00-b030-48d1-8872-05ca9799cb7b/213b162e-bf38-4f85-bb6b-8c8b2c94d6ad.png, 0000106053/Foto interior-Arxiu CTAV.png
https://content.gnoss.ws/carq/https://content.gnoss.ws/carq//imagenes/Documentos/imgsem/ba/ba73/ba735c00-b030-48d1-8872-05ca9799cb7b/ce9ac4be-dbdb-4deb-8d2f-9d1c8cae0982.png, 0000106053/Foto exterior jardin-Arxiu CTAV.png
https://content.gnoss.ws/carq/https://content.gnoss.ws/carq//imagenes/Documentos/imgsem/ba/ba73/ba735c00-b030-48d1-8872-05ca9799cb7b/e5284c2d-6e4e-4f76-bc81-eb2667226c9a.png, 0000106053/Foto ct2-Arxiu CTAV.png
https://content.gnoss.ws/carq//imagenes/Documentos/imgsem/ba/ba73/ba735c00-b030-48d1-8872-05ca9799cb7b/1661049f-9ed9-4e17-be99-61315a1ecb2c.jpg, 0000106053/_planta_baja-Arxiu CTAV.jpg
https://content.gnoss.ws/carq//imagenes/Documentos/imgsem/ba/ba73/ba735c00-b030-48d1-8872-05ca9799cb7b/fe4a1b65-cccd-4946-b079-78c9abed3c0a.jpg, 0000106053/_planta_primera-Arxiu CTAV.jpg
https://content.gnoss.ws/carq//imagenes/Documentos/imgsem/ba/ba73/ba735c00-b030-48d1-8872-05ca9799cb7b/d00f126b-9ece-4304-8ab0-085ca571ca04.jpg, 0000106053/_seccion-Arxiu CTAV.jpg
https://content.gnoss.ws/carq//imagenes/Documentos/imgsem/ba/ba73/ba735c00-b030-48d1-8872-05ca9799cb7b/d2b3dac7-3547-44a7-b7e3-a9686ab4b624.jpg, 0000106053/_perspectiva-Arxiu CTAV.jpg
https://content.gnoss.ws/carq//imagenes/Documentos/imgsem/ba/ba73/ba735c00-b030-48d1-8872-05ca9799cb7b/ac0c31ec-888f-4bc9-80da-d3bbcb397b3c.jpg, 0000106053/_alzado-Arxiu CTAV.jpg







