Cargando...
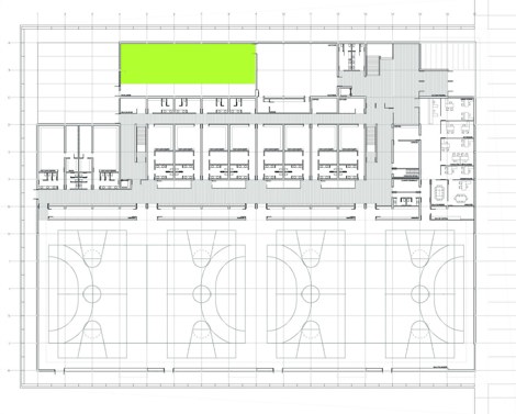
Las dimensiones de la parcela, su situación dentro del conjunto del campus y las condiciones del programa de necesidades planteado, han incidido decisivamente en la organización del pabellón polideportivo y en su implantación, haciendo que una planta baja en extensión, albergue la mayor parte del programa.
El edificio se organiza en tres franjas longitudinales de diferente altura, en las que se acomodan los diversos usos establecidos. La mayor parte de la planta corresponde a la sala polivalente, con unas dimensiones interiores de 88,50 x 30,00 m y una altura libre de 12,60 m. La franja central cuenta con tres plantas, mientras que la franja que se orienta al noreste tiene con una o dos plantas de altura según las zonas.
Información general
Pabellón polideportivo de la Universitat Jaume I
AÑO
Opción de visitas
Dirección
c/ Universitat Jaume I,
12006 Castello de la Plana - Castelló
Latitud: 39.994307028
Longitud: -0.071093702
Clasificación
Superficie construida
Arquitectos participantes
Estudios de arquitectura participantes
Información aportada por
Basilio Tobías Pintre Estudio
Enlaces web
-
Lluís Casals -
Planta baja - Estudio Basilio Tobías -
Lluís Casals -
Secciones - Estudio Basilio Tobías
Ubicación
Itinerarios
https://content.gnoss.ws/carq/https://content.gnoss.ws/carq//imagenes/Documentos/imgsem/87/87d2/87d2d103-9f73-4a0f-afd5-6627a4a5bb0a/6c8f2b5f-da1c-4a54-8a48-666d14f4f610.jpg, 0000002778/pabellon universitat jaume I.jpg
https://content.gnoss.ws/carq/https://content.gnoss.ws/carq//imagenes/Documentos/imgsem/87/87d2/87d2d103-9f73-4a0f-afd5-6627a4a5bb0a/49693a51-1c27-4202-a872-471dedee1ad9.jpg, 0000002778/pavellon universitat jaume I 4.jpg.jpg
https://content.gnoss.ws/carq/https://content.gnoss.ws/carq//imagenes/Documentos/imgsem/87/87d2/87d2d103-9f73-4a0f-afd5-6627a4a5bb0a/7c97c120-e733-4e5f-a630-2c7741937eae.jpg, 0000002778/pavellon universitat jaume I 5.jpg.jpg
https://content.gnoss.ws/carq/https://content.gnoss.ws/carq//imagenes/Documentos/imgsem/87/87d2/87d2d103-9f73-4a0f-afd5-6627a4a5bb0a/41f055c6-11f0-4239-a46c-6c7442820641.jpg, 0000002778/pavellon universitat jaume I 6.jpg.jpg
https://content.gnoss.ws/carq//imagenes/Documentos/imgsem/87/87d2/87d2d103-9f73-4a0f-afd5-6627a4a5bb0a/8dac8a21-0f4e-40f0-bc7f-0a483f8fc07c.jpg, 0000002778/Planta baja.jpg
https://content.gnoss.ws/carq//imagenes/Documentos/imgsem/87/87d2/87d2d103-9f73-4a0f-afd5-6627a4a5bb0a/34f9efe3-4b0c-4302-9fe7-5b0376146dd7.jpg, 0000002778/Secciones.jpg
https://content.gnoss.ws/carq//imagenes/Documentos/imgsem/87/87d2/87d2d103-9f73-4a0f-afd5-6627a4a5bb0a/d6738d7f-31ff-4664-a8d3-bfa5f8ed6a7a.jpg, 0000002778/Emplazamiento.jpg





