Cargando...
Este equipamiento se encuentra en una zona de grandes áreas libres de vocación urbana. El conjunto formado por los diferentes equipamientos y sus jardines acepta esta vocación generando referencias formales y funcionales propias y autónomas. Un lugar entre el campo y la ciudad, situado en una cota alta que domina el paisaje urbano y abre sus vistas sobre Montjuïc y la costa.
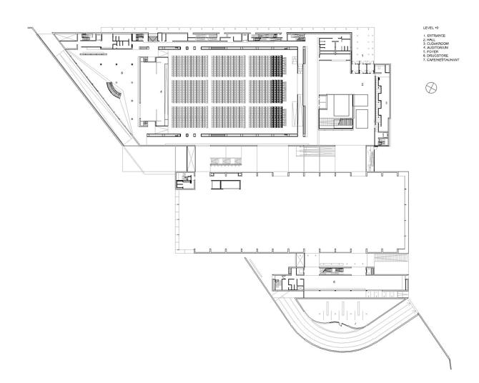
El edificio se descompone en cuerpos, facilitando su asentamiento sobre la topografía en pendiente al aprovechar el desnivel existente entre la avenida Diagonal y los jardines de la Torre Melina. El edificio se divide en tres cuerpos separados por dos calles interiores que permiten una comunicación visual entre la Diagonal y los jardines, a la vez que proporcionan luz natural a las estancias. A estas calles que dividen el conjunto en bandas longitudinales se les suma el hall, el foyer y unos elementos transversales como son las dos calles en la planta jardín que desembocan en accesos independientes y complementarios.
El conjunto se configura no tanto con elementos autónomos funcionales, sino como un sistema social de piezas imbricadas entre sí que se conforman a modo de una miniciudad.
Información general
Palacio de Congresos de Cataluña
AÑO
Opción de visitas
Dirección
avda. Diagonal, 661-671
08028 Barcelona - Barcelona
Latitud: 41.382990458
Longitud: 2.1095882987
Clasificación
Materiales construcción
Sistema constructivo
El único material utilizado es el hormigón blanco
Superficie construida
Estudios de arquitectura participantes
Información aportada por
OAB - Office of Architecture in Barcelona
-
OAB -
Aleix Bagué
Ubicación
https://content.gnoss.ws/carq/https://content.gnoss.ws/carq//imagenes/Documentos/imgsem/d7/d7ca/d7cacded-a016-4896-b4d2-198810f5f0fc/ac9c96d0-582f-4ba1-bd87-de79e6f92df6.jpg, 0000002034/CSCAE2001_PALACIO CONGRESOS_Bague_01.jpg
https://content.gnoss.ws/carq/https://content.gnoss.ws/carq//imagenes/Documentos/imgsem/d7/d7ca/d7cacded-a016-4896-b4d2-198810f5f0fc/deefc795-a569-4f88-9afa-85ca90bc2af8.jpg, 0000002034/AEREA PEQUEnA.jpg
https://content.gnoss.ws/carq/https://content.gnoss.ws/carq//imagenes/Documentos/imgsem/d7/d7ca/d7cacded-a016-4896-b4d2-198810f5f0fc/51db7fab-696f-476c-923d-58877da8b6b7.jpg, 0000002034/PC12.jpg
https://content.gnoss.ws/carq/https://content.gnoss.ws/carq//imagenes/Documentos/imgsem/d7/d7ca/d7cacded-a016-4896-b4d2-198810f5f0fc/5f3ee7a4-d16a-49d7-b9e1-e80b4bb41949.jpg, 0000002034/PC25.jpg
https://content.gnoss.ws/carq/https://content.gnoss.ws/carq//imagenes/Documentos/imgsem/d7/d7ca/d7cacded-a016-4896-b4d2-198810f5f0fc/a56508f7-a1d9-4e20-9c1e-a02b6db5adfd.jpg, 0000002034/PC09.jpg
https://content.gnoss.ws/carq//imagenes/Documentos/imgsem/d7/d7ca/d7cacded-a016-4896-b4d2-198810f5f0fc/8b3aa7da-94cb-40cd-99f8-45d9332079ca.jpg, 0000002034/planta niv+0.jpg
https://content.gnoss.ws/carq//imagenes/Documentos/imgsem/d7/d7ca/d7cacded-a016-4896-b4d2-198810f5f0fc/e64aa60f-a13c-4cff-a554-e3ba00559f35.jpg, 0000002034/secc-CC.jpg




