Cargando...
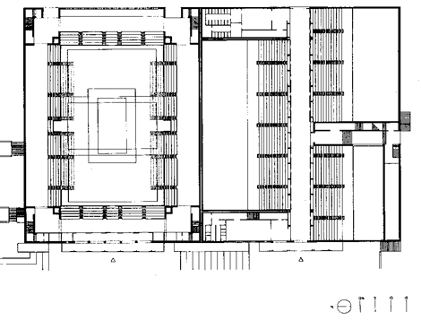
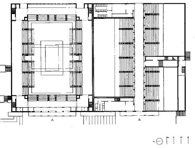
La tipología escogida para este proyecto es el producto de inscribir los muy diversos parámetros físicos y organizativos requeridos por las dos instalaciones deportivas que contiene, en el volumen más simple posible y espacialmente más claro, con la finalidad de obtener resultados óptimos del correcto dimensionado de las salas de juego y del orden de sus posiciones relativas.
Las fachadas, de obra vista, contribuyen al carácter abstracto del conjunto al proyectarlas como inmensas cortinas gravadas con incidencias ordenadas de origen interior.
La cubierta metálica, sustancialmente plana, se repliega solo para formar los lucernarios que la coronan, y que orientados al norte concentren la luz natural sobre las canchas, rompiendo con su presencia el hermetismo exterior del conjunto.
El Palacio Municipal de Deportes se destina principalmente a la práctica del voleibol, y el Centro Deportivo Municipal de Pelota, a todas las modalidades de pelota vasca.
Información general
Palau Vall Hebrón
AÑO
Opción de visitas
Dirección
p.º de la Vall d'Hebron, 166
08035 Barcelona - Barcelona
Latitud: 41.427862176
Longitud: 2.144996195
Clasificación
Superficie construida
Estudios de arquitectura participantes
-
Lluís Casals -
planta general - Jordi Garcés arquitecto -
Lluís Casals
Ubicación
https://content.gnoss.ws/carq/https://content.gnoss.ws/carq//imagenes/Documentos/imgsem/34/3407/340762fa-c5c3-42ff-b8a7-5b54bed31b70/25aa7d5e-8c8f-4fe9-8a42-1182cded8ffc.jpg, 0000007754/pabellon vall dhebron 3.jpg
https://content.gnoss.ws/carq/https://content.gnoss.ws/carq//imagenes/Documentos/imgsem/34/3407/340762fa-c5c3-42ff-b8a7-5b54bed31b70/721bad0b-ce3a-4c7a-b072-d522ffadea05.jpg, 0000007754/pabellon vall dhebron 2.jpg
https://content.gnoss.ws/carq/https://content.gnoss.ws/carq//imagenes/Documentos/imgsem/34/3407/340762fa-c5c3-42ff-b8a7-5b54bed31b70/84d3bacb-c102-4f51-9ac9-a50ddef5ed07.jpg, 0000007754/pabellon vall dhebron 1.jpg
https://content.gnoss.ws/carq/https://content.gnoss.ws/carq//imagenes/Documentos/imgsem/34/3407/340762fa-c5c3-42ff-b8a7-5b54bed31b70/a385973f-9a65-42c2-86d9-4434e13f98cd.jpg, 0000007754/pabellon vall dhebron 5.jpg
https://content.gnoss.ws/carq/https://content.gnoss.ws/carq//imagenes/Documentos/imgsem/34/3407/340762fa-c5c3-42ff-b8a7-5b54bed31b70/dd04272b-21ab-4a43-ad20-9522d8127798.jpg, 0000007754/pabellon vall dhebron 4.jpg
https://content.gnoss.ws/carq//imagenes/Documentos/imgsem/34/3407/340762fa-c5c3-42ff-b8a7-5b54bed31b70/e8dc1432-4310-4dd6-9b7b-a75493533a7b.jpg, 0000007754/1989_hebron_00.jpg





