Cargando...
El edificio surge como respuesta a la singularidad topográfica de la parcela –con un corte de piedra viva de gran belleza–, a las vistas al mar y al Teide, al intenso asoleo de oeste y a los vientos dominantes del noreste.
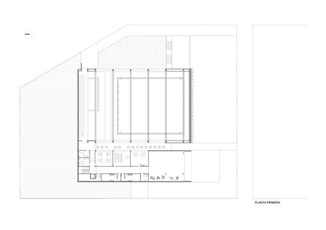
El programa se compone de 3 piscinas –vaso competición, vaso rehabilitación y jacuzzi–, 2 gimnasios, saunas, ludoteca y salas complementarias y se organiza en un juego de volúmenes compacto, que nace de la roca en la que se incrusta para proyectarse hacia el mar. La rugosidad de los muros de hormigón apoya esta intención de prolongar y geometrizar la roca y la cubierta del edificio se concibe como prolongación del terreno natural.
Los espacios principales del edificio –piscina y gimnasio– se orientan al mar a través de grandes acristalamientos, y la luz del oeste se tamiza de varias maneras. En el gimnasio mediante grandes vuelos de cubierta y muros laterales, y en la piscina mediante una celosía de gran formato. Esta celosía tridimensional, realizada artesanalmente en fibra de vidrio, se convierte desde el interior en un filtro abstracto que conduce la mirada, y potencia la relación directa entre agua de la piscina y el agua del mar. Para favorecer la mirada al mar desde cualquier punto de la piscina se opta por una cubierta muy sencilla de vigas de madera laminada que, reduciendo ópticamente la altura libre del espacio, lo comprime reforzando la direccionalidad hacia el mar.
Se accede al edificio a través de una plaza-mirador, y debajo, en semisótano, se encuentran todas las instalaciones y todos los vasos son registrables. La sección del edificio ha estado condicionada por consideraciones de ahorro energético, rebajando alturas libres para minimizar el volumen de aire a climatizar, e introduciendo luz cenital para reducir significativamente los consumos.
Información general
Piscina cubierta polivalente de Santa Úrsula
AÑO
Opción de visitas
Dirección
avda. los Pesqueros, 13
38390 Santa Ursula - Santa Cruz de Tenerife
Latitud: 28.4299227
Longitud: -16.49042296
Clasificación
Superficie construida
Arquitectos participantes
Colaboradores
Gonzalo Pérez Rivero (Estructuras)
Ruperto Hernández González (Arquitecto técnico)
Tomás Sánchez Peraza (Ingeniero Industrial)
Estudios de arquitectura participantes
Información aportada por
Vázquez de Parga Arquitectos
Enlaces web
Ubicación
https://content.gnoss.ws/carq/https://content.gnoss.ws/carq//imagenes/Documentos/imgsem/f7/f792/f792a170-2f1d-4fdc-8f74-18f2ef297e60/9ba78d08-c1e5-4370-bfd3-1603aad18ae6.jpg, 0000035439/02.jpg
https://content.gnoss.ws/carq/https://content.gnoss.ws/carq//imagenes/Documentos/imgsem/f7/f792/f792a170-2f1d-4fdc-8f74-18f2ef297e60/2ccb5c59-34ad-47cc-be04-e802ced208ce.jpg, 0000035439/01.jpg
https://content.gnoss.ws/carq/https://content.gnoss.ws/carq//imagenes/Documentos/imgsem/f7/f792/f792a170-2f1d-4fdc-8f74-18f2ef297e60/504136a6-288e-450a-a4e2-b17b70da123c.jpg, 0000035439/03.jpg
https://content.gnoss.ws/carq/https://content.gnoss.ws/carq//imagenes/Documentos/imgsem/f7/f792/f792a170-2f1d-4fdc-8f74-18f2ef297e60/48e4c8a7-edbe-4cd0-bcdd-18d1f28ff70f.jpg, 0000035439/04.jpg
https://content.gnoss.ws/carq/https://content.gnoss.ws/carq//imagenes/Documentos/imgsem/f7/f792/f792a170-2f1d-4fdc-8f74-18f2ef297e60/bc24a7e9-ccb3-4c45-ac57-476201610d14.jpg, 0000035439/05.jpg
https://content.gnoss.ws/carq//imagenes/Documentos/imgsem/f7/f792/f792a170-2f1d-4fdc-8f74-18f2ef297e60/85a76e6d-073d-4188-b7ab-3133e14e279e.jpg, 0000035439/PiscinaStaUrsula-Planta primera.jpg
https://content.gnoss.ws/carq//imagenes/Documentos/imgsem/f7/f792/f792a170-2f1d-4fdc-8f74-18f2ef297e60/1826f4ac-481d-4708-b6f8-4dbb0e8fa922.jpg, 0000035439/PiscinaStaUrsula-Seccion 1.jpg
https://content.gnoss.ws/carq//imagenes/Documentos/imgsem/f7/f792/f792a170-2f1d-4fdc-8f74-18f2ef297e60/ae892b85-e4f2-4f38-bbe9-2c4164397cfb.jpg, 0000035439/PiscinaStaUrsula-Planta sotano.jpg
https://content.gnoss.ws/carq//imagenes/Documentos/imgsem/f7/f792/f792a170-2f1d-4fdc-8f74-18f2ef297e60/107d1141-411a-4513-a886-4e20dd5f0cd1.jpg, 0000035439/PiscinaStaUrsula-Seccion4.jpg
https://content.gnoss.ws/carq//imagenes/Documentos/imgsem/f7/f792/f792a170-2f1d-4fdc-8f74-18f2ef297e60/2dacfef1-9cc4-4ba4-be71-281e9c46b783.jpg, 0000035439/PiscinaStaUrsula-Planta baja.jpg
https://content.gnoss.ws/carq//imagenes/Documentos/imgsem/f7/f792/f792a170-2f1d-4fdc-8f74-18f2ef297e60/c8783553-b754-4077-8ede-f5b5d7632f8d.jpg, 0000035439/PiscinaStaUrsula-Seccion 2.jpg



