Cargando...
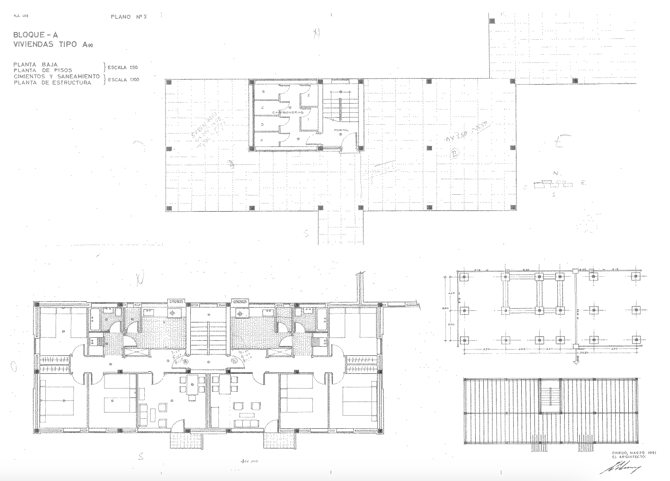
La Central Térmica de Soto de Ribera es uno de los máximos exponentes de la arquitectura de la modernidad en Asturias, con intervención del ingeniero Carlos Fernández Casado y del arquitecto Ignacio Álvarez Castelao. En sus inmediaciones se erigieron dos poblados de una gran calidad, proyectados por éste último y que guardan ciertas similitudes con los que él mismo diseñó para Electra de Viesgo en Navia.
Desde comienzos de la década de los sesenta se sucedieron diferentes fases que dieron lugar al poblado de Soto de Rey, compuesto por viviendas unifamiliares adosadas por medianeras y cediendo una gran porción de la parcela total a los espacios de uso comunitario. No lejos de él se sitúa el poblado de Les Segaes, en el que destaca el singular tratamiento que el arquitecto hace de las cubiertas, a dos aguas inclinadas hacia el interior.
Información general
Poblado de Soto'l Rei
AÑO
Opción de visitas
Dirección
C/ Urbanización Villa Jardón,
33172 Ribera de Arriba - Asturias -Ribera de Arriba
Latitud: 43.308335
Longitud: -5.861614
Clasificación
Superficie construida
Arquitectos participantes
Información aportada por
Rubén Domínguez Rodríguez
-
Bloque A - Ignacio Álvarez Castelao -
Rubén Domínguez Rodríguez
Ubicación
Itinerarios
https://content.gnoss.ws/carq/https://content.gnoss.ws/carq//imagenes/Documentos/imgsem/2f/2fb0/2fb0b378-1b2a-4dec-841c-9cf594648ffd/d7aa49be-17f4-4596-b2a0-377abfdb3e5f.jpg, 0000102391/20211016_172022.jpg
https://content.gnoss.ws/carq/https://content.gnoss.ws/carq//imagenes/Documentos/imgsem/2f/2fb0/2fb0b378-1b2a-4dec-841c-9cf594648ffd/517e2345-b034-4325-8deb-1d76990008c3.jpg, 0000102391/20211016_172021.jpg
https://content.gnoss.ws/carq/https://content.gnoss.ws/carq//imagenes/Documentos/imgsem/2f/2fb0/2fb0b378-1b2a-4dec-841c-9cf594648ffd/b015c476-3abd-42d0-8c41-9b7ad22e6cdb.jpg, 0000102391/20211016_171452.jpg
https://content.gnoss.ws/carq//imagenes/Documentos/imgsem/2f/2fb0/2fb0b378-1b2a-4dec-841c-9cf594648ffd/8fce037d-87a2-4cb5-91df-f2989be63b43.png, 0000102391/4.png
https://content.gnoss.ws/carq//imagenes/Documentos/imgsem/2f/2fb0/2fb0b378-1b2a-4dec-841c-9cf594648ffd/a05fa006-f9da-4088-b2c0-9225860b7590.png, 0000102391/5.png
https://content.gnoss.ws/carq//imagenes/Documentos/imgsem/2f/2fb0/2fb0b378-1b2a-4dec-841c-9cf594648ffd/d2ca1950-8196-43cc-89d7-f4ec717b1b03.png, 0000102391/2.png
https://content.gnoss.ws/carq//imagenes/Documentos/imgsem/2f/2fb0/2fb0b378-1b2a-4dec-841c-9cf594648ffd/f8594c03-4aac-43c0-9c7d-a5212ec77868.png, 0000102391/6.png
https://content.gnoss.ws/carq//imagenes/Documentos/imgsem/2f/2fb0/2fb0b378-1b2a-4dec-841c-9cf594648ffd/a36ebdf3-3e2a-4f7c-b142-01e9e4a73fce.png, 0000102391/3.png




