Cargando...
En el Poblado Dirigido de Fuencarral C se construyeron 2.039 viviendas. Su opción sin concesiones maneja elementos mínimos con los que se obtienen resultados de gran pulcritud en su traducción constructiva y de una plasticidad que entronca con referencias artísticas ajenas a la propia arquitectura.
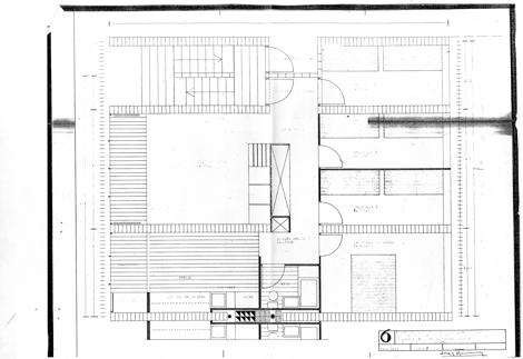
El planteamiento de Romany responde con cuidada parquedad a un proyecto obligadamente contenido. El arquitecto asume los puntos de partida y apura los resultados, tanto en los aspectos urbanísticos como en los del detalle constructivo. El ejercicio de renuncia le permite obtener un engranaje estricto sin excesos ni defectos. Los cerramientos distinguen lienzos por su función y materiales: el frente modulado mediante la estructura metálica y la carpintería, el cristal transparente, el vidrio armado y el ladrillo blanco en los espacios intersticiales, los ritmos de fachada, los detalles donde conversan las chimeneas y los remates o la potencia de los testeros, son algunos trazos protagonistas. La planta del barrio con la estricta disposición de formas y volúmenes que baja la densidad mediante las hileras de unifamiliares continúa con la planta de los bloques que juega con la habitual doble tipología –unifamiliar adosado/bloque de doble crujía y 5 plantas y finalmente con la planta de las viviendas donde el bloque técnico, el de armarios o el pasillo de ancho variable, cualifican lo estricto de las dimensiones que con el ladrillo de 13 cm mide el proyecto–.
En la actualidad casi todo ha ido admitiendo superposiciones del usuario en un inevitable acomodo de los mínimos constructivos y estéticos: aparecen grandes aleros, escaleras encerradas, terrazas acristaladas o testeros revestidos de materiales impermeables; pero la esencia, indudablemente, ha permanecido.
Las conocidas condiciones de nnorte impuesto, terreno abrupto, falta de tiempo o planteamientos de posible autoconstrucción, dan lugar a una ordenación edificada casi ortogonal NE/SO Y NO/SE en cruz, con una corona perimetral de distribución principal, y unas ramificaciones interiores en fondo de saco con una gran área verde.
Los centros dotacionales, valiosos pero hoy abandonados, deben su autoría a la colaboración de Luis Enrique Miquel. Un reparto aleatorio de bloques y casi un 50% de hileras, arroja una densidad de unas 100 viviendas por hectárea.
Información general
Poblado Dirigido de Fuencarral C
AÑO
Opción de visitas
Dirección
avda. Cardenal Herrera Oria, 80
28034 Madrid - Madrid
Latitud: 40.491929
Longitud: -3.693882
Superficie construida
Arquitectos participantes
Información aportada por
Fondo documental DOCOMOMO Ibérico
Servicio Histórico del Colegio Oficial de Arquitectos de Madrid (COAM)
Enlaces web
-
Servicio Histórico del Colegio Oficial de Arquitectos de Madrid (COAM). Arquitectura de Madrid. -
Servicio Histórico del Colegio Oficial de Arquitectos de Madrid (COAM). Arquitectura de Madrid. -
Servicio Histórico del Colegio Oficial de Arquitectos de Madrid (COAM). Arquitectura de Madrid.
Ubicación
https://content.gnoss.ws/carq/https://content.gnoss.ws/carq//imagenes/Documentos/imgsem/55/5552/55525208-18f1-41e1-b883-68a22592b88e/f1ff3d7d-8ba9-482d-a782-09dcae725704.jpg, 0000019004/DSCN6609.JPG
https://content.gnoss.ws/carq/https://content.gnoss.ws/carq//imagenes/Documentos/imgsem/55/5552/55525208-18f1-41e1-b883-68a22592b88e/a3c8a344-e6ef-471a-8830-72e4b68b1019.jpg, 0000019004/V_MA_A24_16.jpg
https://content.gnoss.ws/carq/https://content.gnoss.ws/carq//imagenes/Documentos/imgsem/55/5552/55525208-18f1-41e1-b883-68a22592b88e/68299575-fc09-494e-a41f-5f38cb82ec36.jpg, 0000019004/DSCN6607.JPG
https://content.gnoss.ws/carq/https://content.gnoss.ws/carq//imagenes/Documentos/imgsem/55/5552/55525208-18f1-41e1-b883-68a22592b88e/9f550e29-a765-4167-a41d-5b8be975d82b.jpg, 0000019004/DSCN6611.JPG
https://content.gnoss.ws/carq/https://content.gnoss.ws/carq//imagenes/Documentos/imgsem/55/5552/55525208-18f1-41e1-b883-68a22592b88e/0866fa29-8f14-46bf-a3e1-09f6a45ab8de.jpg, 0000019004/DSCN6614.JPG
https://content.gnoss.ws/carq/https://content.gnoss.ws/carq//imagenes/Documentos/imgsem/55/5552/55525208-18f1-41e1-b883-68a22592b88e/7b6913ec-fd21-4006-a7d1-8991821870d5.jpg, 0000019004/DSCN6622.JPG
https://content.gnoss.ws/carq/https://content.gnoss.ws/carq//imagenes/Documentos/imgsem/55/5552/55525208-18f1-41e1-b883-68a22592b88e/16dbcba0-6c93-4dd4-a12e-079c55a90bb7.jpg, 0000019004/DSCN6640.JPG
https://content.gnoss.ws/carq/https://content.gnoss.ws/carq//imagenes/Documentos/imgsem/55/5552/55525208-18f1-41e1-b883-68a22592b88e/995ec9cc-b21a-464c-8a0a-9ad46d7cf160.jpg, 0000019004/DSCN6626.JPG
https://content.gnoss.ws/carq/https://content.gnoss.ws/carq//imagenes/Documentos/imgsem/55/5552/55525208-18f1-41e1-b883-68a22592b88e/954aea1b-de46-44f3-a853-e667c269fb8b.jpg, 0000019004/DSCN6613.JPG
https://content.gnoss.ws/carq/https://content.gnoss.ws/carq//imagenes/Documentos/imgsem/55/5552/55525208-18f1-41e1-b883-68a22592b88e/b63a0cbc-d51a-4752-b543-edfb8598d84b.jpg, 0000019004/DSCN6679.JPG
https://content.gnoss.ws/carq/https://content.gnoss.ws/carq//imagenes/Documentos/imgsem/55/5552/55525208-18f1-41e1-b883-68a22592b88e/45e3489f-5700-48f8-81ae-32151f357208.jpg, 0000019004/DSCN6608.JPG
https://content.gnoss.ws/carq/https://content.gnoss.ws/carq//imagenes/Documentos/imgsem/55/5552/55525208-18f1-41e1-b883-68a22592b88e/871dd528-33c2-4a8d-9aaf-ca0995ee7d85.jpg, 0000019004/DSCN6681.JPG
https://content.gnoss.ws/carq/https://content.gnoss.ws/carq//imagenes/Documentos/imgsem/55/5552/55525208-18f1-41e1-b883-68a22592b88e/57f1372e-250c-40a1-b3f8-6d9b86d4b782.jpg, 0000019004/DSCN6612.JPG
https://content.gnoss.ws/carq/https://content.gnoss.ws/carq//imagenes/Documentos/imgsem/55/5552/55525208-18f1-41e1-b883-68a22592b88e/682eb02e-8114-4c51-871c-19423899c06b.jpg, 0000019004/DSCN6673.JPG
https://content.gnoss.ws/carq/https://content.gnoss.ws/carq//imagenes/Documentos/imgsem/55/5552/55525208-18f1-41e1-b883-68a22592b88e/d7564111-b5e2-4355-911e-e1acf4f41191.jpg, 0000019004/V_MA_A24_6.jpg
https://content.gnoss.ws/carq/https://content.gnoss.ws/carq//imagenes/Documentos/imgsem/55/5552/55525208-18f1-41e1-b883-68a22592b88e/d9d8ad68-ffc5-4a4e-9a61-cf552965def5.jpg, 0000019004/DSCN6671.JPG
https://content.gnoss.ws/carq//imagenes/Documentos/imgsem/55/5552/55525208-18f1-41e1-b883-68a22592b88e/fe342d9b-675a-482d-b52e-e3ea49029bc9.jpg, 0000019004/FUENCARRAL C PLANO POBLADO.jpg
https://content.gnoss.ws/carq//imagenes/Documentos/imgsem/55/5552/55525208-18f1-41e1-b883-68a22592b88e/05762681-2c8d-4a00-806b-80eb242ca18d.jpg, 0000019004/F006.jpg
https://content.gnoss.ws/carq//imagenes/Documentos/imgsem/55/5552/55525208-18f1-41e1-b883-68a22592b88e/467b020b-71cb-4d48-827c-54179d49bd87.jpg, 0000019004/EHSC.F30010_4.jpg
https://content.gnoss.ws/carq//imagenes/Documentos/imgsem/55/5552/55525208-18f1-41e1-b883-68a22592b88e/228b2829-f405-420e-bfba-8c45446726c0.jpg, 0000019004/Fuencarral_C.jpg
https://content.gnoss.ws/carq//imagenes/Documentos/imgsem/55/5552/55525208-18f1-41e1-b883-68a22592b88e/2581cc88-6440-41c6-b7df-e47e1fe2c67d.jpg, 0000019004/F005.jpg
https://content.gnoss.ws/carq//imagenes/Documentos/imgsem/55/5552/55525208-18f1-41e1-b883-68a22592b88e/d12861a8-8319-4015-8d87-e8eb3be7bad7.jpg, 0000019004/EHSC.F30010_5.jpg
https://content.gnoss.ws/carq//imagenes/Documentos/imgsem/55/5552/55525208-18f1-41e1-b883-68a22592b88e/672fe34e-a694-4676-b572-9333af519c30.jpg, 0000019004/F003.jpg
https://content.gnoss.ws/carq//imagenes/Documentos/imgsem/55/5552/55525208-18f1-41e1-b883-68a22592b88e/c52f7da7-c02a-4fc3-a561-e79dc6179cfb.jpg, 0000019004/EHSC.F30010_6.jpg
https://content.gnoss.ws/carq//imagenes/Documentos/imgsem/55/5552/55525208-18f1-41e1-b883-68a22592b88e/c0d7a7c2-be1f-4fa3-940d-149b10578eae.jpg, 0000019004/EHSC.F30010_7.jpg




