Cargando...
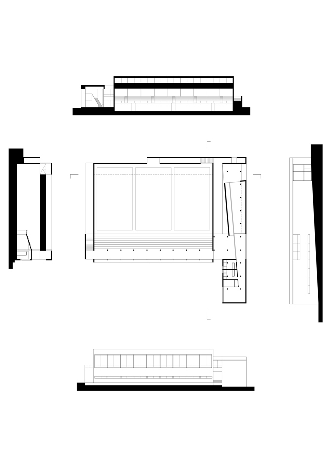
Este proyecto representa el primero de una serie de trabajos alrededor del vacío desarrollados en diferentes proyectos durante estos últimos años. Frente al programa y al lugar se plantea un claro volumen de hormigón dorado de 45 x 38 x 7,40 m en donde la presencia de un vacío de 4 x 45 x 4 m construye un espacio homogéneo. La actuación de la luz, a través de este vacío, en sus diferentes manifestaciones, rompe la simetría y la homogeneidad espacial de manera dura, frágil e inestable.
Del intento de conciliación de estos elementos surge definitivamente el espacio. Se intenta plantear, así, un ejercicio riguroso con múltiples variables que se entrecruzan. Un muro-piel rodea al volumen principal de pista, amoldándose a los límites del solar. La interacción entre el volumen y esta piel ocasionan los espacios de acceso y de recorrido del edificio, así como un patio exterior que domina este recorrido. El vestíbulo de acceso dirige tanto la entrada al graderío de espectadores a nivel superior por medio de una rampa, como el acceso de deportistas a nivel de entrada.
Información general
Polideportivo Valvanera
AÑO
Opción de visitas
Dirección
Avda. de la Sierra,
28701 San Sebastian de los Reyes - Madrid
Latitud: 40.549762347
Longitud: -3.633468827
Clasificación
Materiales construcción
Superficie construida
Estudios de arquitectura participantes
Información aportada por
Sancho-Madridejos Architecture Office S-M.A.O.
-
Acceso - Sancho-Madridjeos Architecture Office -
IV BEAU -
Graderío - Hisao Suzuki -
IV BEAU
Ubicación
https://content.gnoss.ws/carq/https://content.gnoss.ws/carq//imagenes/Documentos/imgsem/54/5490/5490698d-a1fa-43d4-ab34-785792316391/43abf7b8-4c88-4485-a4ea-25c013273429.jpg, 0000003949/polideportivo 1.jpg
https://content.gnoss.ws/carq/https://content.gnoss.ws/carq//imagenes/Documentos/imgsem/54/5490/5490698d-a1fa-43d4-ab34-785792316391/56024d9a-50b4-4ec2-ad23-c937fb781704.jpg, 0000003949/1. EXTERIOR.jpg
https://content.gnoss.ws/carq/https://content.gnoss.ws/carq//imagenes/Documentos/imgsem/54/5490/5490698d-a1fa-43d4-ab34-785792316391/7ec21298-1782-49a0-907f-8b94162f5211.jpg, 0000003949/INTERIOR.jpg
https://content.gnoss.ws/carq/https://content.gnoss.ws/carq//imagenes/Documentos/imgsem/54/5490/5490698d-a1fa-43d4-ab34-785792316391/e6f87b11-f000-4c2a-bc4a-9f7ea83fe8a2.jpg, 0000003949/EXTERIOR 02.jpg
https://content.gnoss.ws/carq/https://content.gnoss.ws/carq//imagenes/Documentos/imgsem/54/5490/5490698d-a1fa-43d4-ab34-785792316391/7e6368c8-6bf6-4398-8e0c-a6281f554331.jpg, 0000003949/POLIDEPORTIVO VALVANERA f1.jpg
https://content.gnoss.ws/carq/https://content.gnoss.ws/carq//imagenes/Documentos/imgsem/54/5490/5490698d-a1fa-43d4-ab34-785792316391/cce5467d-51d8-4e0b-bdd2-0b1ee765a7dd.jpg, 0000003949/POLIDEPORTIVO VALVANERA f2.jpg
https://content.gnoss.ws/carq//imagenes/Documentos/imgsem/54/5490/5490698d-a1fa-43d4-ab34-785792316391/15c83e13-fe56-401a-8ef1-091edb7055fc.jpg, 0000003949/Planimetria.jpg







