Cargando...
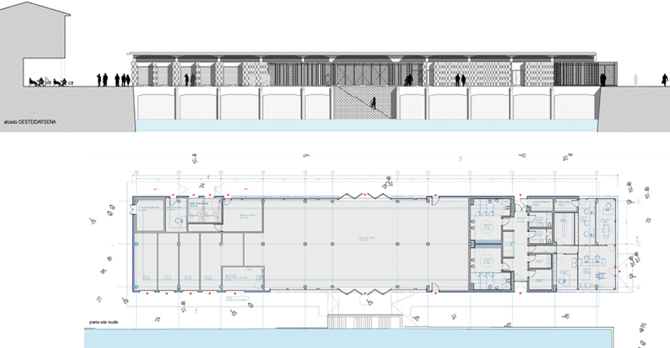
En el año 1943, Luis Tolosa construía en el puerto de Donostia-San Sebastián una estructura de hormigón armado siguiendo las lógicas del movimiento moderno. Un austero pabellón, apenas una gran cubierta, para almacenar las cajas de madera utilizadas por la flota pesquera. La cubierta, a su vez, servía de plataforma para la reparación, limpieza y secado de las redes de pesca. Esa gran cubierta, que vuela afinándose respecto de la estructura portante de vigas acarteladas y pilares, era sin duda el elemento más representativo del edificio, lo que hizo que el edificio fuese conocido popularmente como el Portaaviones.
En el año 1988, el proyecto sufrió una transformación total, al utilizar la vieja estructura como soporte de un edificio, que cerraría la antigua cubierta añadiéndole fachadas y generando diverso espacios interiores.
El proyecto, finalizado en el año 2019, se plantea casi como un ejercicio de arqueología que trata de retirar, eliminar aquellas partes que desdibujaban el proyecto original, devolviendo en la medida de lo posible el protagonismo del edificio a la estructura original y a su gran cubierta. Para albergar el programa propuesto en el concurso se sitúan al abrigo de la cubierta una serie de volúmenes que establecen un eco con las cajas de madera apiladas que inicialmente ocupaban aquel lugar, de forma fragmentada. En ese sentido el proyecto puede resumirse como el sumatorio de dos operaciones, una de limpieza y otra de construcción de unos cierres, de unas nuevas fachadas. Estas nuevas fachadas se plantean como una continuidad con las lógicas del lugar y el contexto, pero desde una óptica netamente contemporánea. En ese sentido se recurre a la cerámica, un material ampliamente usado en las fachadas de las casas de pescadores que asoman al puerto, por su capacidad de soportar el salitre y la dureza del mar cantábrico. Y por otro lado, se recurre al color blanco, un color icónico representado en el edificio de Real Club Náutico a escasos 100 m de distancia, y tal vez la obra del movimiento moderno más emblemática construida en España.
La cerámica se trata aquí como una pieza tridimensional, que vibra en seis blancos sutilmente diferentes, siendo algunas de las piezas mates y otras con acabado en brillo. Por un lado estableciendo esa relación con esas dos arquitecturas cercanas, la popular y la culta, representadas en el contexto del puerto de la ciudad, y por otro, lado busca un efecto fenomenológico que haga que la fachada funcione como un elemento independiente de la cubierta y la estructura originales.
En las partes más permeables del edificio, la cerámica se transforma en una celosía, que mantiene la continuidad del color y de la escala de las piezas. Mediante este mecanismo sencillo del triangulo asimétrico, se introduce una variabilidad que permite la lectura individual de cada una de las piezas. Unidad y conjunto similar al de las cajas de madera que se apilaban allí. Además, el movimiento del sol, los cambios de la luz y las estaciones, así como el reflejo de la lluvia, otorgan a la fachada un aspecto cambiante. Lleno de matices y brillos, al igual que la superficie del mar contra la que el edificio se sitúa.
Información general
Portaaviones
AÑO
Opción de visitas
Dirección
mlle. deportivo, s/n
20003 DonostiaSan Sebastian - Gipuzkoa
Latitud: 43.323315667
Longitud: -1.987815304
Clasificación
Superficie construida
Premios
Arquitectos participantes
Estudios de arquitectura participantes
Información aportada por
VAUMM Arquitectura y Urbanismo
Enlaces web
Ubicación
Docs
https://content.gnoss.ws/carq/https://content.gnoss.ws/carq//imagenes/Documentos/imgsem/a1/a146/a1467ce8-ea3d-4919-98d6-601e0c790c1c/cfb04ae2-e829-4db6-a5d6-8416a0afb627.jpg, 0000011863/Portaaviones 1_vaumm.jpg
https://content.gnoss.ws/carq/https://content.gnoss.ws/carq//imagenes/Documentos/imgsem/a1/a146/a1467ce8-ea3d-4919-98d6-601e0c790c1c/e53e6e35-5f24-4140-a510-7f4e5f05eef8.jpg, 0000011863/portaaviones 2_vaumm.jpg
https://content.gnoss.ws/carq/https://content.gnoss.ws/carq//imagenes/Documentos/imgsem/a1/a146/a1467ce8-ea3d-4919-98d6-601e0c790c1c/092eb6e6-0e68-404b-b6fe-7236236689c9.jpg, 0000011863/Portaaviones 4_vaumm.jpg
https://content.gnoss.ws/carq/https://content.gnoss.ws/carq//imagenes/Documentos/imgsem/a1/a146/a1467ce8-ea3d-4919-98d6-601e0c790c1c/7bf1ccb9-6649-40fe-837e-df65d156c5cf.jpg, 0000011863/Portaaviones 3_vaumm.jpg
https://content.gnoss.ws/carq/https://content.gnoss.ws/carq//imagenes/Documentos/imgsem/a1/a146/a1467ce8-ea3d-4919-98d6-601e0c790c1c/83db1286-7817-49f7-bbd5-02b51a639b82.jpg, 0000011863/Portaaviones 5_vaumm.jpg



