Cargando...
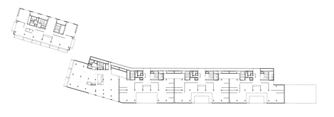
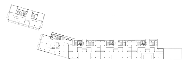
El lugar ha inspirado un edificio de gran sencillez formal; tiene una imagen que se asienta con naturalidad entre el núcleo que forman la alcazaba y el puente romano y la plaza de entrega del puente de Santiago Calatrava.
La apariencia abstracta y lineal proporciona la ambigüedad precisa entre ambos enclaves urbanos en sus extremos. El edificio domina una gran porción de la ciudad desde el otro margen del río Guadiana, por lo que aun cuando el solar se extiende longitudinalmente paralelo al río, el edificio se orienta transversalmente para responder a esa visión distante.
Sus planos interiores acristalados hacen posible la iluminación. El resto del muro ciego reafirma su pureza formal. El edificio se extiende formando un todo con la alcazaba y se logra así una gran fachada urbana sobre el borde del río.
Información general
Presidencia y consejerías de la Junta de Extremadura
AÑO
Opción de visitas
Dirección
P.º Roma,
06800 Merida - Badajoz
Latitud: 38.916513666
Longitud: -6.349357468
Clasificación
Superficie construida
Arquitectos participantes
Estudios de arquitectura participantes
Información aportada por
IV BEAU
EUmies Award
Enlaces web
-
Navarro Baldeweg Asociados -
Navarro Baldeweg Asociados -
EUmies Award -
IV BEAU
Ubicación
https://content.gnoss.ws/carq/https://content.gnoss.ws/carq//imagenes/Documentos/imgsem/1c/1c3e/1c3ef923-88c9-4e3a-a8ce-e4ba8b528946/ab44a8aa-ee2f-4c53-84cb-5c3a65770d7b.jpg, 0000003856/1.jpg
https://content.gnoss.ws/carq/https://content.gnoss.ws/carq//imagenes/Documentos/imgsem/1c/1c3e/1c3ef923-88c9-4e3a-a8ce-e4ba8b528946/1f47e6f2-2233-4116-baeb-915b0216663f.jpg, 0000003856/2.jpg
https://content.gnoss.ws/carq/https://content.gnoss.ws/carq//imagenes/Documentos/imgsem/1c/1c3e/1c3ef923-88c9-4e3a-a8ce-e4ba8b528946/ddf612ea-2c4a-47f3-a9ae-e467773f38ad.jpg, 0000003856/3.jpg
https://content.gnoss.ws/carq/https://content.gnoss.ws/carq//imagenes/Documentos/imgsem/1c/1c3e/1c3ef923-88c9-4e3a-a8ce-e4ba8b528946/01fc21cb-5de4-43b7-8608-832b42cc6d75.jpg, 0000003856/1049-11410.jpg
https://content.gnoss.ws/carq/https://content.gnoss.ws/carq//imagenes/Documentos/imgsem/1c/1c3e/1c3ef923-88c9-4e3a-a8ce-e4ba8b528946/aeab7c11-973e-4e5f-8d22-ae247043d7a8.jpg, 0000003856/1049-11411.jpg
https://content.gnoss.ws/carq/https://content.gnoss.ws/carq//imagenes/Documentos/imgsem/1c/1c3e/1c3ef923-88c9-4e3a-a8ce-e4ba8b528946/9c7ba5fe-e582-4906-8384-a0a6c9be576b.jpg, 0000003856/1049-11412.jpg
https://content.gnoss.ws/carq//imagenes/Documentos/imgsem/1c/1c3e/1c3ef923-88c9-4e3a-a8ce-e4ba8b528946/5e86370e-c5e4-4ac8-af4b-7507b2039c9f.jpg, 0000003856/New Offices for the Estremadura .jpg
https://content.gnoss.ws/carq//imagenes/Documentos/imgsem/1c/1c3e/1c3ef923-88c9-4e3a-a8ce-e4ba8b528946/34516293-5b30-4923-aafc-712bc93a7d33.jpg, 0000003856/New-Offices-for-the-Estremadura(2).jpg
https://content.gnoss.ws/carq//imagenes/Documentos/imgsem/1c/1c3e/1c3ef923-88c9-4e3a-a8ce-e4ba8b528946/38078221-31cf-4a37-b355-d886ae4efc8c.jpg, 0000003856/New-Offices-for-the-Estremadura-9.jpg
https://content.gnoss.ws/carq//imagenes/Documentos/imgsem/1c/1c3e/1c3ef923-88c9-4e3a-a8ce-e4ba8b528946/7cd93e33-58c1-4482-9dbb-a6604b9aec91.jpg, 0000003856/PRESIDENCIA Y CONSEJERIAS DE EXTREMADURA p1.jpg





