Cargando...
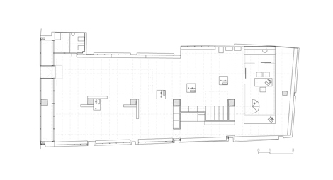
Un local profundo, invadido por gruesos pilares, irregulares y desordenados. El proyecto ordena el perímetro y crea una pequeña entreplanta que escamotea algunos pilares. Se sitúa en un área periférica. Su diseño y calidad de acabados contrasta con su entorno. Los usuarios van apreciando el esfuerzo de la propietaria en cualificar la zona con este pequeño equipamiento.
El local mantiene un espacio único. El almacén queda visualmente integrado en él. Entre este y la zona de atención al público una mampara acristalada, que solo llega a la cota 2,2 m, encierra el laboratorio y el despacho de atención farmacéutica, que también forman parte del mismo espacio, estas piezas aparecen como una caja de vidrio dentro del local. La continuidad visual se matiza con una malla de obra, a modo de cortina permeable, que crea sutiles veladuras (verdes). El suelo de color verde intenso (caucho), el techo acústico de lamas de aluminio lacadas en idéntico color, entre estos dos planos, las estanterías integradas en la construcción y los paramentos blancos. Los mostradores y la mampara de color negro.
La arquitectura de oficinas aplica criterios de sostenibilidad para sus fachadas. ¿Por qué los locales comerciales no aprovechan estos recursos ampliamente experimentados? La fachada del local se realiza con criterios de ahorro y eficacia térmica. Una doble fachada, como un mirador tradicional, integra en su interior una persiana veneciana regulable en inclinación y escamoteable.
El espacio entre los dos planos de vidrio puede ventilarse en verano para mitigar el efecto invernadero, para ello la parte superior del escaparate dispone de una rejilla horizontal regulable que ocupa toda la fachada y que permite la salida del aire. Dos puertas interiores laterales, ocultas en el paramento, se abren durante el verano y permite la circulación del aire. El vidrio exterior es un stadip que incorpora un filtro solar en la parte superior, opaco a la vista desde el exterior por el día traslucido desde el interior y por la noche desde el exterior. Este vidrio puede ser usado para videoproyección sobre la fachada durante la noche.
La doble fachada logra asimismo mitigar el ruido del tráfico que es intenso en la zona. El espacio entre ambos puede ser usado como un escaparate tradicional. El acceso a esta amplia cámara se realiza por dos puertas situadas en la cancela de acceso, que funcionan como contrapuertas para el cierre nocturno del local, una de ellas, y la otra para la venta segura nocturna a través de una ventana. Este doble uso no es percibido para quien no lo conozca.
El proyecto integra la imagen corporativa de la farmacia. Parte de una imagen, la lámpara “Pillola”, grandes píldoras pop de colores, creada en1 968 por los artistas C. Casati y E. Ponzio (integrada en la colección del MOMA). Se ha conseguido un original de esta lámpara que ha pasado a formar parte de la imagen del local al integrarse en el escaparate. La abstracción de este icono se utiliza tanto en elementos gráficos integrados en la arquitectura, como en bolsas, tarjetas y otros elementos de identidad corporativa, y en la videoproyección sobre fachada incorporando el movimiento en las imágenes.
Información general
Reforma de local para farmacia
AÑO
Opción de visitas
Dirección
p.º Arco de Ladrillo, 67
47007 Valladolid - Valladolid
Latitud: 41.629071142
Longitud: -4.726932303
Superficie construida
Arquitectos participantes
Colaboradores
Jesús Vaquer (Instalaciones (electricidad))
ARGU Ingeniería y Servicios (Instalaciones (climatización, pci))
Información aportada por
Colegio Oficial de Arquitectos de Castilla y León (COACYLE)
Enlaces web
-
planta - estudio Primitivo González | e. G. arquitectos
Ubicación
Itinerarios
https://content.gnoss.ws/carq/https://content.gnoss.ws/carq//imagenes/Documentos/imgsem/6d/6d0a/6d0a5ca4-8ea3-4646-97e3-d4dbb7301f8a/6dee6df9-5e6b-44e8-9f30-ce2556cbff47.jpg, 0000043346/farmacia 3.jpg
https://content.gnoss.ws/carq/https://content.gnoss.ws/carq//imagenes/Documentos/imgsem/6d/6d0a/6d0a5ca4-8ea3-4646-97e3-d4dbb7301f8a/2ba5c79f-052c-496e-bfbf-531eeb5d931f.jpg, 0000043346/farmacia 6.jpg
https://content.gnoss.ws/carq/https://content.gnoss.ws/carq//imagenes/Documentos/imgsem/6d/6d0a/6d0a5ca4-8ea3-4646-97e3-d4dbb7301f8a/8a60925a-dd19-4448-b9d6-6efc215603b9.jpg, 0000043346/farmacia 1.jpg
https://content.gnoss.ws/carq/https://content.gnoss.ws/carq//imagenes/Documentos/imgsem/6d/6d0a/6d0a5ca4-8ea3-4646-97e3-d4dbb7301f8a/419d6c8a-6b60-4fdf-a0d3-9f32d0846fff.jpg, 0000043346/farmacia 2.jpg
https://content.gnoss.ws/carq/https://content.gnoss.ws/carq//imagenes/Documentos/imgsem/6d/6d0a/6d0a5ca4-8ea3-4646-97e3-d4dbb7301f8a/f9f20b96-2663-42bd-8df4-f9c6e0763565.jpg, 0000043346/farmacia 4.jpg
https://content.gnoss.ws/carq/https://content.gnoss.ws/carq//imagenes/Documentos/imgsem/6d/6d0a/6d0a5ca4-8ea3-4646-97e3-d4dbb7301f8a/8bc98f71-fae6-4a74-892c-261bca641f84.jpg, 0000043346/farmacia 5.jpg
https://content.gnoss.ws/carq/https://content.gnoss.ws/carq//imagenes/Documentos/imgsem/6d/6d0a/6d0a5ca4-8ea3-4646-97e3-d4dbb7301f8a/a2216815-8752-4279-aa80-b5f64e71acba.jpg, 0000043346/farmacia 7.jpg
https://content.gnoss.ws/carq/https://content.gnoss.ws/carq//imagenes/Documentos/imgsem/6d/6d0a/6d0a5ca4-8ea3-4646-97e3-d4dbb7301f8a/1a7091c8-e38e-43e6-bf17-ca612b14f67c.jpg, 0000043346/farmacia 8.jpg
https://content.gnoss.ws/carq//imagenes/Documentos/imgsem/6d/6d0a/6d0a5ca4-8ea3-4646-97e3-d4dbb7301f8a/7c2e20fa-b3f7-403a-b08f-d4c9ef37ff42.jpg, 0000043346/nuevaFarmacia Secc Alz.jpg
https://content.gnoss.ws/carq//imagenes/Documentos/imgsem/6d/6d0a/6d0a5ca4-8ea3-4646-97e3-d4dbb7301f8a/0cb1997f-6b70-4b19-9d9b-a32741054c2d.jpg, 0000043346/0610-Planta.jpg



