Cargando...
La ciudad de Madrid cuenta con edificios residenciales de alta calidad realizados en los años cincuenta y sesenta, tanto a nivel urbanístico como a nivel de tipología de edificios y viviendas. Es el caso de la colonia Juan XIII en el barrio de Carabanchel diseñada por José Luis Romany, Carlos Ferrán y Eduardo Mangada y publicada en revistas especializadas de la época.
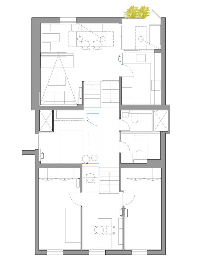
En esta colonia los arquitectos construyeron un tipo de vivienda importada del London County Council: el “scissors flat”. La vivienda tiene tres crujías a distinto nivel. La sala de estar, la cocina y la terraza están ubicadas en la crujía sureste. En la crujía intermedia, que se eleva media planta de las crujías exteriores, se encuentran dos baños y un dormitorio. En la crujía noroeste hay tres dormitorios. El recibidor al que se accede desde una galería se ubica en la crujía intermedia debajo de los baños y el dormitorio.
La reforma de esta vivienda respeta la calidad espacial de la vivienda original y busca dar una mayor continuidad espacial. Para ello se da protagonismo a la escalera limpiándola de los tabiques que la encajonan. El tabique de dormitorio ubicado en la crujía central se reemplaza por un cerramiento de vidrio que permite la transparencia que se complementa con una cortina corredera opaca que permite generar privacidad y oscuridad cuando es necesario.
Finalmente, se elimina el tabique del dormitorio central de la crujía exterior, convirtiéndolo en un estudio en continuidad con la escalera y el salón. De esta forma se puede visualizar el largo total de la casa de 14 m. Gracias a que la casa está en la planta superior, la crujía intermedia tiene luz natural. A lo largo del día se pueden percibir los rayos del sol penetrando en las diferentes zonas del espacio continuo.
Información general
Reforma de vivienda en la colonia Juan XXIII en Carabanchel
AÑO
Opción de visitas
Dirección
c/ de Aguilar del Río, 2
28044 Madrid - Madrid
Latitud: 40.371767144
Longitud: -3.759485274
Clasificación
Superficie construida
Estudios de arquitectura participantes
Información aportada por
g+f arquitectos
Colegio Oficial de Arquitectos de Madrid (COAM)
Ubicación
https://content.gnoss.ws/carq/https://content.gnoss.ws/carq//imagenes/Documentos/imgsem/66/6695/66950388-6a80-48ba-9447-ca4a03dc1cf4/f423ddd0-5727-4ed9-8411-fa0e935e5390.jpg, 0000054435/JUANXXIII-JM_DSC6321.jpg
https://content.gnoss.ws/carq//imagenes/Documentos/imgsem/66/6695/66950388-6a80-48ba-9447-ca4a03dc1cf4/a41de190-9589-43c5-a9a4-e5d8ebd13760.jpg, 0000054435/planta 300.jpg



