Cargando...
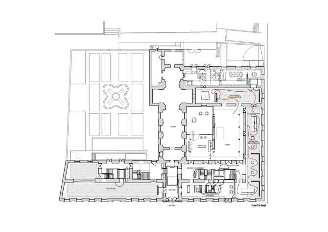
El objeto de la intervención, no es otro que adecuar uno de los edificios más importantes de la arquitectura barroca madrileña del siglo XVIII en un museo propio de nuestro tiempo que cumpla de forma equilibrada, rigurosa y racional con las funciones de un museo: conservar, investigar y exponer.
El reto, por tanto, se manifiesta en conseguir el equilibrio entre una intervención respetuosa hacia el edificio y una intervención que permita cumplir con la normativa y exigencias museológicas actuales. Las obras de rehabilitación suponían también una mejora del entorno, con el Museo Municipal como foco de atracción del espacio urbano en el que se inscribe.
Dichas obras de remodelación han permitido crear nuevos espacios expositivos y permiten nuevas formas de exponer las colecciones que definen el contenido del museo que tiene como finalidad contar la historia de la ciudad desde 1561 hasta nuestros días; mientras que el marco geográfico es el que abarca el perímetro urbano propiamente dicho. A través de sus colecciones el museo se plantea mostrar la evolución que ha sufrido Madrid desde la proclamación de capital, momento en que era poco menos que una pequeña ciudad poblada de conventos e iglesias, pasando por centro de un gran imperio hasta llegar a ser la ciudad moderna y cosmopolita en que se ha convertido.
El proyecto incluye la Instalación Museográfica
Promotor de la obra: AYUNTAMIENTO DE MADRID
Información general
Rehabilitación del Museo de Historia de Madrid
AÑO
Estado
Obra protegida
Opción de visitas
Dirección
c/ de Fuencarral, 78
28004 Madrid - Madrid
Latitud: 40.425728504
Longitud: -3.700710136
Clasificación
Superficie construida
Arquitectos participantes
Colaboradores
Juan González Cárceres (Ingeniero de estructuras)
Estudios de arquitectura participantes
Información aportada por
Frade Arquitectos
Ubicación
https://content.gnoss.ws/carq/https://content.gnoss.ws/carq//imagenes/Documentos/imgsem/8d/8df1/8df119ca-58b7-47fe-bfda-cd0a9ca7ce7d/0c87c3ca-2fe8-4b5a-b79b-0653c4f707fe.jpg, 0000059089/INTERIOR MUSEO DE HISTORIA.jpg
https://content.gnoss.ws/carq//imagenes/Documentos/imgsem/8d/8df1/8df119ca-58b7-47fe-bfda-cd0a9ca7ce7d/f8c157d3-eb96-4e09-a3aa-ef38a257fcad.jpg, 0000059089/PLANOS. MUSEO DE HISTORIA.jpg



