Cargando...
Una puerta gótica de piedra de Santana, que estaba de adorno en una pared del patio-zaguán, se ha convertido en puerta de invierno al trasladarla a la pared de enfrente; junto a ella otra puerta de verano que va de suelo a techo, tiene en su parte opaca un hueco que encaja con el de la gótica al correrla.
Sin hormigón en los forjados, con más vigas de melis de mayor sección para soportar más carga; con láminas de plomo ocultas para no transmitir ruidos. Puertas correderas en forma de vela hinchada; fragmentos de falsos tabiques, como velas rígidas, ocupan la posición de las antiguas divisiones de las estancias en la planta “señorial” que se abre con balcones a la calle.
Sin aire acondicionado y confiando en la inercia térmica del espesor de los muros, y con el soporte de quienes allí iban a trabajar, se evitaba una instalación costosa y de compleja incorporación al antiguo edificio.
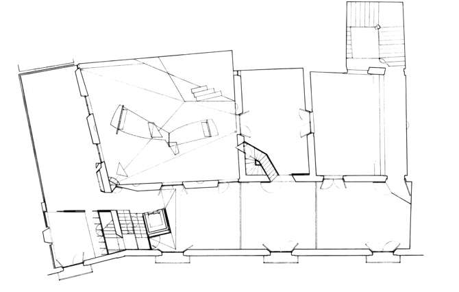
El nuevo ascensor terminó emergiendo sobre la cubierta de teja, se adornó con los cabezales de las vigas deterioradas de la logia; parecía uno más de los campanarios-minaretes y palomares sobre los tejados de Palma. Una escalera de gato en la que cada peldaño gira sobre el otro permite acceder desde el patio de la planta primera a la cubierta. Este patio iluminado por una cuchara-luz lo ocupan dos mesas basculantes para copas, libros, recepciones y fiestas; están apoyadas sobre lucernarios acristalados que bajan la luz a las dependencias del sótano.
Las paredes del patio están esgrafiadas con dibujos de columnas salomónicas. Las ventanas de sus muros se van inclinando para acompañar las inclinaciones de las cubiertas. Una escalera mueble que invade el despacho del concejal arranca trapezoidal y termina cuadrada para acoplarse al techo de vigas ordenadas. La logia se ha cerrado con una ventana acristalada colocada detrás de las columnas que soportan la techumbre y sobre los radiadores que se ocultan tras una reja de huecos corbata. Las paredes interiores están salpicadas de lámparas en forma de flecha y de abanico abierto.
Una lámpara de 1,80 m, con trenzado de palma blanca de Domingo de Ramos, cuelga del techo de la escalera del zaguán de entrada al edificio. Una gran maceta de cerámica para una palmera, apoyada sobre cuartos de esfera de bronce, ocupa el centro del zaguán.
En la fachada, aparte de la restauración del revoco, pocas transformaciones, puertas de madera con cortes a 45º acristalados y unos nuevos huecos romboidales para ver la calle cuando se entra al vestíbulo interior desde el zaguán. Se ha trastocado la casa, pero el aroma de su esencia parece permanecer.
Información general
Renovación de Can d'Oms
AÑO
Opción de visitas
Dirección
c/ de l'Almudaina, 7
07001 Palma - Illes Balears
Latitud: 39.568842546
Longitud: 2.6498329645
Clasificación
Superficie construida
Colaboradores
Arcadi de Bobes - Toni Tribó (Instalaciones)
STATIC - Gerardo Rodríguez (Estructura)
Guillem Julià (Arquitecto técnico)
Estudios de arquitectura participantes
Información aportada por
José Antonio Martínez Lapeña & Elías Torres Architects
Ubicación
https://content.gnoss.ws/carq/https://content.gnoss.ws/carq//imagenes/Documentos/imgsem/69/693d/693d15fa-8741-49cd-b9b9-c4b3684a624d/a506f7f0-3833-49c0-9885-ece3a0634eda.jpg, 0000020196/073_3.jpg
https://content.gnoss.ws/carq/https://content.gnoss.ws/carq//imagenes/Documentos/imgsem/69/693d/693d15fa-8741-49cd-b9b9-c4b3684a624d/32a8ae3d-0245-42b6-a95f-67365c7c1859.jpg, 0000020196/073_11b.jpg
https://content.gnoss.ws/carq/https://content.gnoss.ws/carq//imagenes/Documentos/imgsem/69/693d/693d15fa-8741-49cd-b9b9-c4b3684a624d/0ed6f052-11d7-4f41-90c0-30e86f295205.jpg, 0000020196/073_24.jpg
https://content.gnoss.ws/carq/https://content.gnoss.ws/carq//imagenes/Documentos/imgsem/69/693d/693d15fa-8741-49cd-b9b9-c4b3684a624d/d1c0e034-932b-4371-91ba-2b225f9bac56.jpg, 0000020196/073_27b.jpg
https://content.gnoss.ws/carq/https://content.gnoss.ws/carq//imagenes/Documentos/imgsem/69/693d/693d15fa-8741-49cd-b9b9-c4b3684a624d/55f5ec2f-65fc-46c0-8d82-4d9c969c8f99.jpg, 0000020196/073_6b.jpg
https://content.gnoss.ws/carq/https://content.gnoss.ws/carq//imagenes/Documentos/imgsem/69/693d/693d15fa-8741-49cd-b9b9-c4b3684a624d/01435df2-8f24-4fb4-9607-0bcaf1e4ec46.jpg, 0000020196/073_23b.jpg
https://content.gnoss.ws/carq/https://content.gnoss.ws/carq//imagenes/Documentos/imgsem/69/693d/693d15fa-8741-49cd-b9b9-c4b3684a624d/fe24e617-8933-43a6-8574-60fd933d4517.jpg, 0000020196/073_26a.jpg
https://content.gnoss.ws/carq/https://content.gnoss.ws/carq//imagenes/Documentos/imgsem/69/693d/693d15fa-8741-49cd-b9b9-c4b3684a624d/886d9d6c-0129-4f27-b98d-943f70a463ff.jpg, 0000020196/073_10a.jpg
https://content.gnoss.ws/carq/https://content.gnoss.ws/carq//imagenes/Documentos/imgsem/69/693d/693d15fa-8741-49cd-b9b9-c4b3684a624d/19f2bc3e-a947-4550-8104-3a3e84f25805.jpg, 0000020196/073_22.jpg
https://content.gnoss.ws/carq//imagenes/Documentos/imgsem/69/693d/693d15fa-8741-49cd-b9b9-c4b3684a624d/6a525543-3bb1-4541-8b29-c10856f00f67.jpg, 0000020196/073_21b.jpg
https://content.gnoss.ws/carq//imagenes/Documentos/imgsem/69/693d/693d15fa-8741-49cd-b9b9-c4b3684a624d/edd27e17-d9fd-4686-96ae-5c5858431d65.jpg, 0000020196/073_21c.jpg
https://content.gnoss.ws/carq//imagenes/Documentos/imgsem/69/693d/693d15fa-8741-49cd-b9b9-c4b3684a624d/c77f6852-63a2-43d0-a252-5af556318ac5.jpg, 0000020196/073_21d.jpg
https://content.gnoss.ws/carq//imagenes/Documentos/imgsem/69/693d/693d15fa-8741-49cd-b9b9-c4b3684a624d/ac5005f4-f8d0-432a-afac-57b63d03b0cc.jpg, 0000020196/073_21a.jpg
https://content.gnoss.ws/carq//imagenes/Documentos/imgsem/69/693d/693d15fa-8741-49cd-b9b9-c4b3684a624d/5b61be94-81c3-4831-afa4-869ed1745c1a.jpg, 0000020196/073_17.jpg



