Cargando...
This competition involved a double intervention.
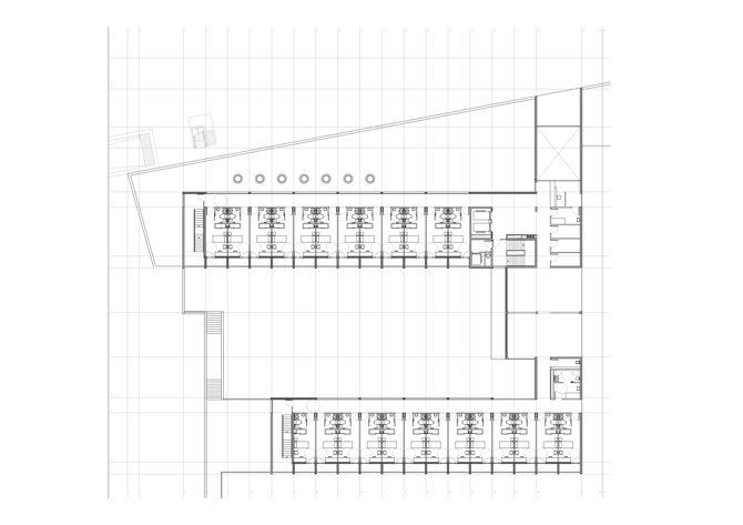
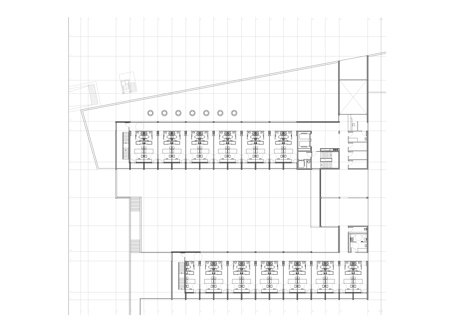
On the one hand, it involved the construction of a new building next to the historical building which would hold all of the welfare services for the permanent care of the elderly. On the other hand, it involved the rehabilitation of the former hospital, to hold different social services and associations. Both buildings were to be related, complementing each other in some way. The rehabilitation of the former hospital will be part of a later project, but to comprehend that of the nursing home, we must refer to the relationship established between the two buildings. The location has excellent characteristics for the use it is meant for. We look to fill a void in the urban weft of Durango, a block that is not only central in location, but also historic. Also located on it are the former church, converted into a theatre, and a health centre. This block will thus be one of public social service buildings. The new building looks to resolve the conflict of the different lineups on the location. The old building will serve as a guide to the proposal. The built volumes of rooms are placed around a new patio that makes up an answer and a continuation to the old building. The new building occupies the lot, enclosing its configuration. The enclosures of the lot are part of the architecture of the whole, modulating interior/exterior permeability. The configuration of the building means that the exterior spaces will be compartmentalized, taking on a smaller scale that will make them easily identified by the elderly residents.
.
Información general
Residencia tercera edad y Centro de día
AÑO
Opción de visitas
Dirección
c/ Jossemiel Barandiaran, 1
48200 Durango - Bizkaia
Latitud: 43.167733253
Longitud: -2.63349962
Clasificación
Sistema constructivo
Fachada de SATE
Superficie construida
Colaboradores
Información aportada por
Roberto Ercilla Arquitectura
-
César San Millán -
Planta baja - Roberto Ercilla -
Planta segunda - Roberto Ercilla -
César San Millán -
César San Millán -
Maqueta - Roberto Ercilla
Ubicación
https://content.gnoss.ws/carq/https://content.gnoss.ws/carq//imagenes/Documentos/imgsem/e9/e901/e9013f55-ec84-4efa-acac-2fe25fc31af9/9a10941b-2864-49df-b040-a1bfb2a7618c.jpg, 0000004596/034-Res. Durango.JPG
https://content.gnoss.ws/carq/https://content.gnoss.ws/carq//imagenes/Documentos/imgsem/e9/e901/e9013f55-ec84-4efa-acac-2fe25fc31af9/daacc1a5-eacb-4e55-80fa-9b4b33df220d.jpg, 0000004596/045-Res.Durango.jpg
https://content.gnoss.ws/carq/https://content.gnoss.ws/carq//imagenes/Documentos/imgsem/e9/e901/e9013f55-ec84-4efa-acac-2fe25fc31af9/e6dbb8a3-ab48-4bf3-81c1-80b7b67d7dde.jpg, 0000004596/003-Res. Durango.JPG
https://content.gnoss.ws/carq/https://content.gnoss.ws/carq//imagenes/Documentos/imgsem/e9/e901/e9013f55-ec84-4efa-acac-2fe25fc31af9/0bc26c66-2e10-45a9-9d94-fe080d0e6568.jpg, 0000004596/005-Res.Durango.jpg
https://content.gnoss.ws/carq/https://content.gnoss.ws/carq//imagenes/Documentos/imgsem/e9/e901/e9013f55-ec84-4efa-acac-2fe25fc31af9/15db4c7c-d46f-440b-9d3a-2a3e55e79fab.jpg, 0000004596/007-Res.Durango-07.jpg
https://content.gnoss.ws/carq/https://content.gnoss.ws/carq//imagenes/Documentos/imgsem/e9/e901/e9013f55-ec84-4efa-acac-2fe25fc31af9/4e4adfe4-8511-4bef-9269-10db956db84d.jpg, 0000004596/011-Res. Durango.jpg
https://content.gnoss.ws/carq/https://content.gnoss.ws/carq//imagenes/Documentos/imgsem/e9/e901/e9013f55-ec84-4efa-acac-2fe25fc31af9/377543fa-ab61-44d8-a256-c455951203db.jpg, 0000004596/015-Res. Durango.JPG
https://content.gnoss.ws/carq/https://content.gnoss.ws/carq//imagenes/Documentos/imgsem/e9/e901/e9013f55-ec84-4efa-acac-2fe25fc31af9/550311c4-e4bd-4d97-b901-de205b24b568.jpg, 0000004596/019-Res. Durango.JPG
https://content.gnoss.ws/carq/https://content.gnoss.ws/carq//imagenes/Documentos/imgsem/e9/e901/e9013f55-ec84-4efa-acac-2fe25fc31af9/907f3956-5e5c-48c6-933a-c2cf7367af87.jpg, 0000004596/024-Res. Durango.jpg
https://content.gnoss.ws/carq/https://content.gnoss.ws/carq//imagenes/Documentos/imgsem/e9/e901/e9013f55-ec84-4efa-acac-2fe25fc31af9/243cc477-0734-47c6-8f9a-e09a5118ff5b.jpg, 0000004596/031-Res. Durango.jpg
https://content.gnoss.ws/carq/https://content.gnoss.ws/carq//imagenes/Documentos/imgsem/e9/e901/e9013f55-ec84-4efa-acac-2fe25fc31af9/e6754160-3408-48e2-af07-d5e8940e1845.jpg, 0000004596/043-Res. Durango.jpg
https://content.gnoss.ws/carq//imagenes/Documentos/imgsem/e9/e901/e9013f55-ec84-4efa-acac-2fe25fc31af9/9c7e3b09-45a2-481d-8a16-eeac5ccd2564.jpg, 0000004596/A12_P+2-.jpg
https://content.gnoss.ws/carq//imagenes/Documentos/imgsem/e9/e901/e9013f55-ec84-4efa-acac-2fe25fc31af9/491bea43-3176-4656-a540-ecc26945112f.jpg, 0000004596/A10_PB_.jpg
https://content.gnoss.ws/carq//imagenes/Documentos/imgsem/e9/e901/e9013f55-ec84-4efa-acac-2fe25fc31af9/737ea6d0-58bc-4f77-bb16-c5649837df97.jpg, 0000004596/A13_P+3-.jpg
https://content.gnoss.ws/carq//imagenes/Documentos/imgsem/e9/e901/e9013f55-ec84-4efa-acac-2fe25fc31af9/47479930-8a00-4ac6-b159-0aa44949585f.jpg, 0000004596/alzados2 copia.jpg
https://content.gnoss.ws/carq//imagenes/Documentos/imgsem/e9/e901/e9013f55-ec84-4efa-acac-2fe25fc31af9/a7e29d45-52a5-4f5c-b85c-17bd40ecfb2d.jpg, 0000004596/A11_P+1.jpg
https://content.gnoss.ws/carq//imagenes/Documentos/imgsem/e9/e901/e9013f55-ec84-4efa-acac-2fe25fc31af9/258efe76-dff1-4847-a486-6bc50ab22d4e.jpg, 0000004596/alzado1 copia.jpg
https://content.gnoss.ws/carq//imagenes/Documentos/imgsem/e9/e901/e9013f55-ec84-4efa-acac-2fe25fc31af9/9ccc96b7-aac6-464c-83fd-58a7b90c30bd.jpg, 0000004596/alzados4 copia.jpg
https://content.gnoss.ws/carq//imagenes/Documentos/imgsem/e9/e901/e9013f55-ec84-4efa-acac-2fe25fc31af9/d8057073-dca1-40bd-b646-d44425cb0b46.jpg, 0000004596/alzados3 copia.jpg







