Cargando...
Valladolid ha desarrollado en los últimos años una gran actividad entorno al mundo del vino, donde a la denominación de origen de la Ribera de Duero se han unido más recientemente las de Rueda y Cigales, cuyos viñedos y bodegas, se extienden a lo largo de amplias zonas geográficas de la provincia.
El encargo surge por iniciativa de varios empresarios del sector unidos en una sociedad, con intención de crear un espacio dedicado al mundo del vino, aunque con una apuesta comercial más amplia que la de los vinos de zona de Valladolid.
Aunque en un principio la oferta culinaria no estaba del todo clara y se fue definiendo a medida que fuimos desarrollando el proyecto, lo que si estaba claro era la intención de disponer de espacio suficiente para una gran cantidad de botellas de vino, procedentes de bodegas de todo el mundo.
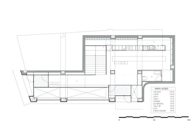
El local del proyecto ocupaba la esquina de los bajos comerciales de un edificio de viviendas con fachadas a la Plaza de Martí y Monsó y Calle Comedias, situada en el casco histórico de Valladolid y a escasos metros de la Plaza mayor. El edificio, construido en los años 70, presentaba prefabricados de fachada que se extendían hasta la fachada del local formando pilastras que el Plan especial del Casco Histórico obligaba a mantener.
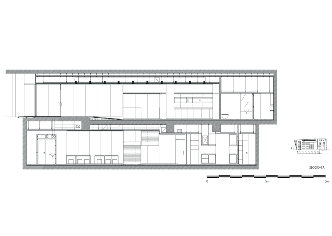
Se trataba de un local con dos niveles, uno en planta de calle, que en ese momento funcionaba como cafetería, y otro en planta de sótano, mucho más amplio y oscuro, que funcionaba como almacén. Uno de los locales medianeros mordía en una esquina al local en planta baja, y esta particularidad no existía en el sótano en el que tres grandes pilares se sitúan desordenadamente en el espacio. Grandes vigas de canto descolgaban en el techo de la planta de sótano lo que suponía un reto a la hora de pensar en los futuros conductos de instalaciones.
En este contexto en el que la indefinición inicial del tipo de restaurante al que iba a estar destinado el local, sus difíciles características físicas, y la restrictiva normativa del PECH, iniciamos el proyecto con una serie de intenciones claras. Por un lado necesitábamos convertir al espacio del sótano, en un lugar atractivo y sugerente para el público, introduciendo luz natural, y por otro lado, una cava, con las aproximadamente 5000 botellas de vino de todas las zonas vinícolas el mundo, debería convertirse en la referencia del espacio.
Desde la primeras propuestas planteábamos un espacio organizado en dos plantas comunicadas a través de un hueco de doble altura situado a lo largo de la fachada a la calle Comedias. Con este hueco conseguíamos dar luz al sótano y comunicar espacial y visualmente ambas plantas creando visuales desde la calle sobre el espacio inferior. Una escalera situada en el centro del local, tangente a la pared medianera del local vecino, sirve de comunicación entre las dos plantas y ayuda a dividir el espacio inferior en dos zonas diferenciadas, con mesas ligadas a las paredes y cerramientos.
Una gran cava-bodega o cámara acristalada de vinos actúa como elemento de referencia visual y temática, generando con la escalera y la abertura frontal, una continuidad espacial entre las dos plantas y la calle. Dos entradas, una desde la Plaza y otra desde la calle lateral, confluyen en el interior en una amplia zona alargada de acceso a doble altura sobre el espacio inferior, de donde parte la escalera hacia el sótano. La posición al fondo de la cava, un gran mural retroiluminado con una fotografía de uvas de gran tamaño, el acristalamiento total de las fachadas que consiguen extender el espacio interior hacia la calle y la plaza, y el intento de dar utilidad al sótano introduciendo la luz natural sobre las mesas del restaurante, fueron los objetivos principales del proyecto.
Información general
Restaurante Mil Vinos
AÑO
Estado
Desaparecida
Opción de visitas
Dirección
plza. Martí y Monsó, 2
47001 Valladolid - Valladolid
Latitud: 41.651740165
Longitud: -4.730595159
Clasificación
Sistema constructivo
Vidrios laminados, Paneles acústicos, Paneles estratificados de aluminio, madera o color, Solados de madera o gres rectificado en color negro. Paneles minionda de fibra de vidrio, hielo.
Superficie construida
Estudios de arquitectura participantes
Información aportada por
Colegio Oficial de Arquitectos de Castilla y León (COACYLE)
Enlaces web
Ubicación
Itinerarios
https://content.gnoss.ws/carq/https://content.gnoss.ws/carq//imagenes/Documentos/imgsem/f0/f0aa/f0aa6589-0000-4ab5-982b-563e1deecb45/0c85cc56-4fa6-410e-93a9-ca15998ad1cb.jpg, 0000043400/19.jpg
https://content.gnoss.ws/carq/https://content.gnoss.ws/carq//imagenes/Documentos/imgsem/f0/f0aa/f0aa6589-0000-4ab5-982b-563e1deecb45/e6c32e6a-fc3c-45b4-83a7-373621ddaf46.jpg, 0000043400/05.jpg
https://content.gnoss.ws/carq/https://content.gnoss.ws/carq//imagenes/Documentos/imgsem/f0/f0aa/f0aa6589-0000-4ab5-982b-563e1deecb45/9f8b5a6a-2436-4e2e-86ff-620f715138ee.jpg, 0000043400/07.jpg
https://content.gnoss.ws/carq/https://content.gnoss.ws/carq//imagenes/Documentos/imgsem/f0/f0aa/f0aa6589-0000-4ab5-982b-563e1deecb45/5823fafc-2232-485c-8ffa-b97d41f05612.jpg, 0000043400/12.jpg
https://content.gnoss.ws/carq/https://content.gnoss.ws/carq//imagenes/Documentos/imgsem/f0/f0aa/f0aa6589-0000-4ab5-982b-563e1deecb45/346779fc-11a6-462c-8177-26db31f74ff2.jpg, 0000043400/15.jpg
https://content.gnoss.ws/carq/https://content.gnoss.ws/carq//imagenes/Documentos/imgsem/f0/f0aa/f0aa6589-0000-4ab5-982b-563e1deecb45/39ab8c44-b8e9-4ce1-a01b-b1bdc6569a70.jpg, 0000043400/16.jpg
https://content.gnoss.ws/carq/https://content.gnoss.ws/carq//imagenes/Documentos/imgsem/f0/f0aa/f0aa6589-0000-4ab5-982b-563e1deecb45/b5ec1b60-efe3-40c6-8388-a6746334d7f0.jpg, 0000043400/17.jpg
https://content.gnoss.ws/carq/https://content.gnoss.ws/carq//imagenes/Documentos/imgsem/f0/f0aa/f0aa6589-0000-4ab5-982b-563e1deecb45/0a1cf1b5-dd46-4edc-89cf-8783447a1823.jpg, 0000043400/18.jpg
https://content.gnoss.ws/carq//imagenes/Documentos/imgsem/f0/f0aa/f0aa6589-0000-4ab5-982b-563e1deecb45/b96ff1d7-cc83-4f67-955f-8a7d752bc545.jpg, 0000043400/SECCION A.jpg
https://content.gnoss.ws/carq//imagenes/Documentos/imgsem/f0/f0aa/f0aa6589-0000-4ab5-982b-563e1deecb45/f5b4bb0a-0883-4c74-a126-33d42722cfac.jpg, 0000043400/PLANTA ACCESO.jpg
https://content.gnoss.ws/carq//imagenes/Documentos/imgsem/f0/f0aa/f0aa6589-0000-4ab5-982b-563e1deecb45/3d7ab7ba-4d79-47ee-b6f2-fc6569416c4c.jpg, 0000043400/SECCION B.jpg
https://content.gnoss.ws/carq//imagenes/Documentos/imgsem/f0/f0aa/f0aa6589-0000-4ab5-982b-563e1deecb45/f0b261a9-ea76-4ac7-9d4e-002dc6b28956.jpg, 0000043400/SECCION C.jpg
https://content.gnoss.ws/carq//imagenes/Documentos/imgsem/f0/f0aa/f0aa6589-0000-4ab5-982b-563e1deecb45/34fbb207-9a40-42dd-899b-37c050a62384.jpg, 0000043400/PLANTA SOTANO.jpg
https://content.gnoss.ws/carq//imagenes/Documentos/imgsem/f0/f0aa/f0aa6589-0000-4ab5-982b-563e1deecb45/5af04b13-c430-41cb-9b3e-ae999bcdaaea.jpg, 0000043400/SEC DETALLE 2.jpg
https://content.gnoss.ws/carq//imagenes/Documentos/imgsem/f0/f0aa/f0aa6589-0000-4ab5-982b-563e1deecb45/40af0552-973d-40c1-8f54-91c9e2ee96b4.jpg, 0000043400/img01570.jpg
https://content.gnoss.ws/carq//imagenes/Documentos/imgsem/f0/f0aa/f0aa6589-0000-4ab5-982b-563e1deecb45/81db8433-e6b8-448e-9022-34559713487e.jpg, 0000043400/SEC DETALLE 1.jpg



