Cargando...
Santa Clara 11 se asienta en una de las mejores zonas del casco antiguo de Gerona, frente al río. El objetivo del desarrollador Gironi es transformar un edificio de pisos densos de oficinas de los años 70 en una nueva tipología de vivienda dinámica.
Se desarrollan varias operaciones quirúrgicas para transformar la estructura del movimiento moderno aparentemente indiferente en un edificio Gironi arraigado, vinculado a las preexistencias del tejido urbano. Todas destinadas tanto a mejorar la calidad de vida común del habitante como a potenciar los valores urbanos.
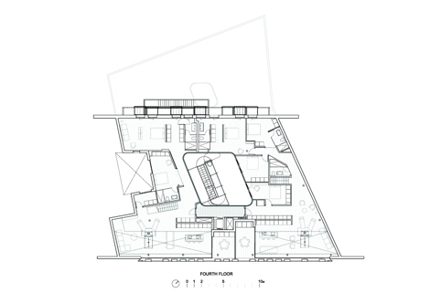
Se propone un nuevo patio con curvas. Este se concibe como un espacio moderno, transparente, luminoso, abierto al cielo. Como corazón de un edificio, proporciona luz, ventilación y carácter a las viviendas y al público. Se define en bloques de vidrio siguiendo la tradición del norte de Europa, desde el vienés Otto Wagner hasta el modernismo de Pierre Chareau.
Información general
Santa Clara 11
AÑO
Opción de visitas
Dirección
c/ de Santa Clara, 11
17001 Girona - Girona
Latitud: 41.983201148
Longitud: 2.822782388
Clasificación
Materiales construcción
Superficie construida
Premios
Arquitectos participantes
Estudios de arquitectura participantes
Información aportada por
EUMies Award
-
EUMies Award -
Planta - Lagula Arquitectes -
Adrià Goula, vía EUMies Award -
Exterior - Adrià Goula
Ubicación
https://content.gnoss.ws/carq/https://content.gnoss.ws/carq//imagenes/Documentos/imgsem/c3/c3b1/c3b1f10a-ad22-4b8d-8cf9-705ae779def8/77933b62-55bb-413b-955e-83bb33c3192c.jpeg, 0000011883/Santa Clara 1_lagula.jpeg
https://content.gnoss.ws/carq/https://content.gnoss.ws/carq//imagenes/Documentos/imgsem/c3/c3b1/c3b1f10a-ad22-4b8d-8cf9-705ae779def8/12e86629-81f8-4c28-937f-01a2a2de5bb6.jpeg, 0000011883/Santa Clara 2_lagula.jpeg
https://content.gnoss.ws/carq/https://content.gnoss.ws/carq//imagenes/Documentos/imgsem/c3/c3b1/c3b1f10a-ad22-4b8d-8cf9-705ae779def8/e3cdca07-d2d3-4e90-a24c-6f8793dfe9a6.jpeg, 0000011883/Santa Clara 3_lagula.jpeg
https://content.gnoss.ws/carq/https://content.gnoss.ws/carq//imagenes/Documentos/imgsem/c3/c3b1/c3b1f10a-ad22-4b8d-8cf9-705ae779def8/7b9534ff-a4bf-4aad-a0da-a319a746daf3.jpeg, 0000011883/3bc725f72186a3ce4e82cf1cfd7c344ed88d0845.jpeg
https://content.gnoss.ws/carq/https://content.gnoss.ws/carq//imagenes/Documentos/imgsem/c3/c3b1/c3b1f10a-ad22-4b8d-8cf9-705ae779def8/c5075eff-1bd6-489b-ba63-0e6a398990b0.jpeg, 0000011883/3beff9107d5ae733a1e3b1aec85df01363268d1a.jpeg
https://content.gnoss.ws/carq/https://content.gnoss.ws/carq//imagenes/Documentos/imgsem/c3/c3b1/c3b1f10a-ad22-4b8d-8cf9-705ae779def8/cf3d19ab-e376-49e2-98e1-71e5f7c021e7.jpeg, 0000011883/3fc6b54b09a5ebde28e7a1d3766d6e89e6e95cbd.jpeg
https://content.gnoss.ws/carq//imagenes/Documentos/imgsem/c3/c3b1/c3b1f10a-ad22-4b8d-8cf9-705ae779def8/2b72dbc3-2047-41cd-b4a6-5bf5dba2a77a.jpg, 0000011883/Santa clara 4.lagula.jpg
https://content.gnoss.ws/carq//imagenes/Documentos/imgsem/c3/c3b1/c3b1f10a-ad22-4b8d-8cf9-705ae779def8/4f171da3-6dac-47a4-9ec7-676acd951738.jpeg, 0000011883/5d74f07bb9ba7ea0fbda32f8aa271312d409afa0.jpeg
https://content.gnoss.ws/carq//imagenes/Documentos/imgsem/c3/c3b1/c3b1f10a-ad22-4b8d-8cf9-705ae779def8/daa1110d-df8e-4f93-8682-22336c7dd080.jpeg, 0000011883/223799eabb2e2802f74872bb97684427bfdbea4e.jpeg
https://content.gnoss.ws/carq//imagenes/Documentos/imgsem/c3/c3b1/c3b1f10a-ad22-4b8d-8cf9-705ae779def8/c01be701-4159-44d1-8b63-db52d8dd7a48.jpg, 0000011883/Santa clara 5.lagula.jpg
https://content.gnoss.ws/carq//imagenes/Documentos/imgsem/c3/c3b1/c3b1f10a-ad22-4b8d-8cf9-705ae779def8/6e4b5013-b967-4359-a0d5-942df70bfdaf.jpeg, 0000011883/73ba5fc4eb14144a3f9d3cf27426cb40331932d2.jpeg
https://content.gnoss.ws/carq//imagenes/Documentos/imgsem/c3/c3b1/c3b1f10a-ad22-4b8d-8cf9-705ae779def8/54f4c2e0-c208-4d43-82da-e5e9b1786375.jpeg, 0000011883/c0b49721ebc5667e39b9ae09c17d0cde3e217c59.jpeg





