Cargando...
Modulando luces, transparencias y reflejos
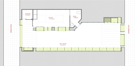
La sede del club local de rugby de Durango se ubica en un bajo de 90 m2 de un edificio de viviendas entre medianeras en el casco antiguo del municipio. Todas las hileras de casas del casco cuentan con una fachada principal a una calle pública y una segunda fachada a una pequeña calle semiprivada de unos 2,5 m de ancho que actúa de separación con la siguiente hilera. A este pasaje secundario al cual nuestro edificio se abre, siempre se le ha dado la espalda, ha sido utilizado como tendedero de ropa, almacén de los bares, zona de instalaciones... Este local en particular, además de las dos fachadas anteriormente mencionadas, cuenta con dos entradas de luz cenitales desde un patio del edificio.
El proyecto se concibe desde la captación máxima de luz natural y la gestión de esta a través de los espacios interiores, creando un juego de luces, transparencias y reflejos. Todo el espacio se ha modulado según las placas de policarbonato celular de 33 cm de ancho y 6 m de largo, adaptando a dicha modulación todos los elementos constructivos, de mobiliario e iluminación natural y artificial. La naturaleza translúcida del material permite que las paredes y los techos puedan ser retroiluminados.
El carácter reflectante del techo hace que se desdibujen los límites, aumentando la sensación espacial y bañando el interior con el reflejo de la luz exterior. La fachada pública, terminada en bloques de vidrio, potencia la captación de luz natural y genera el efecto contrario de noche, creando un efecto linterna y dotando al local de un carácter propio dentro de la trama urbana.
Información general
Sede Durango Rugby Taldea
AÑO
Opción de visitas
Dirección
c/ Goienkale, 24
48200 Durango - Bizkaia
Latitud: 43.166084807
Longitud: -2.631568897
Clasificación
Superficie construida
Estudios de arquitectura participantes
Información aportada por
Ele Arkitektura
-
planta - ELE arkitektura -
situación - ELE arkitektura -
fachada pública - ELE arkitektura
Ubicación
https://content.gnoss.ws/carq/https://content.gnoss.ws/carq//imagenes/Documentos/imgsem/a7/a728/a728b89b-1f9c-4baf-ab47-8e8d8da51a0c/2b2b3cf3-568e-4a44-98f1-465c0b157632.jpg, 0000013903/202008189475dbs.JPG
https://content.gnoss.ws/carq/https://content.gnoss.ws/carq//imagenes/Documentos/imgsem/a7/a728/a728b89b-1f9c-4baf-ab47-8e8d8da51a0c/a3be1406-0202-4874-a735-8ec3c1984757.jpg, 0000013903/1.1(foto eloi landia).jpg
https://content.gnoss.ws/carq/https://content.gnoss.ws/carq//imagenes/Documentos/imgsem/a7/a728/a728b89b-1f9c-4baf-ab47-8e8d8da51a0c/addb30ed-ac67-4193-9402-f59da584e1d5.jpg, 0000013903/202008189695cbs.JPG
https://content.gnoss.ws/carq/https://content.gnoss.ws/carq//imagenes/Documentos/imgsem/a7/a728/a728b89b-1f9c-4baf-ab47-8e8d8da51a0c/76ff2c5d-aab4-48ef-906c-e34c4a5e9f0c.jpg, 0000013903/2.1(foto eloi landia).jpg
https://content.gnoss.ws/carq/https://content.gnoss.ws/carq//imagenes/Documentos/imgsem/a7/a728/a728b89b-1f9c-4baf-ab47-8e8d8da51a0c/50c983b9-e283-42b9-ac66-7747d86ad6c2.jpg, 0000013903/202008189455cbs.JPG
https://content.gnoss.ws/carq/https://content.gnoss.ws/carq//imagenes/Documentos/imgsem/a7/a728/a728b89b-1f9c-4baf-ab47-8e8d8da51a0c/7b88fdec-ef4c-4dae-9f0f-144c6651eb87.jpg, 0000013903/202008189385dbs.JPG
https://content.gnoss.ws/carq/https://content.gnoss.ws/carq//imagenes/Documentos/imgsem/a7/a728/a728b89b-1f9c-4baf-ab47-8e8d8da51a0c/1e63bb93-f8cb-4e37-b05f-c89091802cc4.jpg, 0000013903/202008189402dbs.JPG
https://content.gnoss.ws/carq/https://content.gnoss.ws/carq//imagenes/Documentos/imgsem/a7/a728/a728b89b-1f9c-4baf-ab47-8e8d8da51a0c/ca18230a-f206-48b8-922c-d7a3eba794f2.jpg, 0000013903/202008189530cbs.JPG
https://content.gnoss.ws/carq/https://content.gnoss.ws/carq//imagenes/Documentos/imgsem/a7/a728/a728b89b-1f9c-4baf-ab47-8e8d8da51a0c/71cc9b78-dff5-4aac-b240-5f4ff51383b1.jpg, 0000013903/202008189665dbs.JPG
https://content.gnoss.ws/carq/https://content.gnoss.ws/carq//imagenes/Documentos/imgsem/a7/a728/a728b89b-1f9c-4baf-ab47-8e8d8da51a0c/c057a85c-9b92-4adf-af7a-d63df1a6d838.jpg, 0000013903/202008189515cbs.JPG
https://content.gnoss.ws/carq/https://content.gnoss.ws/carq//imagenes/Documentos/imgsem/a7/a728/a728b89b-1f9c-4baf-ab47-8e8d8da51a0c/6b904420-4adf-4666-ada4-e0165db3eddc.jpg, 0000013903/202008189745cbs.JPG
https://content.gnoss.ws/carq//imagenes/Documentos/imgsem/a7/a728/a728b89b-1f9c-4baf-ab47-8e8d8da51a0c/545785a3-bfb0-476d-a151-0b231c9fb41c.jpg, 0000013903/rugby situacion (1).jpg
https://content.gnoss.ws/carq//imagenes/Documentos/imgsem/a7/a728/a728b89b-1f9c-4baf-ab47-8e8d8da51a0c/1125d896-6f41-4a58-b587-b1f828e3d786.jpg, 0000013903/PLANTA.jpg
https://content.gnoss.ws/carq//imagenes/Documentos/imgsem/a7/a728/a728b89b-1f9c-4baf-ab47-8e8d8da51a0c/2329bd10-5e3a-4fb2-ba7b-dabbc8f3e887.jpg, 0000013903/AXO RUGBY TUNEADA 3.jpg




