Cargando...
Solo House es una residencia de campo en un gran bosque virgen, en la región montañosa del Matarraña, a dos horas al sur de Barcelona. Solo House es una de las 12 casas de vacaciones encargadas a diferentes estudios de arquitectura y repartidas por una amplia zona aislada en las colinas de la comarca del Matarraña, al sur de Barcelona.
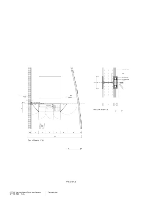
Se levanta en medio de un bosque natural, su planta circular enmarca el borde de una meseta que domina el paisaje. El suelo y la cubierta –dos losas anulares de hormigón de 4,5 m de ancho y 40 m de diámetro interior– definen la casa como un perímetro ampliado. El tejado se apoya en 4 estructuras de acero de 9 columnas. Colocados como cuerdas del círculo, describen colectivamente un cuadrado. Los 4 segmentos que definen son los únicos espacios cerrados de la casa. Tres de los 4 están cerrados por acristalamientos colocados dentro de los marcos de acero y arcos deslizantes de paneles curvos de policarbonato cubiertos con malla de aluminio estirado. Estos grandes tramos de fachada de cortina se deslizan en el borde exterior del círculo, permitiendo que las zonas de estar se abran completamente, y proporcionando una relación máxima entre el habitante y la naturaleza circundante. Todos los aparatos están montados directamente sobre las columnas. El cuarto segmento sirve de casa de la piscina, cuyo suelo retiene el agua de la cuenca inclinada dentro del patio interior.
Dado que el terreno no está conectado a ningún servicio, la casa será completamente autosuficiente. En el tejado, un conjunto expuesto de máquinas necesarias para garantizar la autosuficiencia de la casa rompe su consistencia formal.
Los paneles fotovoltaicos proporcionarán energía térmica y eléctrica, que se almacenará en depósitos de reserva. El agua se reclama en el propio emplazamiento, y se purifica tras su uso. Cada uno de los dispositivos se colocan como objetos abstractos en el tejado.
Información general
Solo House
AÑO
Opción de visitas
Dirección
44623 Cretas - Teruel
Latitud: 40.880619196
Longitud: 0.2310094414
Clasificación
Materiales construcción
Superficie construida
Premios
Información aportada por
EUMies Award
-
EUMies Award -
EUMies Award -
Bas Princen
Ubicación
Itinerarios
https://content.gnoss.ws/carq/https://content.gnoss.ws/carq//imagenes/Documentos/imgsem/7a/7a9c/7a9c4cf6-b7bd-4ef5-86b7-1b892c81c18f/92a00999-62b9-4d0b-b059-9a1ed126a09b.jpg, 0000000554/ACUE2019_06_SOLO HOUSE_Princen_01.jpg
https://content.gnoss.ws/carq/https://content.gnoss.ws/carq//imagenes/Documentos/imgsem/7a/7a9c/7a9c4cf6-b7bd-4ef5-86b7-1b892c81c18f/4af717cf-ad3a-48a7-9668-0d9a9caaa9c6.jpg, 0000000554/ACUE2019_06_SOLO HOUSE_Princen_02.jpg
https://content.gnoss.ws/carq/https://content.gnoss.ws/carq//imagenes/Documentos/imgsem/7a/7a9c/7a9c4cf6-b7bd-4ef5-86b7-1b892c81c18f/1aac3220-8fa2-46aa-8da9-3c8b78b81bd1.jpeg, 0000000554/455e7fe6c1f357c1083f08354fb14f86680d3f18.jpeg
https://content.gnoss.ws/carq/https://content.gnoss.ws/carq//imagenes/Documentos/imgsem/7a/7a9c/7a9c4cf6-b7bd-4ef5-86b7-1b892c81c18f/8edc4bff-b2ed-445b-9a63-a1cab84c248f.jpeg, 0000000554/854dd57419c4d26ebb5c2f226e7b00ec39c23b6e.jpeg
https://content.gnoss.ws/carq/https://content.gnoss.ws/carq//imagenes/Documentos/imgsem/7a/7a9c/7a9c4cf6-b7bd-4ef5-86b7-1b892c81c18f/adf0ed37-998e-4114-b6d2-f855b799d13b.jpeg, 0000000554/3472fb6116470e55b9c9421da340b502653ad20f.jpeg
https://content.gnoss.ws/carq/https://content.gnoss.ws/carq//imagenes/Documentos/imgsem/7a/7a9c/7a9c4cf6-b7bd-4ef5-86b7-1b892c81c18f/b496bbf7-df33-4b48-aac4-557a8743eef3.jpeg, 0000000554/e3b1c6d57ced4ca1e8fab3075daa1bdcdc6d9272.jpeg
https://content.gnoss.ws/carq/https://content.gnoss.ws/carq//imagenes/Documentos/imgsem/7a/7a9c/7a9c4cf6-b7bd-4ef5-86b7-1b892c81c18f/1696f62c-be3e-4b70-8b50-0a6e3780f6fc.jpeg, 0000000554/ebe2b46b517af4253257b760f025dcf954ec29ce.jpeg
https://content.gnoss.ws/carq//imagenes/Documentos/imgsem/7a/7a9c/7a9c4cf6-b7bd-4ef5-86b7-1b892c81c18f/14797252-e36f-421b-9cfa-b4274c739f32.jpeg, 0000000554/8c91617ee48c44e8d270708b3fc570541bd9583f.jpeg
https://content.gnoss.ws/carq//imagenes/Documentos/imgsem/7a/7a9c/7a9c4cf6-b7bd-4ef5-86b7-1b892c81c18f/857c0479-2c38-440e-9b51-9f3e5f91671c.jpeg, 0000000554/979e1883afb57a0eab1fe98247790bd574fc8c9d.jpeg
https://content.gnoss.ws/carq//imagenes/Documentos/imgsem/7a/7a9c/7a9c4cf6-b7bd-4ef5-86b7-1b892c81c18f/0c3102a9-bf9b-4786-aea7-0a17041ebf42.jpeg, 0000000554/f8bb9f76c7aeb5c2b3c80a15c3dcc1ce25734f03.jpeg
https://content.gnoss.ws/carq//imagenes/Documentos/imgsem/7a/7a9c/7a9c4cf6-b7bd-4ef5-86b7-1b892c81c18f/2e8f6a52-6d28-4020-a2f5-9975e09e76fd.jpeg, 0000000554/aaa7f1692d9f5315c9546eb41708714cf80d2aef.jpeg




