Cargando...
La subestación eléctrica está situada en un borde de uno de los distritos más grandes, populosos y pobres al este de la ciudad, que toma su nombre de la Hacienda Amate, sobre cuyos terrenos se ha ido desarrollando un heterogéneo conjunto de barriadas que, en 1929, con motivo de la Exposición Iberoamericana, comenzó a realojar población chabolista; si bien no adquiriría forma hasta mediados de los años cuarenta, con un asentamiento espontáneo y autoconstruido desarrollado por la primera oleada de emigrantes de procedencia rural y condición campesina. Este núcleo, consolidado con el paso del tiempo y sucesivas actuaciones de mejora y reurbanización, se asemeja a un pueblecito por su escala menuda, inmutable entre las torres que fueron alzándose en su entorno hasta bien entrada la década de los noventa.
Los límites del barrio experimentaron una metamorfosis como consecuencia de las grandes obras de infraestructura acometidas en torno al evento Expo 92; la ronda de circunvalación S-30 y el eje de entronque con la autovía A-92, avenida de Andalucía. Concretamente en el frente sur a esta avenida, el planeamiento contempla la sustitución de la primera banda de casas por una serie de edificios de equipamiento, entre los que está la subestación eléctrica adosada a una gasolinera existente. En el frente opuesto, el soterramiento de una línea de alta tensión permite la renovación de las naves y la ocupación de los vacíos existentes en el polígono industrial.
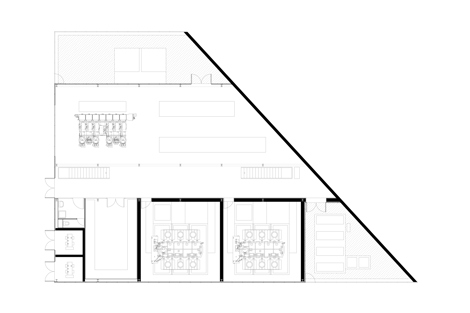
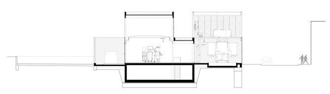
La subestación eléctrica hereda la escala doméstica del caserío y adopta la materialidad metálica del polígono, en un ejercicio de síntesis urbana que aspira a armonizar este territorio de fragmentos destartalados.
El jardín, ahora frondoso, resultante de traducir los deseos de los vecinos, contribuye a esta tregua tan necesaria en lugares sin memoria.
Información general
Subestación Eléctrica Amate
AÑO
Opción de visitas
Dirección
c/ Maravedí, 9
41006 Sevilla - Sevilla
Latitud: 37.386388775
Longitud: -5.947992851
Clasificación
Materiales construcción
Superficie construida
Estudios de arquitectura participantes
Información aportada por
Rubiño García Márquez Arquitectos
Enlaces web
-
Subestación Eléctrica Amate - Rubiño García Márquez Arquitectos -
Subestación Eléctrica Amate - Rubiño García Márquez Arquitectos -
Fernando Alda, vía Rubiño García Márquez Arquitectos
Ubicación
https://content.gnoss.ws/carq/https://content.gnoss.ws/carq//imagenes/Documentos/imgsem/4f/4f95/4f950171-9abf-4890-a3ab-807265c45a9d/858b8e57-3aba-4542-82fe-dbc4fcad3a86.jpg, 0000004671/01_SUBESTACION ELECTRICA AMATE_Imagen1ppal.jpg
https://content.gnoss.ws/carq/https://content.gnoss.ws/carq//imagenes/Documentos/imgsem/4f/4f95/4f950171-9abf-4890-a3ab-807265c45a9d/21addd00-6e72-4fe3-9509-c7a7847bbbf2.jpg, 0000004671/02_SUBESTACION ELECTRICA AMATE_Imagen2.jpg
https://content.gnoss.ws/carq/https://content.gnoss.ws/carq//imagenes/Documentos/imgsem/4f/4f95/4f950171-9abf-4890-a3ab-807265c45a9d/372553ef-19b5-4db0-9e1d-c3ce8c630c5e.jpg, 0000004671/03_SUBESTACION ELECTRICA AMATE_Imagen3.jpg
https://content.gnoss.ws/carq/https://content.gnoss.ws/carq//imagenes/Documentos/imgsem/4f/4f95/4f950171-9abf-4890-a3ab-807265c45a9d/5f54b9ba-d54b-4edf-96df-fba8d0d2ac7a.jpg, 0000004671/04_SUBESTACION ELECTRICA AMATE_Imagen4.JPG
https://content.gnoss.ws/carq/https://content.gnoss.ws/carq//imagenes/Documentos/imgsem/4f/4f95/4f950171-9abf-4890-a3ab-807265c45a9d/9a9f90cf-30f8-4c02-aa96-641c1235d954.jpg, 0000004671/06_SUBESTACION ELECTRICA AMATE_Imagen6.jpg
https://content.gnoss.ws/carq/https://content.gnoss.ws/carq//imagenes/Documentos/imgsem/4f/4f95/4f950171-9abf-4890-a3ab-807265c45a9d/85a1a5d9-b421-4fc8-84b5-2d7d4c7df9bb.jpg, 0000004671/07_SUBESTACION ELECTRICA AMATE_Imagen7.jpg
https://content.gnoss.ws/carq//imagenes/Documentos/imgsem/4f/4f95/4f950171-9abf-4890-a3ab-807265c45a9d/d33dcfec-744e-41db-b00b-0628f9e8ad6c.jpg, 0000004671/00C_SUBESTACION AMATE_Seccion.jpg
https://content.gnoss.ws/carq//imagenes/Documentos/imgsem/4f/4f95/4f950171-9abf-4890-a3ab-807265c45a9d/0fca6e9b-a412-47b8-8d62-46a9756be6b5.jpg, 0000004671/00B_SUBESTACION AMATE_Planta.jpg
https://content.gnoss.ws/carq//imagenes/Documentos/imgsem/4f/4f95/4f950171-9abf-4890-a3ab-807265c45a9d/5026f209-faa1-40c8-acea-8aad859dacdd.jpg, 0000004671/00A_SUBESTACION AMATE_Situacion.jpg




