Cargando...
El tanatorio enmarca las sensaciones de gran calado de sus usuarios a través de la evocación de Dios y caverna. Una arquitectura estereotómica formada por una envolvente perforada de hormigón blanco nace de la tierra para cobijar al humano que se despide de sus fallecidos. A través de un gesto formal, la apertura de esta caverna de hormigón en dirección diagonal hacia el sol se rinde culto a este dios primitivo.
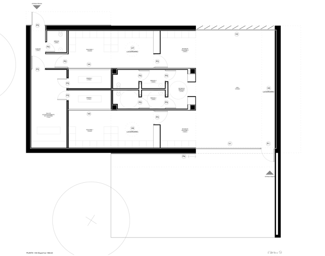
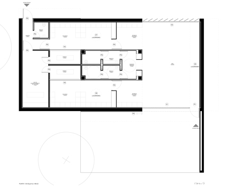
El solar es un pinar a las afueras de un pequeño municipio, el edificio se implanta ocupando su extremo sur para definir un nuevo borde urbano de carácter arquitectónico monumental. Su acceso al público se produce por el oeste al final de un recorrido peatonal procedente de casco urbano y da paso a un espacio de vestíbulo volcado al sur, que articula las circulaciones hacia velatorios y servicios.
Mediante un filtro exterior de lamas metálicas la luz solar dibuja con sus contornos proyectados en el interior y reproduce la sensación de paso del tiempo a un nivel visual, que marca el movimiento cíclico de dichas sombras.
Se ha diseñado un patrón de lamas que crea sombra en verano y permite el paso del sol en invierno, para colaborar en el comportamiento térmico del edificio.
La materialidad del conjunto consta de hormigón blanco acabado en varios tratamientos superficiales, acero galvanizado y prelacado tipo cortén, vidrios transparentes y translúcidos, pavimentos cerámicos y placa de yeso laminado en acabado en blanco neutro.
Información general
Tanatorio en El Burgo de Ebro
AÑO
Opción de visitas
Dirección
c.º Medio, s.n.
50730 El Burgo de Ebro - Zaragoza
Latitud: 41.568209557
Longitud: -0.734657191
Clasificación
Materiales construcción
Sistema constructivo
Hormigón armado
Superficie construida
Arquitectos participantes
Información aportada por
Colegio Oficial de Arquitectos de Aragón (COAA)
-
Maqueta volumétrica - Juan Carlos Salas Ballestín -
Planta - Juan Carlos Salas Ballestín -
Vista exterior 1 - Javier Pardos
Ubicación
Itinerarios
https://content.gnoss.ws/carq/https://content.gnoss.ws/carq//imagenes/Documentos/imgsem/2c/2cc3/2cc3151a-d1ec-48f7-bb86-a73a285b0a49/7facabd9-9056-4311-b92f-c519aeeb28bf.jpg, 0000028824/PT-Tanatorium-Salas-1.jpg
https://content.gnoss.ws/carq/https://content.gnoss.ws/carq//imagenes/Documentos/imgsem/2c/2cc3/2cc3151a-d1ec-48f7-bb86-a73a285b0a49/eb5220b5-e9b1-40ca-86dc-4e4f47cba5fa.jpg, 0000028824/PT-Tanatorium-Salas-2.jpg
https://content.gnoss.ws/carq/https://content.gnoss.ws/carq//imagenes/Documentos/imgsem/2c/2cc3/2cc3151a-d1ec-48f7-bb86-a73a285b0a49/ca8803b3-4681-4225-9915-71014cb77891.jpg, 0000028824/PT-Tanatorium-Salas-3.jpg
https://content.gnoss.ws/carq/https://content.gnoss.ws/carq//imagenes/Documentos/imgsem/2c/2cc3/2cc3151a-d1ec-48f7-bb86-a73a285b0a49/691a65a9-2ce6-4650-847a-50d5813bc1e8.jpg, 0000028824/PT-Tanatorium-Salas-4.jpg
https://content.gnoss.ws/carq/https://content.gnoss.ws/carq//imagenes/Documentos/imgsem/2c/2cc3/2cc3151a-d1ec-48f7-bb86-a73a285b0a49/f3faa61c-5fb3-4700-99fe-7ee5b40e1b48.jpg, 0000028824/PT-Tanatorium-Salas-7.jpg
https://content.gnoss.ws/carq/https://content.gnoss.ws/carq//imagenes/Documentos/imgsem/2c/2cc3/2cc3151a-d1ec-48f7-bb86-a73a285b0a49/cefca500-c25a-4e99-a476-55340a8ce2a2.jpg, 0000028824/PT-Tanatorium-Salas-9.jpg
https://content.gnoss.ws/carq//imagenes/Documentos/imgsem/2c/2cc3/2cc3151a-d1ec-48f7-bb86-a73a285b0a49/397ea078-7103-4e20-b37e-a843bf298f5b.jpg, 0000028824/4-TAN-GR-Plantas.jpg
https://content.gnoss.ws/carq//imagenes/Documentos/imgsem/2c/2cc3/2cc3151a-d1ec-48f7-bb86-a73a285b0a49/51a72ef0-e730-413c-972f-ab67e22cb20e.jpg, 0000028824/10-IMG_20140104_010151.jpg
https://content.gnoss.ws/carq//imagenes/Documentos/imgsem/2c/2cc3/2cc3151a-d1ec-48f7-bb86-a73a285b0a49/1fd55a07-7a94-412b-8466-35733b0e08ec.jpg, 0000028824/3-TAN-Situacion.jpg




