Cargando...
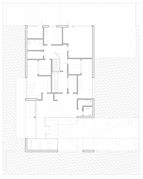
La concepción de un proyecto que se refiere a la despedida de un ser querido lleva consigo la idea de un recorrido, con sus etapas o filtros, que despoja al usuario progresivamente del mundano ajetreo diario y lo va revistiendo de una condición diferente, acorde con la vivienda interior. Para llegar al velatorio y dar la última despedida al difunto, el visitante cruza una serie de umbrales que van dando paso gradualmente a espacios más contenidos: del exterior al patio abierto; de este, al vestíbulo a doble altura; finalmente se llegaría a la sala de velatorio.
La traducción material de esta idea se consigue con el control de las alturas, de las vistas y de la iluminación en cada una de las estancias y de los pasos intermedios. La mirada que dispone el patio de acceso es horizontal y larga, se anticipa a las sensaciones de quien está a punto de adentrarse en el corazón del edificio; en el vestíbulo esta mirada se acora y la luz empieza a rodear al usuario, sin dirigirle. Finalmente, las salas velatorio, con sus huecos a una altura inferior, invitan a la mirada cercana.
Información general
Tanatorio Sucesores de Espiña
AÑO
Opción de visitas
Dirección
c/ Polígono Industrial de Villadangos, 1
14392 Villadangos del Páramos - León
Latitud: 42.54042666
Longitud: -5.73702
Clasificación
Superficie construida
Arquitectos participantes
Estudios de arquitectura participantes
Información aportada por
Colegio Oficial de Arquitectos de León (COAL)
Enlaces web
-
Tanatorio Sucesores de Espiña - Fotografía 6 - VIRA arquitectura -
Tanatorio Sucesores de Espiña - Planta - VIRA arquitectura -
Tanatorio Sucesores de Espiña - Sección - VIRA arquitectura -
Tanatorio Sucesores de Espiña - Fotografía 3 - VIRA arquitectura -
Tanatorio Sucesores de Espiña - Fotografía 5 - VIRA arquitectura -
Tanatorio Sucesores de Espiña - Fotografía 2 - VIRA arquitectura
Ubicación
Itinerarios
https://content.gnoss.ws/carq/https://content.gnoss.ws/carq//imagenes/Documentos/imgsem/a5/a5e2/a5e2167a-5c20-41c3-b404-a8f033faa754/3b41424b-fc2e-49b7-9158-f3c9a5bc37bd.jpg, 0000042968/TANATORIO SUCESORES 01 - VIRAARQUITECTURA.jpg
https://content.gnoss.ws/carq/https://content.gnoss.ws/carq//imagenes/Documentos/imgsem/a5/a5e2/a5e2167a-5c20-41c3-b404-a8f033faa754/4f204590-e6c1-406b-bb1e-829cb076caa0.jpg, 0000042968/TANATORIO SUCESORES 02- VIRAARQUITECTURA.jpg
https://content.gnoss.ws/carq/https://content.gnoss.ws/carq//imagenes/Documentos/imgsem/a5/a5e2/a5e2167a-5c20-41c3-b404-a8f033faa754/a855ddba-d320-42c0-8b35-0eaf88f860b4.jpg, 0000042968/TANATORIO SUCESORES 03 - VIRAARQUITECTURA.jpg
https://content.gnoss.ws/carq/https://content.gnoss.ws/carq//imagenes/Documentos/imgsem/a5/a5e2/a5e2167a-5c20-41c3-b404-a8f033faa754/82d4bc78-42db-4844-808f-a3b693d502a7.jpg, 0000042968/TANATORIO SUCESORES 04 - VIRAARQUITECTURA.jpg
https://content.gnoss.ws/carq/https://content.gnoss.ws/carq//imagenes/Documentos/imgsem/a5/a5e2/a5e2167a-5c20-41c3-b404-a8f033faa754/3b9bbc51-33be-4a6d-a132-dc19296a2a51.jpg, 0000042968/TANATORIO SUCESORES 05 - VIRAARQUITECTURA.jpg
https://content.gnoss.ws/carq/https://content.gnoss.ws/carq//imagenes/Documentos/imgsem/a5/a5e2/a5e2167a-5c20-41c3-b404-a8f033faa754/85c76a25-cd26-49fd-91eb-4e60c6aaa78b.jpg, 0000042968/TANATORIO SUCESORES 06 - VIRAARQUITECTURA.jpg
https://content.gnoss.ws/carq/https://content.gnoss.ws/carq//imagenes/Documentos/imgsem/a5/a5e2/a5e2167a-5c20-41c3-b404-a8f033faa754/900d61ae-b4e3-46f2-8b1b-e60e4d832954.jpg, 0000042968/TANATORIO SUCESORES 07 - VIRAARQUITECTURA.jpg
https://content.gnoss.ws/carq/https://content.gnoss.ws/carq//imagenes/Documentos/imgsem/a5/a5e2/a5e2167a-5c20-41c3-b404-a8f033faa754/e25b9d03-5973-4c8b-a3c6-c9f83a5d8e6b.jpg, 0000042968/TANATORIO SUCESORES 08 - VIRAARQUITECTURA.jpg
https://content.gnoss.ws/carq/https://content.gnoss.ws/carq//imagenes/Documentos/imgsem/a5/a5e2/a5e2167a-5c20-41c3-b404-a8f033faa754/5db2e4b2-a0a6-407c-8c62-77cfa4fa2a1b.jpg, 0000042968/TANATORIO SUCESORES 09 - VIRAARQUITECTURA.jpg
https://content.gnoss.ws/carq/https://content.gnoss.ws/carq//imagenes/Documentos/imgsem/a5/a5e2/a5e2167a-5c20-41c3-b404-a8f033faa754/b6bca423-19e0-4daa-b0f0-60fbb4455f7c.jpg, 0000042968/TANATORIO SUCESORES 10 - VIRAARQUITECTURA.jpg
https://content.gnoss.ws/carq/https://content.gnoss.ws/carq//imagenes/Documentos/imgsem/a5/a5e2/a5e2167a-5c20-41c3-b404-a8f033faa754/77249c9f-ec6a-4fea-9795-093e825078f9.jpg, 0000042968/TANATORIO SUCESORES 11 - VIRAARQUITECTURA.jpg
https://content.gnoss.ws/carq/https://content.gnoss.ws/carq//imagenes/Documentos/imgsem/a5/a5e2/a5e2167a-5c20-41c3-b404-a8f033faa754/053c48ce-f838-442c-bf23-b002ce34b410.jpg, 0000042968/TANATORIO SUCESORES 12 - VIRAARQUITECTURA.jpg
https://content.gnoss.ws/carq//imagenes/Documentos/imgsem/a5/a5e2/a5e2167a-5c20-41c3-b404-a8f033faa754/7479699d-6a2e-4b14-bc9f-a20f7b4ebf67.jpg, 0000042968/Tanatorio_WEB Seccion.jpg
https://content.gnoss.ws/carq//imagenes/Documentos/imgsem/a5/a5e2/a5e2167a-5c20-41c3-b404-a8f033faa754/9a7b7c9c-082e-44d8-8730-00a86cc6334b.jpg, 0000042968/Tanatorio_WEB Planta 0.jpg
https://content.gnoss.ws/carq//imagenes/Documentos/imgsem/a5/a5e2/a5e2167a-5c20-41c3-b404-a8f033faa754/a869f17c-094a-4208-830a-502b0e5d3d07.jpg, 0000042968/Tanatorio_WEB Axo 2.jpg
https://content.gnoss.ws/carq//imagenes/Documentos/imgsem/a5/a5e2/a5e2167a-5c20-41c3-b404-a8f033faa754/18f9f9e7-e7c5-42b2-aaf0-69ab19cb9b10.jpg, 0000042968/Tanatorio_WEB Axo 1.jpg
https://content.gnoss.ws/carq//imagenes/Documentos/imgsem/a5/a5e2/a5e2167a-5c20-41c3-b404-a8f033faa754/57739643-99be-4f6b-95fd-3f881f14fb33.jpg, 0000042968/Tanatorio_WEB Alzado 2.jpg
https://content.gnoss.ws/carq//imagenes/Documentos/imgsem/a5/a5e2/a5e2167a-5c20-41c3-b404-a8f033faa754/cc22ae50-b82b-4f61-9a47-02d19312cadf.jpg, 0000042968/Tanatorio_WEB Alzado 1.jpg







