Cargando...
La importancia del proyecto de La Vila Joiosa es su capacidad de construirse como un proyecto público que genera un espacio público. En efecto, el volumen de construcción que requiere el programa de un gran auditorio es enorme. Es uno de los programas de mayor volumen que se insertan en la ciudad. Y es esencialmente, un volumen horizontal. Y por lo general, a menos que caiga en una situación caprichosa, lo ideal es ser ciego para evitar cualquier tipo de contaminación acústica.
Estas tres condiciones, su enorme volumen de construcción, su condición de “mudo” y su condición generalmente horizontal, hacen de este un programa que se inserta con dificultad en la ciudad
... A menos que no cree un espacio urbano propio al que intente pertenecer…
Es como crear un círculo de arte y luego entrar en él... Procedimos así a pensar y construir el Auditorio.
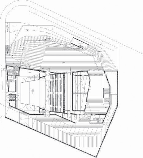
Un auditorio es un programa principal (sala + vestíbulo) y una serie de programas complementarios generalmente en orden de magnitud mucho más pequeños. Los combinamos de manera que los programas más pequeños rodearan al programa principal, que se organizaran en ese “brazo”. Por otro lado, conectaban los dos extremos, desde el vestíbulo hasta el foyer, como una pescadilla enrollada. Este brazo genera un espacio público, un espacio descubierto, una gran plaza que permite que el acceso al auditorio sea un encuentro a través de ese espacio.
Es un espacio que propone la celebración de la actividad musical o teatral al aire libre y permite tener la sensación de entrar al ámbito espacial y público del Auditorio incluso antes de su propio acceso.
Es un lugar que genera una sombra, que proyecta un círculo de sombra tanto en planta como en sección. En planta porque esa sombra construye un espacio que separa y a la vez une el proyecto con la ciudad. En sección, porque esa sombra se interpone como una capa construida que corta el volumen principal y le da una escala menor más urbana. De este modo, se crea una profundidad que en principio el auditorio, en planta y en pared, obviamente no posee.
La geometría que propusimos era una geometría que nos recordaba a las montañas, a los edificios que no distinguen entre los planos de fachadas y de cubierta. De forma extraordinaria propone soluciones de continuidad entre los planos horizontales o inclinados, de la cubierta y los planos verticales o inclinados de las fachadas.
Un único material cubre las paredes y los techos del edificio. Una pieza de plástico sostenible en su construcción, desarrollo y eliminación. De esta manera el proyecto reconstruye la imagen de la montaña que veíamos desde el lugar donde ahora se encuentra el auditorio.
Información general
Teatro Auditorio Municipal de La Vila Joiosa
AÑO
Opción de visitas
Dirección
c/ Concepción Aragonés, 2
03570 la Vila JoiosaVillajoyosa - Alacant
Latitud: 38.511518077
Longitud: -0.230900645
Clasificación
Superficie construida
Premios
Información aportada por
EUMies Award
Enlaces web
Ubicación
Itinerarios
https://content.gnoss.ws/carq/https://content.gnoss.ws/carq//imagenes/Documentos/imgsem/b1/b1de/b1ded9b1-c812-4323-933b-1d99ea8d0330/40ddb0b9-759e-4aaf-b677-90b8360fb049.jpg, 0000002691/200-3112.jpg
https://content.gnoss.ws/carq/https://content.gnoss.ws/carq//imagenes/Documentos/imgsem/b1/b1de/b1ded9b1-c812-4323-933b-1d99ea8d0330/d9e1dabc-1601-4036-8565-1234a77350cf.jpg, 0000002691/200-3113.jpg
https://content.gnoss.ws/carq/https://content.gnoss.ws/carq//imagenes/Documentos/imgsem/b1/b1de/b1ded9b1-c812-4323-933b-1d99ea8d0330/684090df-1342-4965-8bcc-54688a5f575b.jpg, 0000002691/200-3114.jpg
https://content.gnoss.ws/carq/https://content.gnoss.ws/carq//imagenes/Documentos/imgsem/b1/b1de/b1ded9b1-c812-4323-933b-1d99ea8d0330/b757cb27-f5b1-40de-9328-efd088cd15bc.jpg, 0000002691/200-3115.jpg
https://content.gnoss.ws/carq/https://content.gnoss.ws/carq//imagenes/Documentos/imgsem/b1/b1de/b1ded9b1-c812-4323-933b-1d99ea8d0330/d914064b-cb76-429a-a908-227d8837783f.jpg, 0000002691/200-3116.jpg
https://content.gnoss.ws/carq/https://content.gnoss.ws/carq//imagenes/Documentos/imgsem/b1/b1de/b1ded9b1-c812-4323-933b-1d99ea8d0330/ae3bcf22-aa3f-45ea-b664-55fbe3749dd7.jpg, 0000002691/200-3117.jpg
https://content.gnoss.ws/carq//imagenes/Documentos/imgsem/b1/b1de/b1ded9b1-c812-4323-933b-1d99ea8d0330/7ca33c31-490e-4475-be7e-aeb198d0ae79.jpg, 0000002691/Auditorium Theater of La Vila Joiosa200 .jpg
https://content.gnoss.ws/carq//imagenes/Documentos/imgsem/b1/b1de/b1ded9b1-c812-4323-933b-1d99ea8d0330/7c4abcac-4a46-425e-af4d-339f510f56c4.jpg, 0000002691/200-3118.jpg
https://content.gnoss.ws/carq//imagenes/Documentos/imgsem/b1/b1de/b1ded9b1-c812-4323-933b-1d99ea8d0330/257fa511-045b-4b65-b3d3-9702ed3ea223.jpg, 0000002691/Auditorium Theater of La Vila Joiosa200 (1).jpg
https://content.gnoss.ws/carq//imagenes/Documentos/imgsem/b1/b1de/b1ded9b1-c812-4323-933b-1d99ea8d0330/2bc7e89b-d24b-4755-8eb5-9c802bfb057a.jpg, 0000002691/200-3119.jpg



