Cargando...
La construcción del nuevo teatro se realiza en el marco de un convenio entre el Ayuntamiento de Guadix y las Consejerías de Obras Públicas y de Cultura de la Junta de Andalucía.
El nuevo edificio, que sustituye al viejo cine Acci, se sitúa dentro del núcleo histórico de la ciudad de Guadix, en una relación privilegiada con espacios urbanos y arquitecturas de singular significación para la ciudad. Así, su acceso principal se produce desde un lateral de la Plaza de las Palomas o de la Constitución, llamada también en el S. XVII, Plaza Mayor o Plaza de los Corregidores. Se trata de una plaza porticada construida sobre los restos de una anterior musulmana realizada en distintas épocas desde la reconquista hasta Carlos V, Felipe III y finalmente reconstruida en la postguerra después de los incendios de 1.936. Está presidida en uno de sus laterales por el edificio del Ayuntamiento, con su fachada denominada Balcón de los Corregidores y sobre el lateral opuesto, en el que se sitúa una puerta de comunicación a la inmediata plaza de la Catedral, en donde destaca, sobre los aleros de la Plaza porticada, la silueta de la Torre y fachada principal de la Catedral de Guadix.
Por la calle Aben Tofayl, en la que el Teatro tiene fachada lateral, se accede al barrio de los Jesuitas, hoy conocido con el nombre de barrio del Hospital en el que se ubican singulares construcciones entre las que cabe mencionar el edificio del hospital y su iglesia contigua de San Torcuato, hoy fuera de culto. Esta iglesia da fachada, junto con los restos de antiguas construcciones palaciegas hoy muy transformadas a una plaza cuya remodelación se ha realizado al tiempo que la construcción del teatro, convirtiéndose en un interesante espacio escénico descubierto.
El teatro, ha sido diseñado y equipado con un amplio grado de polivalencia para poder ser utilizado como cine, auditorio, sala de conciertos o sala de actos.
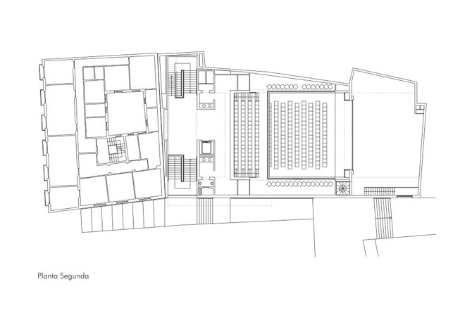
El edificio se organiza estructural y espacialmente según la pauta que establece su sección longitudinal y su planta, es decir, según los volúmenes, que corresponden funcionalmente con la zona de acceso y distribución (vestíbulos, escaleras y cabinas) con la zona de espectadores (patio de butacas, anfiteatro, palcos y cubierta) y con la zona de representación (escenarios y caja de escena hasta cubierta). La organización de la Sala, que integra patio de butacas, anfiteatro y palcos, responde a una tipología de espacio escénico que aúna las posibilidades visuales del esquema patio de butacas-anfiteatro con el ambiente más teatral que crean los palcos en su mirada a la propia Sala, reinterpretando así una cierta estructura de teatro a la italiana.
El sistema de cubiertas refleja la organización interna del edificio, destacándose, por su volumen, las correspondientes al patio de butacas y a la caja de escena. De su acabado exterior se han utilizado aplacados de granito en los zócalos y de piedra caliza en el resto.
El interior presenta un aspecto sobrio y austero en las zonas de acceso que resalta la calidez y amabilidad de la Sala, concebida como una caja de madera.
En cuanto al equipamiento teatral, se ha dotado al edificio de todos aquellos elementos necesarios (maquinaria escénica, tramoya, vestidura escénica, iluminación sonido, cámara de conciertos, etc) para desarrollar eficazmente las actividades derivadas de su uso como teatro, sala de conciertos auditorio de música y sala de cine.
Información general
Teatro Municipal Mira De Amescua De Guadix
AÑO
Opción de visitas
Dirección
plza. de la Constitución, s/n
18500 Guadix - Granada
Latitud: 37.300226287
Longitud: -3.135174102
Clasificación
Materiales construcción
Sistema constructivo
Facha ventilada de piedra
Superficie construida
Colaboradores
Estudios de arquitectura participantes
Información aportada por
Consejo Andaluz de Colegios Oficiales de Arquitectos (CACOA)
Estudio Martínez y Soler
Enlaces web
Ubicación
https://content.gnoss.ws/carq/https://content.gnoss.ws/carq//imagenes/Documentos/imgsem/6f/6f39/6f391853-7ebf-465c-9a14-76da19f601e4/b9192df5-f215-4e19-b8d2-fe9e15ea3c44.jpg, 0000041519/5.jpg
https://content.gnoss.ws/carq/https://content.gnoss.ws/carq//imagenes/Documentos/imgsem/6f/6f39/6f391853-7ebf-465c-9a14-76da19f601e4/e5a8b040-619c-4d99-89d5-b0b42c22c45d.jpg, 0000041519/4.jpg
https://content.gnoss.ws/carq/https://content.gnoss.ws/carq//imagenes/Documentos/imgsem/6f/6f39/6f391853-7ebf-465c-9a14-76da19f601e4/ae011e7f-8a0e-4ef1-9d09-7104081c7691.jpg, 0000041519/3.jpg
https://content.gnoss.ws/carq/https://content.gnoss.ws/carq//imagenes/Documentos/imgsem/6f/6f39/6f391853-7ebf-465c-9a14-76da19f601e4/2f1a2746-b551-440b-a577-57b6d8bf6e1a.jpg, 0000041519/2.jpg
https://content.gnoss.ws/carq/https://content.gnoss.ws/carq//imagenes/Documentos/imgsem/6f/6f39/6f391853-7ebf-465c-9a14-76da19f601e4/f61beb5a-bae2-4123-a2db-2d33f87b5c21.jpg, 0000041519/9.jpg
https://content.gnoss.ws/carq/https://content.gnoss.ws/carq//imagenes/Documentos/imgsem/6f/6f39/6f391853-7ebf-465c-9a14-76da19f601e4/1f027a70-1138-49d8-ae23-aaf7a1c9ba85.jpg, 0000041519/12.jpg
https://content.gnoss.ws/carq/https://content.gnoss.ws/carq//imagenes/Documentos/imgsem/6f/6f39/6f391853-7ebf-465c-9a14-76da19f601e4/09e675dc-08b5-4fa9-9270-b7692783ecb5.jpg, 0000041519/11.jpg
https://content.gnoss.ws/carq/https://content.gnoss.ws/carq//imagenes/Documentos/imgsem/6f/6f39/6f391853-7ebf-465c-9a14-76da19f601e4/060260bb-5516-44f9-bc8b-c6a6c0a325c5.jpg, 0000041519/7.jpg
https://content.gnoss.ws/carq//imagenes/Documentos/imgsem/6f/6f39/6f391853-7ebf-465c-9a14-76da19f601e4/5d3dcd90-0502-4cae-add4-2e52d4521d47.jpg, 0000041519/17.jpg
https://content.gnoss.ws/carq//imagenes/Documentos/imgsem/6f/6f39/6f391853-7ebf-465c-9a14-76da19f601e4/faaf682f-fb95-48c1-9692-715571fb5bde.jpg, 0000041519/18.jpg
https://content.gnoss.ws/carq//imagenes/Documentos/imgsem/6f/6f39/6f391853-7ebf-465c-9a14-76da19f601e4/8d36cb08-844c-4a82-af95-e54fe436c16a.jpg, 0000041519/15.jpg
https://content.gnoss.ws/carq//imagenes/Documentos/imgsem/6f/6f39/6f391853-7ebf-465c-9a14-76da19f601e4/1fa61add-c80c-4045-b38c-823f897bf5c5.jpg, 0000041519/20.jpg
https://content.gnoss.ws/carq//imagenes/Documentos/imgsem/6f/6f39/6f391853-7ebf-465c-9a14-76da19f601e4/28ae709b-445d-429d-95b3-b8e5b8402cdd.jpg, 0000041519/19.jpg
https://content.gnoss.ws/carq//imagenes/Documentos/imgsem/6f/6f39/6f391853-7ebf-465c-9a14-76da19f601e4/aa1c2197-3991-4fde-b93d-32a52d79d41c.jpg, 0000041519/16.jpg
https://content.gnoss.ws/carq//imagenes/Documentos/imgsem/6f/6f39/6f391853-7ebf-465c-9a14-76da19f601e4/9dad9828-baff-4d57-9a30-a29ba734097d.jpg, 0000041519/1.jpg



