Cargando...
La Torre Cepsa se construyó originalmente como sede emblemática de Caja Madrid, la caja de ahorros más antigua de España, y su posterior traspaso a la petrolera Cepsa demuestra la flexibilidad de su espacio de oficinas. El diseño de la torre continúa las investigaciones del estudio sobre el lugar de trabajo ambiental y edificante, que se puede rastrear a través del diseño de una familia de torres de oficinas, sobre todo para Commerzbank, Swiss Re y Hearst Corporation.
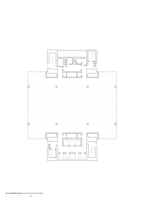
La torre, de cincuenta y cinco plantas, se encuentra en el solar de la antigua ciudad deportiva del Real Madrid, donde el Ayuntamiento de Madrid asignó cuatro nuevas torres, que serán diseñadas por destacados arquitectos internacionales. Torre Cepsa es la más alta de este grupo. Marca una curva en el amplio bulevar del Paseo de la Castellana, la "columna vertebral" de Madrid, y está cuidadosamente posicionada para maximizar las cualidades excepcionales de su emplazamiento. Desde el punto de vista compositivo, el edificio puede considerarse como un arco alto, con los núcleos de servicios y circulación enmarcando las plantas de oficinas. A nivel del suelo, un atrio acristalado de 22 metros de altura proporciona la transición desde la calle y alberga un auditorio "flotante" con paredes de vidrio ubicado en un entresuelo. En la parte superior del edificio, el vacío debajo de la sección superior del marco del "portal" está diseñado para albergar turbinas eólicas, que son capaces de proporcionar una proporción significativa del suministro de energía del edificio.
Aunque el edificio fue concebido como sede corporativa, también tiene la flexibilidad de ser subarrendado parcialmente si es necesario, lo que permite a Cepsa ampliar o contraer su alojamiento fácilmente en el futuro. Este grado de adaptabilidad se debe en parte a que los núcleos de servicio se han desplazado a los bordes de la planta, una estrategia pionera en el diseño del Banco de Hong Kong y Shanghái, para crear placas de suelo de 1.200 metros cuadrados. La orientación norte-sur maximiza la sombra natural dirigiendo la luz solar de ángulo bajo hacia los núcleos, un movimiento que tiene el beneficio adicional de enmarcar vistas espectaculares de las colinas de la Sierra de Guadarrama al norte y el centro de Madrid al sur. Estrategias como el triple acristalamiento de las fachadas de oficinas mejoran aún más la eficiencia energética del edificio.
Información general
Torre Cepsa
AÑO
Opción de visitas
Dirección
P.º de la Castellana, 259
28046 Madrid - Madrid
Latitud: 40.47583426
Longitud: -3.687709174
Clasificación
Materiales construcción
Superficie construida
Arquitectos participantes
Colaboradores
Proal Consulting S.L. (Consultoría)
Lerch Bates Inc. (Transporte Vertical)
Gerens Hills International (Project Manager)
Carlos Sole Bravo (Arquitecto)
Reef Associates Ltd. (Consultoría)
Javier Martín Minguez (Arquitecto Técnico)
Aguilera Ingenieros S.A (Ingeniería)
Halvorson and Partners (Ingeniería Estructural)
Arquing (Ingeniería Estructural)
Emmer Pfenniger and Partner AG (Revestimientos)
Estudios de arquitectura participantes
Información aportada por
Foster + Partners
Enlaces web
-
Nivel superior - Foster + Partners -
Sección - Foster + Partners -
Nigel Young / Foster + Partners -
Nigel Young / Foster + Partners
Ubicación
Itinerarios
https://content.gnoss.ws/carq/https://content.gnoss.ws/carq//imagenes/Documentos/imgsem/ed/ed2d/ed2deb86-c0a5-4931-818a-0c5b269b146e/3b584916-2508-4569-b8c3-b6fcb4b0b015.jpg, 0000055927/1177_FP427378.jpg
https://content.gnoss.ws/carq/https://content.gnoss.ws/carq//imagenes/Documentos/imgsem/ed/ed2d/ed2deb86-c0a5-4931-818a-0c5b269b146e/6ddca223-baf3-4d74-b700-d5931bb8e8f6.jpg, 0000055927/1177_FP427355.jpg
https://content.gnoss.ws/carq/https://content.gnoss.ws/carq//imagenes/Documentos/imgsem/ed/ed2d/ed2deb86-c0a5-4931-818a-0c5b269b146e/febd4075-6b67-423d-96fc-c0c617348be2.jpg, 0000055927/1177_FP427459.jpg
https://content.gnoss.ws/carq/https://content.gnoss.ws/carq//imagenes/Documentos/imgsem/ed/ed2d/ed2deb86-c0a5-4931-818a-0c5b269b146e/1f36dd1b-f623-4933-adfd-c174a72f6437.jpg, 0000055927/1177_FP427330.jpg
https://content.gnoss.ws/carq/https://content.gnoss.ws/carq//imagenes/Documentos/imgsem/ed/ed2d/ed2deb86-c0a5-4931-818a-0c5b269b146e/1d9716be-869c-42be-bca3-adc776be159c.jpg, 0000055927/1177_FP427376.jpg
https://content.gnoss.ws/carq/https://content.gnoss.ws/carq//imagenes/Documentos/imgsem/ed/ed2d/ed2deb86-c0a5-4931-818a-0c5b269b146e/3ceb15e3-c763-4f3b-9879-50b5256b1f57.jpg, 0000055927/1177_FP427344.jpg
https://content.gnoss.ws/carq/https://content.gnoss.ws/carq//imagenes/Documentos/imgsem/ed/ed2d/ed2deb86-c0a5-4931-818a-0c5b269b146e/98e1e7f9-20c1-4ac0-922e-c3043efa8c2e.jpg, 0000055927/1177_FP350329.jpg
https://content.gnoss.ws/carq/https://content.gnoss.ws/carq//imagenes/Documentos/imgsem/ed/ed2d/ed2deb86-c0a5-4931-818a-0c5b269b146e/a5a069ed-0a5a-4fd3-8079-116438c9fa63.jpg, 0000055927/1177_FP350335.jpg
https://content.gnoss.ws/carq/https://content.gnoss.ws/carq//imagenes/Documentos/imgsem/ed/ed2d/ed2deb86-c0a5-4931-818a-0c5b269b146e/41544ce8-eaa4-4ae1-b0ef-e5f015012708.jpg, 0000055927/1177_FP427358.jpg
https://content.gnoss.ws/carq/https://content.gnoss.ws/carq//imagenes/Documentos/imgsem/ed/ed2d/ed2deb86-c0a5-4931-818a-0c5b269b146e/ad700207-ed65-45c9-bdbb-946b89980fc8.jpg, 0000055927/1177_FP410429.jpg
https://content.gnoss.ws/carq/https://content.gnoss.ws/carq//imagenes/Documentos/imgsem/ed/ed2d/ed2deb86-c0a5-4931-818a-0c5b269b146e/d7aff842-0df7-4fb8-8e79-cf3284b2a691.jpg, 0000055927/1177_FP427356.jpg
https://content.gnoss.ws/carq//imagenes/Documentos/imgsem/ed/ed2d/ed2deb86-c0a5-4931-818a-0c5b269b146e/ab87b438-2fc6-4fc1-bf3d-6ca87fce530c.jpg, 0000055927/1177_FP328222.jpg
https://content.gnoss.ws/carq//imagenes/Documentos/imgsem/ed/ed2d/ed2deb86-c0a5-4931-818a-0c5b269b146e/9952ea33-c707-409b-884e-5e7a31b1b159.jpg, 0000055927/1177_FP328230.jpg
https://content.gnoss.ws/carq//imagenes/Documentos/imgsem/ed/ed2d/ed2deb86-c0a5-4931-818a-0c5b269b146e/cd2c35e1-cfb4-400a-bdaf-e5763c0b5970.jpg, 0000055927/1177_FP328226.jpg
https://content.gnoss.ws/carq//imagenes/Documentos/imgsem/ed/ed2d/ed2deb86-c0a5-4931-818a-0c5b269b146e/28709888-71bb-44b2-a00a-b377b443f279.jpg, 0000055927/1177_FP328221.jpg
https://content.gnoss.ws/carq//imagenes/Documentos/imgsem/ed/ed2d/ed2deb86-c0a5-4931-818a-0c5b269b146e/0bed10fe-1675-4fa4-b030-bff8cd5cba88.jpg, 0000055927/1177_FP328224.jpg
https://content.gnoss.ws/carq//imagenes/Documentos/imgsem/ed/ed2d/ed2deb86-c0a5-4931-818a-0c5b269b146e/6b49cd35-4e18-4bcc-808a-9c532d463de1.jpg, 0000055927/1177_FP328223.jpg
https://content.gnoss.ws/carq//imagenes/Documentos/imgsem/ed/ed2d/ed2deb86-c0a5-4931-818a-0c5b269b146e/674d8bea-b2e4-4b8e-a557-f9efb08e8ac0.jpg, 0000055927/1177_FP328229.jpg





