Cargando...
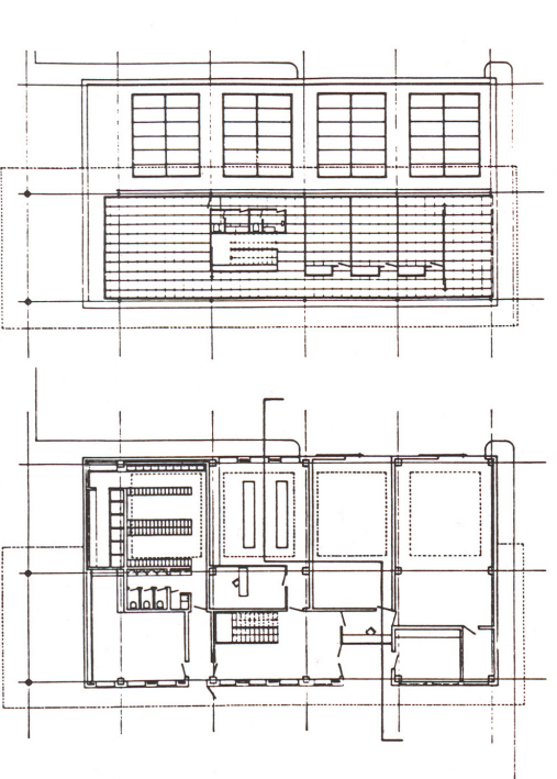
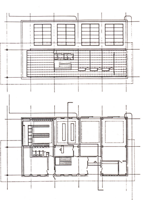
Las estaciones depuradoras de aguas residuales conforman una protuberancia relativamente pequeña de infraestructuras cuya escala abarca la del territorio urbanizado. Son llaves de paso que conectan dos sistemas: uno artificial, el saneamiento; y otro natural, los cauces fluviales. Su radio de influencia extiende la escala real de Madrid desde las puertas de la ciudad tradicional hasta las faldas de la sierra de Guadarrama. Implican a distintas ingenierías y suponen alteraciones considerables sobre la topografía, permitiendo crear plataformas artificiales bajo las que dejar semienterrados los sucesivos procesos de depuración. Contenedores de maquinaria, silos, edificio de control y servicios, conectados entre sí por galerías subterráneas, prolongan la obra civil, disminuyendo su presencia para contribuir a ordenar el proceso con una simplicidad casi didáctica.
En Villalba la roca hizo conveniente construir sobre rasante. Se utilizaron exclusivamente los medios de la obra civil, haciendo unitario el procedimiento de construcción. Muros y losas de hormigón, elementos ligeros metálicos, impermeabilización sin pendiente, etc., se corresponden con las técnicas empleadas para las balsas, depósitos y canales, aceptando su dureza sin apenas mediación.
En Majadahonda y Guadarrama esta correspondencia se prolonga con el repliegue de la edificación hasta enterrarse parcialmente en los taludes perimetrales para liberar de obstrucciones la instalación, dar forma al terreno y disminuir la presencia de lo edificado. La posición en esquina del edificio de control de Guadarrama derivó en disposición en abanico de la construcción, acostada en la ladera sobre muros de contención de tierra armada. La hermeticidad requerida por las condiciones ambientales permitió cerrar los pabellones con pieles propias para edificios de sangre fría: chapa alucincada y escamas de aluminio anodizado –expresión mínima de impermeabilidad– en el exterior, y derivados de la madera –contrachapado y tablero DM– en el interior.
Información general
Tres estaciones depuradoras de aguas
AÑO
Opción de visitas
Dirección
28400 Collado Villalba - Madrid
Clasificación
Superficie construida
Estudios de arquitectura participantes
Información aportada por
Colegio Oficial de Arquitectos de Madrid (COAM)
-
E.DAR. Villalba - COAM (1989). Arquitectura, Revista del Colegio Oficial de Arquitectos de Madrid (nº 275), pp.88-99 -
E.DAR. Villalba - COAM (1989). Arquitectura, Revista del Colegio Oficial de Arquitectos de Madrid (nº 275), pp.88-99 -
E.DAR - COAM (1989). Arquitectura, Revista del Colegio Oficial de Arquitectos de Madrid (nº 275), pp.88-99 -
E.DAR. Guadarrama - COAM (1989). Arquitectura, Revista del Colegio Oficial de Arquitectos de Madrid (nº 275), pp.88-99
https://content.gnoss.ws/carq/https://content.gnoss.ws/carq//imagenes/Documentos/imgsem/94/9476/94766e33-b95b-4edd-943a-4a992fb16c79/2710225e-c5ce-487f-b9c5-208f48d3114a.png, 0000055801/Guadarrama_3.png
https://content.gnoss.ws/carq/https://content.gnoss.ws/carq//imagenes/Documentos/imgsem/94/9476/94766e33-b95b-4edd-943a-4a992fb16c79/fcb6b128-9441-4e2b-8e57-25dc2d95b73e.png, 0000055801/Majadahonda_1.png
https://content.gnoss.ws/carq/https://content.gnoss.ws/carq//imagenes/Documentos/imgsem/94/9476/94766e33-b95b-4edd-943a-4a992fb16c79/69d023f1-6710-4aef-b2e1-b4e7e08b7b12.png, 0000055801/Guadarrama_1.png
https://content.gnoss.ws/carq/https://content.gnoss.ws/carq//imagenes/Documentos/imgsem/94/9476/94766e33-b95b-4edd-943a-4a992fb16c79/359d3b65-0fa1-4f70-b4a0-0f0b98129258.png, 0000055801/Villalba_2.png
https://content.gnoss.ws/carq/https://content.gnoss.ws/carq//imagenes/Documentos/imgsem/94/9476/94766e33-b95b-4edd-943a-4a992fb16c79/91b5c2d4-f0b5-40b5-9f74-9709c076d302.png, 0000055801/Majadahonda_2.png
https://content.gnoss.ws/carq/https://content.gnoss.ws/carq//imagenes/Documentos/imgsem/94/9476/94766e33-b95b-4edd-943a-4a992fb16c79/ac10104c-5c26-4fa1-b552-7d0ecc084aa6.png, 0000055801/Majadahonda_3.png
https://content.gnoss.ws/carq/https://content.gnoss.ws/carq//imagenes/Documentos/imgsem/94/9476/94766e33-b95b-4edd-943a-4a992fb16c79/9f2ffa25-c6e9-4b64-beab-1f0880988d2d.png, 0000055801/Guadarrama_2.png
https://content.gnoss.ws/carq/https://content.gnoss.ws/carq//imagenes/Documentos/imgsem/94/9476/94766e33-b95b-4edd-943a-4a992fb16c79/b3252942-393b-41f0-aaba-8619311e3ea1.png, 0000055801/Majadahonda_5.png
https://content.gnoss.ws/carq/https://content.gnoss.ws/carq//imagenes/Documentos/imgsem/94/9476/94766e33-b95b-4edd-943a-4a992fb16c79/4269d88f-6ca3-4773-bfcc-f0160068941b.png, 0000055801/Majadahonda_4.png
https://content.gnoss.ws/carq/https://content.gnoss.ws/carq//imagenes/Documentos/imgsem/94/9476/94766e33-b95b-4edd-943a-4a992fb16c79/74eb3bd3-b0d4-4b70-bcd0-fac2da81d5b8.png, 0000055801/Villalba_1.png
https://content.gnoss.ws/carq//imagenes/Documentos/imgsem/94/9476/94766e33-b95b-4edd-943a-4a992fb16c79/66fff092-c89f-459d-a07d-2eb125e76afc.png, 0000055801/Villalba_3.png
https://content.gnoss.ws/carq//imagenes/Documentos/imgsem/94/9476/94766e33-b95b-4edd-943a-4a992fb16c79/389d768e-4471-4daf-9b0f-6a3ce797b4bd.png, 0000055801/Villalba_4.png
https://content.gnoss.ws/carq//imagenes/Documentos/imgsem/94/9476/94766e33-b95b-4edd-943a-4a992fb16c79/dd5e77af-eb50-48ac-a65a-ab61cf1d515c.png, 0000055801/Majadahonda_7.png
https://content.gnoss.ws/carq//imagenes/Documentos/imgsem/94/9476/94766e33-b95b-4edd-943a-4a992fb16c79/ff4e1d74-3d60-4ef5-a253-c7ac9a78f592.png, 0000055801/Guadarrama_5.png
https://content.gnoss.ws/carq//imagenes/Documentos/imgsem/94/9476/94766e33-b95b-4edd-943a-4a992fb16c79/217b8297-bd6c-4331-8459-d35d99f36872.png, 0000055801/Guadarrama_6.png
https://content.gnoss.ws/carq//imagenes/Documentos/imgsem/94/9476/94766e33-b95b-4edd-943a-4a992fb16c79/271c3d58-e032-4d14-85ea-80ae5d07950f.png, 0000055801/Guadarrama_8.png
https://content.gnoss.ws/carq//imagenes/Documentos/imgsem/94/9476/94766e33-b95b-4edd-943a-4a992fb16c79/a8fbb75e-bff0-45b8-9db7-f8ad4a3e54e7.png, 0000055801/Guadarrama_7.png
https://content.gnoss.ws/carq//imagenes/Documentos/imgsem/94/9476/94766e33-b95b-4edd-943a-4a992fb16c79/8832e591-27cf-4006-ace4-2557fd85e93d.png, 0000055801/Majadahonda_6.png
https://content.gnoss.ws/carq//imagenes/Documentos/imgsem/94/9476/94766e33-b95b-4edd-943a-4a992fb16c79/0b21fe35-aae4-4da5-a08c-8de0a0e3f642.png, 0000055801/Guadarrama_4.png





