Cargando...
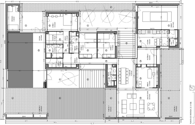
La vivienda se concibe a modo de prisma rectangular descansando sobre el terreno. El proyecto lo desgaja y vacía parcialmente sin que deje de percibirse como tal. Sobre una geometría muy rígida surgen patios, jardines y amplios porches que generan un diálogo constante entre los espacios interiores y las zonas exteriores. Exteriormente la vivienda gana en dimensión y sorprenden sus vacíos y transparencias. El pretendido juego se acentúa con el empleo de un material como el hormigón, que remarca las aristas de la pieza, al tiempo que contrasta con el acabado en madera del resto de fachadas en las zonas “desgajadas”. Los espacios exteriores, cubiertos o no, cobran especial importancia en el proyecto por su ubicación y contundencia, remarcando el acceso, perfilando el volumen y enlazando los distintos espacios. La ligereza de la pieza diseñada contrasta con la gran superficie que ocupa, creando un perfil de cierto interés plástico.
Por el contrario, hacia el interior los espacios se abren en todas las direcciones, de modo que perceptivamente el espacio trascienda los límites de los cerramientos. Al abrir huecos en las mismas posiciones sobre piezas paralelas se crean transparencias visuales que permiten que la vista atraviese alternativamente espacios abiertos y cerrados, desde la fachada hasta el fondo de la parcela.
Información general
Vivienda en Husillos
AÑO
Opción de visitas
Dirección
ctra. P-991, s/n
34419 Husillos - Palencia
Latitud: 42.086760474
Longitud: -4.536906876
Clasificación
Materiales construcción
Superficie construida
Arquitectos participantes
Información aportada por
Colegio Oficial de Arquitectos de León (COAL)
Enlaces web
-
Piscina Vivienda Husillos - Ricardo Carracedo Castro -
Secciones vivienda Husillos - Ricardo Carracedo Castro -
Planta vivienda Husillos - Ricardo Carracedo Castro -
Vivienda Husillos - Ricardo Carracedo Castro -
Vivienda Husillos - Ricardo Carracedo Castro -
Vivienda Husillos - Ricardo Carracedo Castro
Ubicación
Itinerarios
https://content.gnoss.ws/carq/https://content.gnoss.ws/carq//imagenes/Documentos/imgsem/67/67d5/67d573d8-98b3-446b-ad8b-290f63fb4e9a/882f6484-e822-4e03-8e0a-3027d8d4e8b9.jpg, 0000042847/20_o.jpg
https://content.gnoss.ws/carq/https://content.gnoss.ws/carq//imagenes/Documentos/imgsem/67/67d5/67d573d8-98b3-446b-ad8b-290f63fb4e9a/70757f81-322f-4da4-aa3d-a5677fc06ebc.jpg, 0000042847/20_n.jpg
https://content.gnoss.ws/carq/https://content.gnoss.ws/carq//imagenes/Documentos/imgsem/67/67d5/67d573d8-98b3-446b-ad8b-290f63fb4e9a/a81e0ce2-6c9e-4846-926e-d7a755a5608d.jpg, 0000042847/20_q.jpg
https://content.gnoss.ws/carq/https://content.gnoss.ws/carq//imagenes/Documentos/imgsem/67/67d5/67d573d8-98b3-446b-ad8b-290f63fb4e9a/ee72a431-a87f-46fe-bdc6-402212138218.jpg, 0000042847/20_p.jpg
https://content.gnoss.ws/carq/https://content.gnoss.ws/carq//imagenes/Documentos/imgsem/67/67d5/67d573d8-98b3-446b-ad8b-290f63fb4e9a/c42bdf9c-59df-4500-a092-43a50b504777.jpg, 0000042847/20_a.jpg
https://content.gnoss.ws/carq/https://content.gnoss.ws/carq//imagenes/Documentos/imgsem/67/67d5/67d573d8-98b3-446b-ad8b-290f63fb4e9a/61fdba72-6d48-4d5d-ae3c-a036b1fae9dc.jpg, 0000042847/20_f.jpg
https://content.gnoss.ws/carq/https://content.gnoss.ws/carq//imagenes/Documentos/imgsem/67/67d5/67d573d8-98b3-446b-ad8b-290f63fb4e9a/602be1c9-d376-44b8-8eb6-ace6bdf33a27.jpg, 0000042847/20_i.jpg
https://content.gnoss.ws/carq/https://content.gnoss.ws/carq//imagenes/Documentos/imgsem/67/67d5/67d573d8-98b3-446b-ad8b-290f63fb4e9a/e4ea140d-d8ac-4398-8bbd-6454537b408f.jpg, 0000042847/20_d.jpg
https://content.gnoss.ws/carq//imagenes/Documentos/imgsem/67/67d5/67d573d8-98b3-446b-ad8b-290f63fb4e9a/2e32d2bb-1afb-498e-84f6-d0069792f295.jpg, 0000042847/20_b.jpg
https://content.gnoss.ws/carq//imagenes/Documentos/imgsem/67/67d5/67d573d8-98b3-446b-ad8b-290f63fb4e9a/72dd8019-58a7-42ad-b445-5c36885739dd.jpg, 0000042847/20_c.jpg







