Cargando...
La intensa vida social de los propietarios de esta vivienda, un matrimonio que recibe invitados constantemente, originó un planteamiento de casa ampliable, con zonas independientes y espacios de relación que garantizan la privacidad de invitados y propietarios.
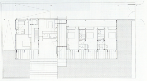
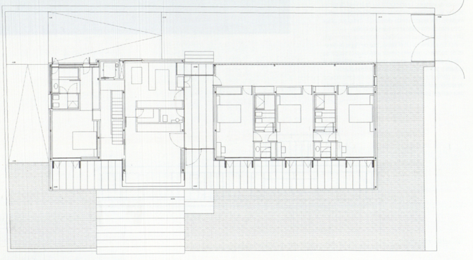
En planta baja, un amplio vestíbulo divide la vivienda en dos zonas, separando el módulo de los propietarios de los tres dormitorios de invitados. La orientación sur de la vivienda permite que las estancias se abran completamente al jardín, mediante una terraza corrida elevada 1/2 metro que actúa como espacio intermedio entre exterior e interior. Un contenedor exterior de paneles prefabricados de hormigón unifica los volúmenes. En el interior, una piel ligera de paneles de madera de baquelita permite a los usuarios matizar su relación con el espacio exterior, cerrando completamente la fachada o proyectando el espacio interior hacia el jardín. En la planta alta, una estancia de 60 m2 sirve como espacio de reunión y se abre completamente en la dirección sureste para capturar las mejores vistas.
.
Información general
Vivienda PH
AÑO
Opción de visitas
Dirección
28670 Villaviciosa de Odon - Madrid
Clasificación
Superficie construida
Colaboradores
José Luis Gutiérrez (Estructuras)
Vanesa Manrique (Colaboradora)
Estudios de arquitectura participantes
Información aportada por
Colegio Oficial de Arquitectos de Madrid (COAM)
-
COAM (2003). Arquitectura, Revista del Colegio Oficial de Arquitectos de Madrid (nº 333), pp.35-37 -
COAM (2003). Arquitectura, Revista del Colegio Oficial de Arquitectos de Madrid (nº 333), pp.35-37 -
COAM (2003). Arquitectura, Revista del Colegio Oficial de Arquitectos de Madrid (nº 333), pp.35-37 -
COAM (2003). Arquitectura, Revista del Colegio Oficial de Arquitectos de Madrid (nº 333), pp.35-37
https://content.gnoss.ws/carq/https://content.gnoss.ws/carq//imagenes/Documentos/imgsem/45/452c/452c6f91-78eb-4b74-9a4d-f95e320b3761/dbfa3d85-a8c4-4662-a267-ab17ac5c1ea4.png, 0000054427/vivienda ph_3.png
https://content.gnoss.ws/carq/https://content.gnoss.ws/carq//imagenes/Documentos/imgsem/45/452c/452c6f91-78eb-4b74-9a4d-f95e320b3761/b3471b0b-4841-4f95-8247-a74e3c218f86.png, 0000054427/vivienda ph_4.png
https://content.gnoss.ws/carq/https://content.gnoss.ws/carq//imagenes/Documentos/imgsem/45/452c/452c6f91-78eb-4b74-9a4d-f95e320b3761/f432f51b-9ca1-4099-9194-7a62d8d1b58a.png, 0000054427/vivienda ph_2.png
https://content.gnoss.ws/carq/https://content.gnoss.ws/carq//imagenes/Documentos/imgsem/45/452c/452c6f91-78eb-4b74-9a4d-f95e320b3761/045d1044-2371-459e-b6d7-dbed74a6fef2.png, 0000054427/vivienda ph_1.png
https://content.gnoss.ws/carq//imagenes/Documentos/imgsem/45/452c/452c6f91-78eb-4b74-9a4d-f95e320b3761/9a070192-b0f0-497b-be88-99907c90a03f.png, 0000054427/vivienda ph_a.png
https://content.gnoss.ws/carq//imagenes/Documentos/imgsem/45/452c/452c6f91-78eb-4b74-9a4d-f95e320b3761/19cf2ca1-db69-4b79-b1e5-a5b77d9eaa36.png, 0000054427/vivienda ph_b.png
https://content.gnoss.ws/carq//imagenes/Documentos/imgsem/45/452c/452c6f91-78eb-4b74-9a4d-f95e320b3761/0967fec6-a9c2-46a9-a755-88e197029d99.png, 0000054427/vivienda ph_c.png





