Cargando...
Situada en una antigua curtiduría esta vivienda participa del conjunto hotelero que recupera el cauce del río Sarela, de gran valor paisajístico, ambiental, arquitectónico, cultural e histórico. La estructura muraria de la antigua fábrica, situada en el cruce del río con la calzada romana que va a Finisterre, junto al Ponte Sarala de Abaixo, fue determinante para la configuración del lugar. A partir de las características de la vieja edificación, se propuso aprovechar el valor testimonial de las ruinas.
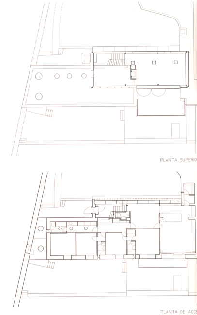
Su estructura y posición sombría junto al río solo admitieron una intervención reducida: dotarla de cubierta y reponer el forjado del nivel superior, para visitarla y rememorar su pasado. La nueva edificación se compone de un cuerpo de apartamentos del hotel y una vivienda unifamiliar, que dan continuidad a los bancales y muros de piedra de la finca contigua.
La vivienda se levanta en dos niveles: el inferior recoge la vida familiar diaria; el superior aloja, en un espacio diáfano, la zona de estar y biblioteca, dispone una terraza. Si el cuerpo inferior pétreo es recogido, el superior se abre al paisaje con grandes ventanales que compensan la escasa luz solar. Debido a la profundidad del piso inferior, en la fachada norte se abre un gran lucernario y celosía con vistas a una plantación floral, equilibrando la sensación luminosa.
Se logró una expresión arquitectónica adecuada al tránsito retrospectivo por la desaparecida realidad, en un ritmo integrador de lo nuevo y lo existente, no para “traer” el pasado al presente, sino para “saber” vivir con él.
Información general
Vivienda unifamiliar en el conjunto de la antigua fábrica de curtidos de la "Ribero de San Lourenzo"
AÑO
Opción de visitas
Dirección
15705 Ponte Sarela - A Coruña
Latitud: 42.879499892
Longitud: -8.56080955
Clasificación
Superficie construida
Premios
Información aportada por
VII BIAU
Enlaces web
Ubicación
https://content.gnoss.ws/carq/https://content.gnoss.ws/carq//imagenes/Documentos/imgsem/14/1409/14095cac-a780-481e-90fd-00c43e59ed01/35c0d7cc-a060-4c5d-84ba-37ccbe63c0f8.jpg, 0000006470/7.jpg
https://content.gnoss.ws/carq/https://content.gnoss.ws/carq//imagenes/Documentos/imgsem/14/1409/14095cac-a780-481e-90fd-00c43e59ed01/8b15a793-f62a-4209-ad42-e7a0bb518db1.jpg, 0000006470/20160602135323_07BI-20 7.jpg
https://content.gnoss.ws/carq/https://content.gnoss.ws/carq//imagenes/Documentos/imgsem/14/1409/14095cac-a780-481e-90fd-00c43e59ed01/559f9c69-19b2-4927-9515-549008d82e8c.jpg, 0000006470/2.jpg
https://content.gnoss.ws/carq/https://content.gnoss.ws/carq//imagenes/Documentos/imgsem/14/1409/14095cac-a780-481e-90fd-00c43e59ed01/1a8f2dc8-3fc9-418f-89d6-319d53fc64aa.jpg, 0000006470/20160602135323_07BI-20 8.jpg
https://content.gnoss.ws/carq/https://content.gnoss.ws/carq//imagenes/Documentos/imgsem/14/1409/14095cac-a780-481e-90fd-00c43e59ed01/8e2b0ac3-41aa-4351-91c8-6207790161ec.jpg, 0000006470/1 .jpg
https://content.gnoss.ws/carq/https://content.gnoss.ws/carq//imagenes/Documentos/imgsem/14/1409/14095cac-a780-481e-90fd-00c43e59ed01/b6ba1628-da0c-4f6d-8803-1a562eb8af09.jpg, 0000006470/3.jpg
https://content.gnoss.ws/carq//imagenes/Documentos/imgsem/14/1409/14095cac-a780-481e-90fd-00c43e59ed01/0eb86374-4f6f-4d62-89c3-448a88b3dfca.jpg, 0000006470/20160602135323_07BI-20 3.jpg



