Cargando...
Habitando paisajes a la sombra de dos contenedores flotantes la vivienda se construye en una parcela con unas condiciones muy particulares y se desarrolla en respuesta a ellas, así como al anhelo del promotor de amortizar al máximo la superficie de jardín y las vistas hacia el paisaje; protegiendo a la vez la intimidad de su familia.
La primera peculiaridad del solar es su localización en el paseo de Chil de Las Palmas de Gran Canaria, un escalón intermedio entre la ciudad alta y la ciudad baja desde donde disfrutar de las vistas sobre plataforma urbana junto al mar. Sin embargo, en su parte posterior la propiedad se enfrenta a un fuerte desnivel del terreno, al sureste linda con un edificio muy deteriorado y al noroeste con una unidad de actuación aún sin construir. Solo cuenta con 350 m2 y su forma es irregular, tendente a trapezoidal; pero quizá lo más determinante desde el punto de vista morfológico es que ya se encuentra totalmente excavada hasta el nivel de la calle cuando se recibe el encargo.
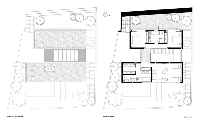
La primera decisión del proyecto consiste precisamente en tratar de reconstruir la topografía original de la parcela, para situar la vivienda a una cota lo más alta posible; permitiéndole así alcanzar las mejores vistas sobre la ciudad baja y alejándola del tráfico rodado. Dicha reconstrucción se plantea organizando el plano del jardín en tres plataformas horizontales que se escalonan paralelamente a la calle y a las vistas. Sobre la intermedia se disponen dos contenedores flotantes que le dan sombra y que, con ayuda de una piel invisible de vidrio, determinan los espacios comunitarios de la vivienda. Espacios que se organizan mediante una gran triple altura que relaciona el subsuelo con el cielo y que atrapa un fragmento del jardín en su interior. Un gran vacío de conexión por el que fluyen el aire y la luz del sol, discurren las escaleras y se ven pasar las nubes incluso desde el sótano. Un vacío que conecta visualmente, pero que también interpone distancia para conferir independencia a los diferentes usos, dividiendo el espacio habitable en otras tres franjas paralelas a las anteriores y sobre las que establece diferentes modos de relación con el exterior. La más próxima a la calle alberga el salón, el comedor y el porche; disfrutando directamente de las vistas hacia el paisaje, la piscina y el jardín delantero. Su piel transparente permite que desde la cocina-comedor –situada en la franja posterior– también se contemplen las vistas sobre la ciudad. Pero ese espacio en segundo término cuenta además con su propio paisaje privado y convierte el área de retranqueo al lindero en el objeto de su perspectiva transversal, conectándolo físicamente e incorporándolo a su interior.
Por su parte, los contenedores flotantes se muestran absolutamente herméticos hacia los colindantes laterales. El frontal alberga al dormitorio principal y se vuelca totalmente al mar; mientras que el posterior convierte el espacio de separación al lindero trasero en un jardín privado a disposición de los dormitorios de los niños. En definitiva, el escalonamiento del plano del suelo, el espacio a triple altura y la posición de los contenedores flotantes respecto a las plataformas y a las vistas, junto a la piel invisible de vidrio, convierten la vivienda en un espacio abierto y fluido en todas direcciones; capaz de generar diferentes ambientes, paisajes y modos de relación entre ellos, así como con los contextos próximo y lejano.
Información general
Vivienda unifamiliar en el paseo de Chil
AÑO
Opción de visitas
Dirección
p.º de Chil, 183
35005 Las Palmas de Gran Canaria - Las Palmas
Latitud: 28.11719988
Longitud: -15.42819489
Clasificación
Sistema constructivo
Estructura mixta con muros, losas y pilares de hormigón armado, combinados con soportes metálicos. Frente de parcela con muro de contención de piedra natural. Fachada enfoscada y pintada, incorporando puntualmente revestimientos de madera.
Superficie construida
Arquitectos participantes
Colaboradores
Hugo Ventura Rodríguez (Arquitecto. Cálculo de estructuras)
Daniel Tercedor García (Arquitecto técnico)
Ricardo Santana Rodríguez (Arquitecto. Coautor Proyecto de Ejecución)
Miguel Curbelo Ekstrand (Fotógrafo)
Antonio Vera de Cominges (Ingeniero. Proyecto de instalaciones)
Información aportada por
Eva Llorca Afonso
Enlaces web
-
PLANO DE EMPLAZAMIENTO Y FOTOGRAFÍAS DE LA PARCELA - Eva Llorca Afonso -
PLANTAS DE CUBIERTA Y ALTA - Eva Llorca Afonso -
VISTAS DESDE DORMITORIO PRINCIPAL - Eva Llorca Afonso
Ubicación
https://content.gnoss.ws/carq/https://content.gnoss.ws/carq//imagenes/Documentos/imgsem/6e/6ed0/6ed098e8-60e7-4470-ba5d-f4259078c863/2edc7230-b089-437a-8845-f272ee7e2a12.jpg, 0000028421/FACHADA_HACIA_EL MAR.jpg
https://content.gnoss.ws/carq/https://content.gnoss.ws/carq//imagenes/Documentos/imgsem/6e/6ed0/6ed098e8-60e7-4470-ba5d-f4259078c863/040ab833-f0fa-4820-bc34-4f2e7ec787ea.jpg, 0000028421/21.JPG
https://content.gnoss.ws/carq/https://content.gnoss.ws/carq//imagenes/Documentos/imgsem/6e/6ed0/6ed098e8-60e7-4470-ba5d-f4259078c863/6e7b4d39-a1fa-4161-acaf-3f70f019d8c9.jpg, 0000028421/01.jpg
https://content.gnoss.ws/carq/https://content.gnoss.ws/carq//imagenes/Documentos/imgsem/6e/6ed0/6ed098e8-60e7-4470-ba5d-f4259078c863/78371f09-eb3a-4d1a-9c0a-dc4fda108b14.jpg, 0000028421/02.jpg
https://content.gnoss.ws/carq/https://content.gnoss.ws/carq//imagenes/Documentos/imgsem/6e/6ed0/6ed098e8-60e7-4470-ba5d-f4259078c863/8c79e0a3-9fd4-4123-8e83-b8c2a9281c22.jpg, 0000028421/03.jpg
https://content.gnoss.ws/carq/https://content.gnoss.ws/carq//imagenes/Documentos/imgsem/6e/6ed0/6ed098e8-60e7-4470-ba5d-f4259078c863/66d7c47d-a6bb-4900-abb5-d417a0695ce5.jpg, 0000028421/04.jpg
https://content.gnoss.ws/carq/https://content.gnoss.ws/carq//imagenes/Documentos/imgsem/6e/6ed0/6ed098e8-60e7-4470-ba5d-f4259078c863/78c8081e-7184-4226-a067-5ef80b671ec2.jpg, 0000028421/05.jpg
https://content.gnoss.ws/carq/https://content.gnoss.ws/carq//imagenes/Documentos/imgsem/6e/6ed0/6ed098e8-60e7-4470-ba5d-f4259078c863/a1984606-8506-4e5c-80d6-b74c8f3e2936.jpg, 0000028421/06.jpg
https://content.gnoss.ws/carq/https://content.gnoss.ws/carq//imagenes/Documentos/imgsem/6e/6ed0/6ed098e8-60e7-4470-ba5d-f4259078c863/689d046c-70b2-4891-a21e-8c5931ed072f.jpg, 0000028421/07.jpg
https://content.gnoss.ws/carq/https://content.gnoss.ws/carq//imagenes/Documentos/imgsem/6e/6ed0/6ed098e8-60e7-4470-ba5d-f4259078c863/72666e97-409f-4a3c-86b1-03cf3470a926.jpg, 0000028421/08.jpg
https://content.gnoss.ws/carq/https://content.gnoss.ws/carq//imagenes/Documentos/imgsem/6e/6ed0/6ed098e8-60e7-4470-ba5d-f4259078c863/75c92a85-5800-48bc-bf62-42cc918a8b00.jpg, 0000028421/09.jpg
https://content.gnoss.ws/carq/https://content.gnoss.ws/carq//imagenes/Documentos/imgsem/6e/6ed0/6ed098e8-60e7-4470-ba5d-f4259078c863/2980b88d-a5e8-45df-9a49-89d1c9c3a1c5.jpg, 0000028421/10.jpg
https://content.gnoss.ws/carq/https://content.gnoss.ws/carq//imagenes/Documentos/imgsem/6e/6ed0/6ed098e8-60e7-4470-ba5d-f4259078c863/b77dab06-1058-4877-a98f-6f3b7b356284.jpg, 0000028421/11.jpg
https://content.gnoss.ws/carq/https://content.gnoss.ws/carq//imagenes/Documentos/imgsem/6e/6ed0/6ed098e8-60e7-4470-ba5d-f4259078c863/b4a11d50-41af-421e-9333-aaaf5e24320f.jpg, 0000028421/12.jpg
https://content.gnoss.ws/carq/https://content.gnoss.ws/carq//imagenes/Documentos/imgsem/6e/6ed0/6ed098e8-60e7-4470-ba5d-f4259078c863/e92d6a78-3179-4532-acc8-74a812c1c939.jpg, 0000028421/13.jpg
https://content.gnoss.ws/carq/https://content.gnoss.ws/carq//imagenes/Documentos/imgsem/6e/6ed0/6ed098e8-60e7-4470-ba5d-f4259078c863/9379ce14-d1cc-440c-862e-9978eee38af1.jpg, 0000028421/14.jpg
https://content.gnoss.ws/carq/https://content.gnoss.ws/carq//imagenes/Documentos/imgsem/6e/6ed0/6ed098e8-60e7-4470-ba5d-f4259078c863/7540ae70-11d3-4434-a800-7c87e681b7ae.jpg, 0000028421/15.jpg
https://content.gnoss.ws/carq/https://content.gnoss.ws/carq//imagenes/Documentos/imgsem/6e/6ed0/6ed098e8-60e7-4470-ba5d-f4259078c863/53d2a9b5-7312-4021-91e5-3c0562ff197e.jpg, 0000028421/16.jpg
https://content.gnoss.ws/carq/https://content.gnoss.ws/carq//imagenes/Documentos/imgsem/6e/6ed0/6ed098e8-60e7-4470-ba5d-f4259078c863/50af878b-4743-410a-afdc-8dc35306b7c6.jpg, 0000028421/17.jpg
https://content.gnoss.ws/carq/https://content.gnoss.ws/carq//imagenes/Documentos/imgsem/6e/6ed0/6ed098e8-60e7-4470-ba5d-f4259078c863/758ea743-148f-4e43-8e04-04cada279854.jpg, 0000028421/18.jpg
https://content.gnoss.ws/carq/https://content.gnoss.ws/carq//imagenes/Documentos/imgsem/6e/6ed0/6ed098e8-60e7-4470-ba5d-f4259078c863/b90f41c9-efca-46a0-8f72-71d5ee693435.jpg, 0000028421/19.jpg
https://content.gnoss.ws/carq/https://content.gnoss.ws/carq//imagenes/Documentos/imgsem/6e/6ed0/6ed098e8-60e7-4470-ba5d-f4259078c863/f3e2c660-a267-4d17-a1cf-6c55322658b7.jpg, 0000028421/20.jpg
https://content.gnoss.ws/carq//imagenes/Documentos/imgsem/6e/6ed0/6ed098e8-60e7-4470-ba5d-f4259078c863/3dade0cb-9de3-4476-84c9-009d068688e7.jpg, 0000028421/02_P_CUBIERTA_ALTA.jpg
https://content.gnoss.ws/carq//imagenes/Documentos/imgsem/6e/6ed0/6ed098e8-60e7-4470-ba5d-f4259078c863/3a554358-a114-49ad-9c85-394260ba2004.jpg, 0000028421/01_EMPLAZAMIENTO.jpg
https://content.gnoss.ws/carq//imagenes/Documentos/imgsem/6e/6ed0/6ed098e8-60e7-4470-ba5d-f4259078c863/583c730e-723d-4e60-a7ec-ec16da94270c.jpg, 0000028421/03_P_BAJA_SOTANO.jpg
https://content.gnoss.ws/carq//imagenes/Documentos/imgsem/6e/6ed0/6ed098e8-60e7-4470-ba5d-f4259078c863/e029f41a-c36e-41c5-ad70-1023a4ec3be8.jpg, 0000028421/04_SECCIONES.jpg




