Cargando...
Se plantea el diseño de una vivienda unifamiliar para un matrimonio joven y sus dos hijos. La parcela sobre la que se plantea la casa está ubicada en el área denominada La Fresneda, incluida en una urbanización de viviendas unifamiliares, tanto aisladas como adosadas, y es muy importante en el proyecto la morfología de la parcela, que presenta por uno de sus límites una curva muy pronunciada y que indudablemente influye de forma importante en el diseño de la edificación.
La forma del solar sugiere la aceptación de la linde curva de la calle como muro de la casa, de modo que este unifica con la que, en otro caso, hubiere sido tapia, caracterizándose la imagen que la construcción ofrece con este único y potente gesto. El muro presenta la idea de una puerta cerrada que deja un mundo al exterior. La vivienda será un universo opuesto al del exterior.
El programa se desarrolla por módulos funcionales que van surgiendo del muro curvo que delimita el exterior de la parcela, y al que abandonan para delimitar por ellos mismos, tanto al encuentro con el jardín como al final de la vivienda; y orientado siempre al sur para conseguir un buen soleamiento y una relación visual con el acceso a la parcela. Así, en el primer módulo abierto se ubica una zona de uso relacionada con el jardín, tanto para barbacoas y celebraciones como para resguardo de bicicletas y objetos de ocio.
En contacto directo con este módulo se ubica el espacio vivencial de la casa, donde en un primer módulo se encuentra el paquete técnico, es decir, el local de cocina, lavado, plancha y el aseo de día; y a continuación se encuentra la zona donde se desarrolla la función del comedor y área de estar de mayor uso, donde se realizará la mayor parte de la vida diaria, y que da a un porche orientado al sur al que se abren unas puertas de cristal, protegidas por venecianas, que en los días de más calor ampliará estos módulos hasta el exterior.
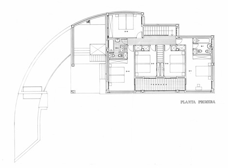
En este ámbito, se encuentra el acceso desde el exterior, y está en contacto directo con el resto de las funciones de la vivienda desde la escalera que comunica en vertical con la planta de mayor grado de privacidad, que corresponde a los dormitorios y que consta de cuatro habitaciones, el aseo de estos, y el dormitorio matrimonial con su propio cuarto de baño. Además de las funciones descritas se necesitaba un estudio y, con el objeto de que el volumen no se erigiese descaradamente sobre la finca, se utiliza el bajocubierta aprovechando el espacio de que libera la inclinación de la misma para tal función, y se accederá desde una escalera que enlaza con la de la vivienda y que se ubica en la planta de dormitorios.
Por lo que respecta a la imagen de la vivienda, esta aprovecha elementos formales de la arquitectura popular, y los reinterpreta con materiales y soluciones, tales como aleros de hormigón, en los que los canecillos, también de hormigón, soportan una lámina aligerada del mismo material sobre la que vuela la teja, resaltando un alero de clara alusión a los invariantes populares. El desarrollo de la cubierta, que se cubre con teja curva y se integra el canalón dentro de esta, se realiza para liberar el borde del alero del mismo y así recuperar toda su capacidad expresiva, carpinterías ejecutadas en maderas autóctonas, etc., y que contribuya a que la vivienda, sin perder su concepto residencial, y adopte un aspecto integrado dentro de su entorno.
Información general
Vivienda unifamiliar en La Fresneda
AÑO
Opción de visitas
Dirección
c.º de los Tilos, 8
33429 La Fresneda, Concejo de Siero - Asturias
Latitud: 43.40980003523036
Longitud: -5.787453246935544
Clasificación
Superficie construida
Arquitectos participantes
Información aportada por
María Jesús Díaz Prieto
-
Planta Primera - María Jesús Díaz Prieto
Ubicación
Itinerarios
https://content.gnoss.ws/carq/https://content.gnoss.ws/carq//imagenes/Documentos/imgsem/67/672a/672a8026-c6a1-4647-9ec6-5c519133859b/718d3b77-dbe1-41a5-aed6-2a72be9b8414.jpg, 0000041058/foto 15 - copia.jpg
https://content.gnoss.ws/carq/https://content.gnoss.ws/carq//imagenes/Documentos/imgsem/67/672a/672a8026-c6a1-4647-9ec6-5c519133859b/10cc4ca1-bdbf-4adf-b22d-a269e825bc52.jpg, 0000041058/foto 13 - copia.jpg
https://content.gnoss.ws/carq/https://content.gnoss.ws/carq//imagenes/Documentos/imgsem/67/672a/672a8026-c6a1-4647-9ec6-5c519133859b/f5443ef5-26ed-42c3-a4ca-becb5e2a91da.jpg, 0000041058/foto 17.jpg
https://content.gnoss.ws/carq/https://content.gnoss.ws/carq//imagenes/Documentos/imgsem/67/672a/672a8026-c6a1-4647-9ec6-5c519133859b/b6686bd4-9a76-4e51-a06f-614e58e21b97.jpg, 0000041058/Figura 13_1992_MAJESUS_DIAZ.jpg
https://content.gnoss.ws/carq/https://content.gnoss.ws/carq//imagenes/Documentos/imgsem/67/672a/672a8026-c6a1-4647-9ec6-5c519133859b/5d30ff02-99e9-4c50-93ec-8d382682187c.jpg, 0000041058/foto 14 - copia.jpg
https://content.gnoss.ws/carq/https://content.gnoss.ws/carq//imagenes/Documentos/imgsem/67/672a/672a8026-c6a1-4647-9ec6-5c519133859b/c93705ae-fed0-4a76-ba0f-290c3e1f67e4.jpg, 0000041058/foto 19 - copia.jpg
https://content.gnoss.ws/carq//imagenes/Documentos/imgsem/67/672a/672a8026-c6a1-4647-9ec6-5c519133859b/5b806f4d-0e85-4279-aa13-192f8594c843.jpg, 0000041058/foto 16.jpg
https://content.gnoss.ws/carq//imagenes/Documentos/imgsem/67/672a/672a8026-c6a1-4647-9ec6-5c519133859b/f6be8fc8-9c59-49f4-90ee-df68547bb5d4.jpg, 0000041058/PL. PRIMERA 20230329173453.jpg
https://content.gnoss.ws/carq//imagenes/Documentos/imgsem/67/672a/672a8026-c6a1-4647-9ec6-5c519133859b/74989e64-752a-463d-845d-230aabe40eee.jpg, 0000041058/ALZADO POSTERIOR 20230329173510.jpg
https://content.gnoss.ws/carq//imagenes/Documentos/imgsem/67/672a/672a8026-c6a1-4647-9ec6-5c519133859b/cdb7ca51-ea99-492a-ac40-6d08bb420eba.jpg, 0000041058/PL. BAJA 20230329173445.jpg
https://content.gnoss.ws/carq//imagenes/Documentos/imgsem/67/672a/672a8026-c6a1-4647-9ec6-5c519133859b/51ae3926-4124-4713-8288-596fa0170b6e.jpg, 0000041058/PL. SOTANO 20230329173425.jpg
https://content.gnoss.ws/carq//imagenes/Documentos/imgsem/67/672a/672a8026-c6a1-4647-9ec6-5c519133859b/cfad08c2-142a-4858-b166-b56372fb065d.jpg, 0000041058/ALZADO PRINCIPAL 20230329173530.jpg
https://content.gnoss.ws/carq//imagenes/Documentos/imgsem/67/672a/672a8026-c6a1-4647-9ec6-5c519133859b/8bd97196-fd90-4446-9b1e-057f28659d18.jpg, 0000041058/PL. BAJO-CUBIERTA 20230329173436.jpg
https://content.gnoss.ws/carq//imagenes/Documentos/imgsem/67/672a/672a8026-c6a1-4647-9ec6-5c519133859b/a15d1b1e-606d-47d3-a9be-a6f8a3f90807.jpg, 0000041058/PL. CUBIERTA 20230329173414.jpg
https://content.gnoss.ws/carq//imagenes/Documentos/imgsem/67/672a/672a8026-c6a1-4647-9ec6-5c519133859b/26f6b18f-4452-4df2-85b8-494c2952966f.jpg, 0000041058/ALZADOS LATERALES 20230329173520.jpg
https://content.gnoss.ws/carq//imagenes/Documentos/imgsem/67/672a/672a8026-c6a1-4647-9ec6-5c519133859b/2d5203a0-f8e3-46cb-a872-e72bac5b7eab.jpg, 0000041058/SECCIONES 20230329173539.jpg



