Cargando...
Casi cinco años ha llevado esta casa, y lo decimos sin acritud, emocionados aún, pero ha sido un camino largo.
Los clientes, magníficos y comprensivos, nos enseñaron varias parcelas para escoger la qué pensáramos que era mejor, y al ver estos arces enormes junto al arroyo no buscamos más. Beli tiene problemas de cadera y no quería escalera. A Gloria le hacía ilusión jugar a “lo moderno”.
Planteamos la casa como un plano suspendido, al nivel de la calle, como un palafito por si un día se desborda el pequeño río. Al principio era mayor, con un patio interior, como aquella de Lina Bo Bardi en el Brasil, y miraba hacia atrás a los árboles y al arroyo, pero tardamos tanto que el urbanismo pensó un polideportivo detrás y entonces creímos mejor mirar hacia la calle que hacía aquel muro blanco.
Además, los clientes pensaban que era muy grande y, lo que era un patio interior, salió a un lado como entrante. En realidad la casa y el garaje son como dos animales de igual familia, pero uno más grande. Son un plano que se dobla y cierra hacia el norte para enseñar al sur su lado blando.
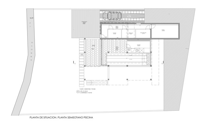
La cubierta es pues un plano de hormigón que toma altura en el salón. Cuando ya estábamos en obra decidieron incluir una piscina, y al no gustarles el olor a cloro en la casa se alojó entre los pilares de abajo, formando un pequeño gimnasio que se abre hacia el arroyo, hacia los árboles y hacia la alfombra de sus hojas.
Contexto:
No muchas veces tenemos la oportunidad de escoger con el cliente la parcela, en este caso fue así, acompañamos a Beli, que nos fue enseñando que lugares disponía. En cuanto vimos esta parcela, en desnivel total con la calle, recorrida por un arroyo y con los impresionantes arces junto al río, no hubo duda: este sería el lugar. La casa en el primer momento iba a crecer con su cubierta inclinada hacia los árboles. Tardamos tanto, que cambio el urbanismo, y entonces en la vecina parcela, que era un prado, el Ayuntamiento decidió hacer un polideportivo. Le dimos la vuelta a la casa y el balcón de la zona de noche, el más bajo quedo hacia el arroyo, los arces y el plano blanco del polideportivo.
Vínculos:
Beli tiene problemas de cadera y no quería escalera. A Gloria le gustaba lo de la imagen contemporánea. Planteamos la casa como un plano suspendido, al nivel de la calle, como un palafito por si un día se desborda el pequeño río. Al principio el edificio era mayor, con un patio interior, como la de Lina Bo Bardi en el Brasil, y miraba hacia atrás a los árboles y al arroyo. Pero tardamos tanto que el urbanismo pensó un polideportivo detrás y entonces creímos mejor mirar hacia la calle que hacía aquel muro blanco.
Luego bajó el presupuesto y el patio se quedó en la fachada sur, como un pliegue. Cuando empezamos las obras, ya con la cimentación hecha, no sabemos la razón, pero la situación económica de los clientes cambió, y nos pidieron una piscina, pero que no tuviera contacto con la casa (les molestaba el olor a cloro), y la diseñamos entre las zapatas ya construidas. De este modo, la casa que estaba en el aire, tomó suelo como gimnasio y piscina en la parte de abajo, donde se amontona la alfombra de hojas de los árboles.
Es evidente, asimismo, la relación con la obra de Jacobsen, sobre todo en el testero norte ciego.
Carácter (icono):
No hay muchas casas como esta por su entorno. La casa en sí, y el garaje, se conforman como dos pliegues, como una madre con su cachorro, como si hubiera un crecimiento entre ellas.
A norte ciega, con la piedra caliza gris de la cercana Pravia, y a sur “una casa racionalista californiana”. Es como si se desvistiese, o pelase como una fruta, al volver la esquina. Vemos la fachada sur con el patio que se abre a la mejor orientación, para comer al aire, flotando en el jardín y después foto desde el arroyo, viéndose la zona inferior de la piscina y gimnasio y arriba el balcón hacia los árboles.
Sistema:
Se trata de una estructura de hormigón apoyada en pilares de hormigón abajo y metálicos arriba para reforzar esa idea de plano apoyado y quebrado. La parte superior está inclinada, haciendo que los espacios varíen su altura.
Materia:
El exterior, como dijimos, está forrado de esa piedra caliza gris tan propia de la zona, y el resto, la fachada que sale a los otros tres vientos, es mortero pintado de blanco. Las ventanas son de aluminio anodizado, mientras que, por ejemplo, el portón del garaje, o la parte superior de la carpintería que forma como una doble escala en el frente de la casa se realiza en madera, es decir, la usamos cuando los generosos vuelos la protegen.
Atrás un rodillo de madera también forma la barandilla hacia los árboles, y un generoso canalón lleva el agua hacia una cadena que la baja ordenadamente hacia el río.
Hay algo también en esta fachada al arroyo que lo relaciona con el pabellón de tenis de Matosinhos de Fernando Távora. Este espacio, doble altura que adquiere el salón, genera dos niveles interiores: el de abajo, con una lama de madera tamiza la luz y da privacidad; y los de arriba, enfocan a distintos puntos para que el sol, en su camino, vaya iluminando uno u otro plano de la casa.
Investigación:
En Asturias llueve mucho, y esto, cuando utilizamos pendientes pequeñas, como es este caso, nos lleva a duplicar la lámina de caucho, pero bueno, esto no es nada nuevo, más que una precaución. Lo que nos dio más guerra fue el plantear el parquet sin matajuntas, es decir, el roble de 25 cm tratado como si fuera tablilla de polideportivo. Nos gustaba esa imagen y la propusimos, pero luego nos dio bastantes problemas porque se levantaban tramos enteros, al no distribuir bien esfuerzos.
Anécdota:
Aquí, los ayuntamientos suelen tardar seis meses en dar licencia. Al día siguiente de meter el proyecto el cliente nos llamó sorprendido, el arquitecto municipal, a quien no conocíamos, le había llamado y le había dicho que para hacer esta casa no necesitaba esperar más, ¡podíamos empezar ya!
Información general
Vivienda unifamiliar en Soto del Barco
AÑO
Opción de visitas
Dirección
c/ Maestro Lombardero,
33139 Soto del Barco - Asturias
Latitud: 43.52752122657013
Longitud: -6.110985136011234
Clasificación
Superficie construida
Información aportada por
Colegio Oficial de Arquitectos de Asturias (COAA)
Ubicación
Itinerarios
https://content.gnoss.ws/carq/https://content.gnoss.ws/carq//imagenes/Documentos/imgsem/6d/6da1/6da15e04-426e-448b-95f8-d0279e1b77d4/8bac9b4b-1c07-4803-9dfc-a91df09c2e68.jpg, 0000028961/08.jpg
https://content.gnoss.ws/carq/https://content.gnoss.ws/carq//imagenes/Documentos/imgsem/6d/6da1/6da15e04-426e-448b-95f8-d0279e1b77d4/af40bf3c-220a-45c6-b5e7-7274a4b8bcd5.jpg, 0000028961/1.jpg
https://content.gnoss.ws/carq/https://content.gnoss.ws/carq//imagenes/Documentos/imgsem/6d/6da1/6da15e04-426e-448b-95f8-d0279e1b77d4/6f68a446-0554-4499-b79e-7f6f1af8b01c.jpg, 0000028961/2.jpg
https://content.gnoss.ws/carq/https://content.gnoss.ws/carq//imagenes/Documentos/imgsem/6d/6da1/6da15e04-426e-448b-95f8-d0279e1b77d4/6edd359f-4b43-462f-87f6-117b264bd6a6.jpg, 0000028961/3.jpg
https://content.gnoss.ws/carq/https://content.gnoss.ws/carq//imagenes/Documentos/imgsem/6d/6da1/6da15e04-426e-448b-95f8-d0279e1b77d4/6af491d4-12a1-44aa-8913-f324335816ed.jpg, 0000028961/4.jpg
https://content.gnoss.ws/carq/https://content.gnoss.ws/carq//imagenes/Documentos/imgsem/6d/6da1/6da15e04-426e-448b-95f8-d0279e1b77d4/4bca6ce4-a376-406a-b6c1-0625702418d4.jpg, 0000028961/6.jpg
https://content.gnoss.ws/carq/https://content.gnoss.ws/carq//imagenes/Documentos/imgsem/6d/6da1/6da15e04-426e-448b-95f8-d0279e1b77d4/39f46f56-acd0-4b4d-aaae-395be3e949c4.jpg, 0000028961/7.jpg
https://content.gnoss.ws/carq/https://content.gnoss.ws/carq//imagenes/Documentos/imgsem/6d/6da1/6da15e04-426e-448b-95f8-d0279e1b77d4/25f4965d-63ae-4e1a-aeb6-f76f32894497.jpg, 0000028961/8.jpg
https://content.gnoss.ws/carq//imagenes/Documentos/imgsem/6d/6da1/6da15e04-426e-448b-95f8-d0279e1b77d4/72c3aaaf-5f7c-4465-97c4-d14feea364d0.jpg, 0000028961/d.jpg
https://content.gnoss.ws/carq//imagenes/Documentos/imgsem/6d/6da1/6da15e04-426e-448b-95f8-d0279e1b77d4/15ef1208-8902-4b9a-9a6e-da6c0dda9906.jpg, 0000028961/c.jpg
https://content.gnoss.ws/carq//imagenes/Documentos/imgsem/6d/6da1/6da15e04-426e-448b-95f8-d0279e1b77d4/ab3365f5-a73f-4410-9e7f-c329084684c3.jpg, 0000028961/a.jpg



