Cargando...
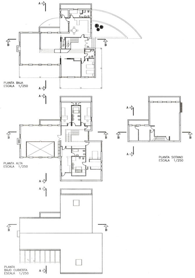
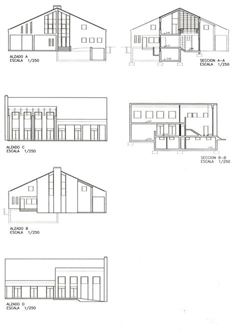
Vivienda familiar y vivienda actual. Se planteó con un doble uso, como vivienda y como zona de trabajo profesional. Se zonifica según usos. En planta sótano se disponen el garaje, la zona de almacén y la caldera. El espacio se ilumina con un patio inglés. En planta baja se sitúa la zona de día y el área para el servicio doméstico. En la planta alta se ubica la zona de dormitorios y el estudio con una conexión visual con la planta baja. La doble altura se ilumina con amplios huecos que ofrecen una vista al jardín.
La cubierta se resuelve a dos aguas en teja. Diseñada especialmente la zona de porches. Uno cubierto y otro con pérgolas para que en verano se cubra con vegetación estacional.
Información general
Vivienda unifamiliar González Cebrián
AÑO
Opción de visitas
Dirección
ur. Club de Golf,
15190 Zapateira - A Coruña
Latitud: 43.30451695
Longitud: -8.418971046
Clasificación
Sistema constructivo
Estructura de pilares y vigas de hormigón. Combina piedra y pintura en los acabados.
Superficie construida
Arquitectos participantes
Información aportada por
Inés Pernas Alonso
-
Plano de alzados - Archivo de Julia Fernández de Caleya Blankemeyer -
Interior zona estudio - Julia Fernández de Caleya Blankemeyer -
Fachada principal - Julia Fernández de Caleya Blankemeyer -
Interior doble altura - Julia Fernández de Caleya Blankemeyer
Ubicación
https://content.gnoss.ws/carq/https://content.gnoss.ws/carq//imagenes/Documentos/imgsem/4a/4aca/4aca0595-fb3b-45c0-81cf-7fd4fd34f9af/874df901-b1c4-4a28-a49a-5aadd8c716db.jpg, 0000020844/ZAPATEIRA_03.jpg
https://content.gnoss.ws/carq/https://content.gnoss.ws/carq//imagenes/Documentos/imgsem/4a/4aca/4aca0595-fb3b-45c0-81cf-7fd4fd34f9af/cf7dd3ed-e8db-436b-b34a-a4dc9f41a729.jpg, 0000020844/foto_Zapateira1.jpg
https://content.gnoss.ws/carq/https://content.gnoss.ws/carq//imagenes/Documentos/imgsem/4a/4aca/4aca0595-fb3b-45c0-81cf-7fd4fd34f9af/5e1d0222-26ad-437d-8201-56228fd29ad3.jpg, 0000020844/foto_Zapateira2.jpg
https://content.gnoss.ws/carq/https://content.gnoss.ws/carq//imagenes/Documentos/imgsem/4a/4aca/4aca0595-fb3b-45c0-81cf-7fd4fd34f9af/111c45f4-0205-42e5-b90a-c4e4fd304e13.jpg, 0000020844/foto_Zapateira3.jpg
https://content.gnoss.ws/carq/https://content.gnoss.ws/carq//imagenes/Documentos/imgsem/4a/4aca/4aca0595-fb3b-45c0-81cf-7fd4fd34f9af/713e0a11-c342-4d11-81bc-af53cc714e56.jpg, 0000020844/foto_Zapateira4.jpg
https://content.gnoss.ws/carq//imagenes/Documentos/imgsem/4a/4aca/4aca0595-fb3b-45c0-81cf-7fd4fd34f9af/f032dc20-3d61-443d-9e94-5809a3a236ea.jpg, 0000020844/ZAPATEIRA_01.jpg
https://content.gnoss.ws/carq//imagenes/Documentos/imgsem/4a/4aca/4aca0595-fb3b-45c0-81cf-7fd4fd34f9af/cef76dac-b4b1-4f5f-bd86-953d96a6786d.jpg, 0000020844/ZAPATEIRA_02.jpg






