Cargando...
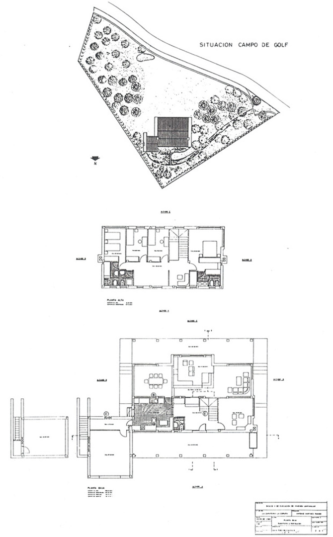
Vivienda unifamiliar diseñada de acuerdo con los gustos del propietario, al que se le convenció de la utilidad de un porche anterior y posterior. La distribución de la vivienda se realiza en dos zonas: las dependencias familiares se sitúan en la planta alta y en la planta baja, vinculadas a la cocina y garaje, se ubican las del servicio doméstico.
Es una vivienda de estructura convencional en hormigón forrada de piedra, de ahí el grosor de los muros. El propietario diseñó un sistema para el aprovechamiento del agua de lluvia para regar los jardines que circundan el edificio.
Información general
Vivienda unifamiliar Rumbo
AÑO
Opción de visitas
Dirección
c/ Maria del Carmen Corredoira,
15174 Zapateira - A Coruña
Latitud: 43.303723913
Longitud: -8.416588893
Clasificación
Sistema constructivo
Estructura de pilares y vigas de hormigón armado, cierre con piedra.
Superficie construida
Arquitectos participantes
Información aportada por
Inés Pernas Alonso
-
Vivienda unifamiliar Rumbo, A Zapateira - Archivo de Julia Fernández de Caleya Blankemeyer -
Fachada Sur - Julia Fernández de Caleya Blankemeyer
Ubicación
https://content.gnoss.ws/carq/https://content.gnoss.ws/carq//imagenes/Documentos/imgsem/9b/9b7f/9b7f08bf-4952-4ec7-88d5-cb6df7dfdfae/1797f927-294f-47b6-aa18-5d31709c887d.jpg, 0000020836/RUMBO_03.jpg
https://content.gnoss.ws/carq/https://content.gnoss.ws/carq//imagenes/Documentos/imgsem/9b/9b7f/9b7f08bf-4952-4ec7-88d5-cb6df7dfdfae/c077fc38-257e-4187-85d4-1eae0bd18b2f.jpg, 0000020836/foto_Rumbo1.jpg
https://content.gnoss.ws/carq/https://content.gnoss.ws/carq//imagenes/Documentos/imgsem/9b/9b7f/9b7f08bf-4952-4ec7-88d5-cb6df7dfdfae/6938efc1-15cc-47f4-95df-8adccf4337fb.jpg, 0000020836/foto_Rumbo2.jpg
https://content.gnoss.ws/carq//imagenes/Documentos/imgsem/9b/9b7f/9b7f08bf-4952-4ec7-88d5-cb6df7dfdfae/2bd7153c-1f11-42a5-b801-86978aa99593.jpg, 0000020836/RUMBO_01.jpg
https://content.gnoss.ws/carq//imagenes/Documentos/imgsem/9b/9b7f/9b7f08bf-4952-4ec7-88d5-cb6df7dfdfae/da0d113b-ac78-4c64-b14f-45eed2b53f02.jpg, 0000020836/RUMBO_02.jpg




