Cargando...
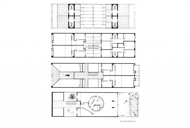
La penetración en el edificio se entiende como un recorrido a través de una galería de locales vidriada y un túnel de madera de erable a modo de vestíbulo, para desembocar a un nivel intermedio sobre un patio interior ajardinado cubierto por una gran claraboya. En él se desarrollan una escalera de recorrido, las galerías de servicio laterales y unas pasarelas que dan acceso a las seis viviendas en dúplex desde las cuales se recupera la azotea de uso privado.
Desde el mismo patio interior se accede al estudio de la planta jardín, creándose al fondo de este un jardín y una pérgola mirador sobre un club de tenis. La estructura adquiere un ritmo 3-2-1-2-3, que permite salvar perfectamente los problemas que plantean las fachadas exteriores y de patio, la construcción de las escaleras de las viviendas y el patio central.
El desdoblamiento de la planta baja retrasada 3 metros respecto a la calle se soluciona suspendiéndola desde el forjado superior, lo cual permite mantener diáfana la estructura general. En consecuencia, el retraso de la planta altillo y el arriostramiento de los pórticos laterales permiten la esbeltez del pilar central de fachada al eliminar casi totalmente el pandeo.
Información general
Viviendas en la calle Bertran 113
AÑO
Opción de visitas
Dirección
c/ Bertran, 113
08023 Barcelona - Barcelona
Latitud: 41.409418629
Longitud: 2.1394856047
Clasificación
Superficie construida
Arquitectos participantes
Estudios de arquitectura participantes
Información aportada por
OAB - Office of Architecture in Barcelona
Enlaces web
-
Núcleo de comunicaciones - OAB - Office of Architecture in Barcelona
Ubicación
https://content.gnoss.ws/carq/https://content.gnoss.ws/carq//imagenes/Documentos/imgsem/9d/9d00/9d000f34-8a82-461b-824a-66fa33f98f95/c06d8532-32b6-4e6d-9cfb-2ce9f286e033.jpg, 0000011729/bertarn_ferrater.jpg
https://content.gnoss.ws/carq/https://content.gnoss.ws/carq//imagenes/Documentos/imgsem/9d/9d00/9d000f34-8a82-461b-824a-66fa33f98f95/a65bea54-dd62-4dea-b5ac-38ca40fde1b6.jpg, 0000011729/bertarn2_ferrater.jpg
https://content.gnoss.ws/carq/https://content.gnoss.ws/carq//imagenes/Documentos/imgsem/9d/9d00/9d000f34-8a82-461b-824a-66fa33f98f95/dc21063b-6312-476d-8223-aecb0a25b0ed.jpg, 0000011729/bertarn3_ferrater.jpg
https://content.gnoss.ws/carq//imagenes/Documentos/imgsem/9d/9d00/9d000f34-8a82-461b-824a-66fa33f98f95/9be864c2-8fd7-463a-abeb-202bd6cc2508.jpg, 0000011729/Seccion logitudinal.jpg
https://content.gnoss.ws/carq//imagenes/Documentos/imgsem/9d/9d00/9d000f34-8a82-461b-824a-66fa33f98f95/d1b0a626-3ffe-4b81-b4a9-25c835f25d64.jpg, 0000011729/bertarn4_ferrater.jpg
https://content.gnoss.ws/carq//imagenes/Documentos/imgsem/9d/9d00/9d000f34-8a82-461b-824a-66fa33f98f95/815b55af-f689-4d6b-8d1a-612722c0b4f4.jpg, 0000011729/bertarn5_ferrater.jpg




