Loading...
Finalizado en 1968, el edificio nace para acoger la sede social de Hidroeléctrica del Cantábrico. Obra del arquitecto y artista Joaquín Vaquero Palacios, quien también diseño el famoso imagotipo de la empresa y otros elementos, como murales, se trata de un volumen único formado por dos prismas de diferentes alturas.
Hacia la Plaza de la Gesta se asoma una pieza de bajo más cinco plantas, mientras que el volumen trasero alcanza las ocho, como resultado de la aplicación de la normativa urbanística vigente. Destaca la creación de un soportal en planta baja, sobre el que descansa el escultórico distintivo de la empresa.
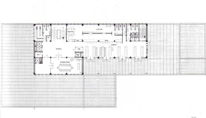
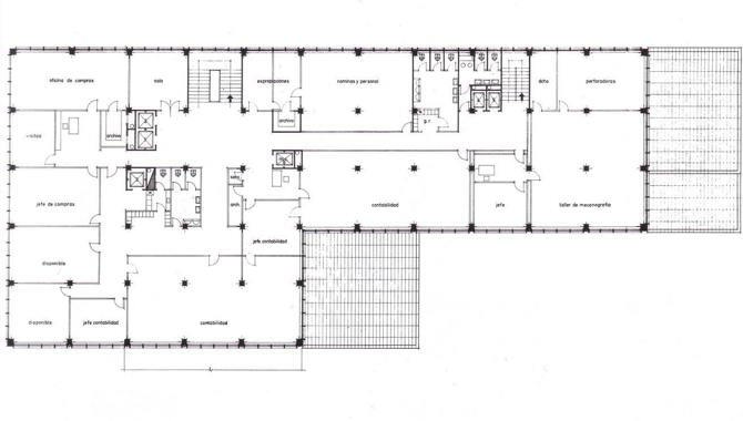
En cuanto a su organización interna, la planta baja incluye un salón de actos, el semisótano el garaje y otros programas de servicio, mientras que las plantas superiores incluyen espacios de oficina con tabiquería móvil. En el último nivel se proyectó un bar-restaurante que solo ocupa parte de la planta, dejando el resto libre a una terraza.
El edificio emplea una estructura de hormigón armado que contrasta con la ligereza del plano de fachada, un sistema novedoso en la Asturias de la época: un muro cortina de vidrio y acero de tono negro. De acuerdo con Felipe Díaz Miranda, el edificio muestra la influencia de la obra de Mies Van der Rohe en América, pues se proyecta tras el viaje de Vaquero a los Estados Unidos.
General information
Sede social de Hidroeléctrica del Cantábrico
YEAR
Option to visit
Address
Plza. del Fresno,
33007 Oviedo - Asturias -Oviedo
Latitude: 43.35795
Longitude: -5.85184
Classification
Built area
Involved architects
-
Uvieu - (Muséu del Pueblu dAsturies)
Location
https://content.gnoss.ws/carq/https://content.gnoss.ws/carq//imagenes/Documentos/imgsem/c9/c998/c9987f0f-4e88-47a1-8cd6-9b73e65dde7e/c56c0884-e270-48ac-9196-b60108d628a8.jpg, 0000103718/1.jpg
https://content.gnoss.ws/carq/https://content.gnoss.ws/carq//imagenes/Documentos/imgsem/c9/c998/c9987f0f-4e88-47a1-8cd6-9b73e65dde7e/44475743-e7e3-4fbd-8a25-f88300a3a8c7.jpg, 0000103718/2.jpg
https://content.gnoss.ws/carq/https://content.gnoss.ws/carq//imagenes/Documentos/imgsem/c9/c998/c9987f0f-4e88-47a1-8cd6-9b73e65dde7e/7aa72278-d281-4660-9559-8e5929b95ffb.jpg, 0000103718/f3.jpg
https://content.gnoss.ws/carq//imagenes/Documentos/imgsem/c9/c998/c9987f0f-4e88-47a1-8cd6-9b73e65dde7e/59a68a9a-ece5-4cf1-9cc0-acde73cbfb6e.jpg, 0000103718/pa.jpg
https://content.gnoss.ws/carq//imagenes/Documentos/imgsem/c9/c998/c9987f0f-4e88-47a1-8cd6-9b73e65dde7e/2a2a1399-3eed-4623-ab08-c718e66be755.jpg, 0000103718/pt.jpg
https://content.gnoss.ws/carq//imagenes/Documentos/imgsem/c9/c998/c9987f0f-4e88-47a1-8cd6-9b73e65dde7e/c633768a-b772-4267-a8c2-7996813cc179.jpg, 0000103718/pb.jpg




