Cargando...
Un edificio de viviendas esencial. Esta obra para 20 viviendas de protección oficial en régimen de alquiler se resuelve mediante el cuidado de la escala y la proporción, atendiendo a las restrictivas normativas de VPO, las rígidas Ordenanzas municipales y a un presupuesto muy limitado. El contexto, un paisaje genérico de periferia andaluza, refleja el planeamiento típico del boom de la construcción.
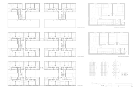
Ante esta situación, modelamos una pieza habitacional con identidad capaz de ubicarse en un área de complejas relaciones entre dispares tipologías residenciales y usos urbanos, y determinantes transiciones topográficas y volumétricas. La tipología de vivienda y su agregación, esquemática y repetitiva, se encaja en una única crujía con doble ventilación que al agruparse genera dos bloques geométricamente definidos, cuya forma y disposición estructural optimizan el uso y los metros cuadrados construidos.
La disposición del conjunto libera parte de la parcela para construir un pequeño espacio público, uno de la serie de espacios intermedios que se brindan como potenciales lugares de encuentro colectivo. La claridad en planta, cruzada con la lectura creativa del PGOU, nos permite ser flexibles a la hora de componer los volúmenes finales en una acción de adaptación al paisaje urbano, que, junto con el trabajo de la imagen del edificio, evita el bloque genérico per se.
Esta aproximación adaptativa también se aplica a la composición de los huecos de las diversas fachadas, que se maximizan, lo que nos permite, entre otras cosas, tener en los salones de las viviendas una doble entrada de luz. Repetición, variación, identidad y sorpresa marcan la pauta proyectual.
Información general
20 viviendas de protección oficial
AÑO
Opción de visitas
Dirección
c/ Trece Rosas, 6
11140 Conil de la Frontera - Cádiz
Latitud: 36.281382389
Longitud: -6.080785264
Clasificación
Superficie construida
Arquitectos participantes
Colaboradores
Celia Ramos Ramírez (Topografía)
Francisco Gallardo Trujillo (Arquitecto Técnico (dir. de ejecución, coord. SyS))
Francisco Alba Ortega (Arquitecto Técnico (dir. de ejecución, coord. SyS))
Información aportada por
Consejo Andaluz de Colegios Oficiales de Arquitectos (CACOA)
-
Plantas - KAUH arquitectura y paisajismo -
Situación y emplazamiento - KAUH arquitectura y paisajismo -
Vista interior - Fernando Alda
Ubicación
Itinerarios
https://content.gnoss.ws/carq/https://content.gnoss.ws/carq//imagenes/Documentos/imgsem/b5/b5d5/b5d50766-8ca2-48d7-bf3e-a4f8caf9f9b0/f37e8f02-db4a-499b-8e73-1849e3db9fe1.jpg, 0000045630/8049_22.jpg
https://content.gnoss.ws/carq/https://content.gnoss.ws/carq//imagenes/Documentos/imgsem/b5/b5d5/b5d50766-8ca2-48d7-bf3e-a4f8caf9f9b0/9f0fb3d0-632e-411d-94f3-4f24cc9b8909.jpg, 0000045630/8049_21.jpg
https://content.gnoss.ws/carq/https://content.gnoss.ws/carq//imagenes/Documentos/imgsem/b5/b5d5/b5d50766-8ca2-48d7-bf3e-a4f8caf9f9b0/46ab881d-0af2-4e51-9179-313f9c084fa8.jpg, 0000045630/8049_18.jpg
https://content.gnoss.ws/carq/https://content.gnoss.ws/carq//imagenes/Documentos/imgsem/b5/b5d5/b5d50766-8ca2-48d7-bf3e-a4f8caf9f9b0/ce35b0e9-4b28-4095-a05f-97f8495200d4.jpg, 0000045630/8049_06.jpg
https://content.gnoss.ws/carq/https://content.gnoss.ws/carq//imagenes/Documentos/imgsem/b5/b5d5/b5d50766-8ca2-48d7-bf3e-a4f8caf9f9b0/ffeda3e1-7119-4d90-bc75-18b69133c7ba.jpg, 0000045630/8049_13.jpg
https://content.gnoss.ws/carq/https://content.gnoss.ws/carq//imagenes/Documentos/imgsem/b5/b5d5/b5d50766-8ca2-48d7-bf3e-a4f8caf9f9b0/99c19a43-fe60-496c-baa0-a002eebf30f0.jpg, 0000045630/8049_05.jpg
https://content.gnoss.ws/carq//imagenes/Documentos/imgsem/b5/b5d5/b5d50766-8ca2-48d7-bf3e-a4f8caf9f9b0/8a17150c-4bc3-4195-b072-21c423d6fd90.jpg, 0000045630/20_VPO_1.jpg
https://content.gnoss.ws/carq//imagenes/Documentos/imgsem/b5/b5d5/b5d50766-8ca2-48d7-bf3e-a4f8caf9f9b0/6c6ac75d-31cb-427e-aec4-3a6e44afe8c5.jpg, 0000045630/20_VPO_2.jpg
https://content.gnoss.ws/carq//imagenes/Documentos/imgsem/b5/b5d5/b5d50766-8ca2-48d7-bf3e-a4f8caf9f9b0/cd0bd3e7-f84f-4449-81e8-988a71e43744.jpg, 0000045630/20_VPO_3.jpg
https://content.gnoss.ws/carq//imagenes/Documentos/imgsem/b5/b5d5/b5d50766-8ca2-48d7-bf3e-a4f8caf9f9b0/ced477f9-f9ac-4038-8bae-5c058d66a8bc.jpg, 0000045630/20_VPO_4.jpg




