Cargando...
El concurso de ideas, convocado por el Ayuntamiento de Reus el año 2006, planteaba la construcción de un conjunto multifuncional formado por el nuevo Archivo comarcal, un CAP y unas viviendas tuteladas. En el año 2009 finalizaron las obras del archivo y en el 2010 se iniciaron las obras de la segunda fase, finalmente constituida por un CAP y una residencia asistida para mayores.
En cuanto al encaje, el principal reto fue el de compatibilizar los diferentes usos dada la diversidad de los programas. En el caso del archivo su carácter de gran contenedor y las restricciones a la entrada de luz por motivos de conservación, conducían a la formalización de un volumen contundente y hermético. Su inserción en el entorno urbano no resultaba fácil. El conjunto se formaliza como un volumen abstracto, envuelto por una piel de chapa perforada que en determinados puntos desaparece para conseguir la permeabilidad deseada. Un gran voladizo, fruto de la obligatoriedad de recular la alineación en PB por la calle Sant Antoni M.ª Claret, remarca el acceso al archivo con la voluntad de abrirlo a la ciudadanía.
Información general
Archivo comarcal del Baix Camp
AÑO
Opción de visitas
Dirección
c/ Sant Antoni Maria Claret, 3
43204 Reus - Tarragona
Latitud: 41.153776062
Longitud: 1.1140594914
Clasificación
Sistema constructivo
Estructura mixta acero y hormigón, fachada ventilada con piel de chapa perforada
Superficie construida
Estudios de arquitectura participantes
Información aportada por
Oliveras Boix Arquitectes
-
ARXIU REUS_Situación - Oliveras Boix Arquitectes -
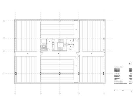
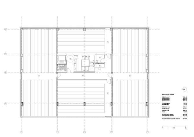
ARXIU REUS_Planta segunda - Oliveras Boix Arquitectes
Ubicación
Itinerarios
https://content.gnoss.ws/carq/https://content.gnoss.ws/carq//imagenes/Documentos/imgsem/5d/5d89/5d89f810-d290-4c5c-a5d8-b2570412ca88/ead11665-b635-4369-b1ee-0c8305f3b6bf.jpg, 0000006608/FAD2011_22_ARCHIVO_DUCH_01.jpg
https://content.gnoss.ws/carq/https://content.gnoss.ws/carq//imagenes/Documentos/imgsem/5d/5d89/5d89f810-d290-4c5c-a5d8-b2570412ca88/d1f81732-e98b-483f-8bf1-17d3bb38fdfe.jpg, 0000006608/FAD2011_22_ARCHIVO_DUCH_03.jpg
https://content.gnoss.ws/carq//imagenes/Documentos/imgsem/5d/5d89/5d89f810-d290-4c5c-a5d8-b2570412ca88/b6f9e9b3-8b1d-4454-a460-20b8645c81fa.jpg, 0000006608/04_ARXIU REUS_planta segona.jpg
https://content.gnoss.ws/carq//imagenes/Documentos/imgsem/5d/5d89/5d89f810-d290-4c5c-a5d8-b2570412ca88/bd57bf5d-7a22-462a-8843-8e4192353745.jpg, 0000006608/01_ARXIU REUS_situacio.jpg
https://content.gnoss.ws/carq//imagenes/Documentos/imgsem/5d/5d89/5d89f810-d290-4c5c-a5d8-b2570412ca88/aafc194f-2a8d-42f1-9a71-ce6ea92dddca.jpg, 0000006608/02_ARXIU REUS_planta baixa.jpg
https://content.gnoss.ws/carq//imagenes/Documentos/imgsem/5d/5d89/5d89f810-d290-4c5c-a5d8-b2570412ca88/f8e53836-9443-4c18-9da4-8d564c3521ef.jpg, 0000006608/00_ARXIU REUS_vista conjunt.jpg
https://content.gnoss.ws/carq//imagenes/Documentos/imgsem/5d/5d89/5d89f810-d290-4c5c-a5d8-b2570412ca88/65932c28-02a7-439a-bd2c-3e9280cc6495.jpg, 0000006608/00_ARXIU REUS_alcat conjunt.jpg
https://content.gnoss.ws/carq//imagenes/Documentos/imgsem/5d/5d89/5d89f810-d290-4c5c-a5d8-b2570412ca88/44f1f7b1-0095-47d7-9e3f-745217586c8f.jpg, 0000006608/05_ARXIU REUS_seccio cons.jpg
https://content.gnoss.ws/carq//imagenes/Documentos/imgsem/5d/5d89/5d89f810-d290-4c5c-a5d8-b2570412ca88/da8cf93a-e91c-4264-9aa7-2089e76dc18e.jpg, 0000006608/00_ARXIU REUS_planta conjunt.jpg
https://content.gnoss.ws/carq//imagenes/Documentos/imgsem/5d/5d89/5d89f810-d290-4c5c-a5d8-b2570412ca88/1b485c09-3ca1-4d8b-adf8-f8f276e62ec4.jpg, 0000006608/03_ARXIU REUS_planta primera.jpg



