Cargando...
Itinerario
Una quinta parte de la electricidad que se consume en España procede de las centrales nucleares construidas entre los años sesenta y ochenta del pasado siglo. Pese a que estas instalaciones fueron clave para la modernización del país desde el tardofranquismo —en un momento en que España buscaba incorporarse a circuitos internacionales tras décadas de aislamiento—, lo cierto es que han permanecido envueltas en un fuerte dispositivo de aislamiento que las ha vuelto inaccesibles y, para la mayoría de la población, prácticamente desconocidas.
Esta condición de aislamiento no ha sido solo física, también cultural, y se intensificó en los años setenta. Coincidiendo con la expansión de la energía nuclear en numerosos países tras la primera crisis del petróleo, comenzó a gestarse una percepción pública crítica, alimentada tal vez por los peligros que escondía esta tecnología. El escritor e historiador suizo Henri Stierlin apuntaba por aquel entonces que todo lo relacionado con la energía nuclear ya estaba politizado y era absolutamente tabú. En su ensayo Vers une architecture de l’âge nucléaire?, sin embargo, abrió el interrogante sobre la existencia de una arquitectura en aquel programa tan hermético, comparable a la que existía en otras plantas de producción energética.
Lo que entonces se formuló como una cuestión inconclusa, este itinerario, después de cincuenta años, lo presenta como un hecho consolidado. Este recorrido busca mirar más allá de las restricciones que han envuelto a estas centrales para poner en relación y recorrer unas arquitecturas que durante décadas permanecieron aisladas e inaccesibles. Ante la imposibilidad de acceder directamente a los recintos donde se ubican estas obras, el recorrido se construirá de la mano de los arquitectos que participaron y así poder adentrarse, no solo en aquello que construyeron, sino además, en propuestas que nunca llegaron a construir y otras tantas que, si nada cambia, serán derribadas en un futuro cercano sin dejar apenas rastro.
Itinerario comisariado por
Carlos Gonzalvo
Es doctor arquitecto por la Universitat Rovira i Virgili. Actualmente es profesor investigador en los estudios de Arquitectura de la Universitat de Girona. Su investigación aborda el paisaje de la producción energética, con especial atención a las complejas relaciones que establecen sus estructuras con la práctica de la arquitectura cuando son desmanteladas. Su trabajo ha sido difundido en artículos, talleres, conferencias y libros colectivos, y ha sido reconocida y premiada por el COAM, la Fundación Alejandro de la Sota, la Sociedad Nuclear Española y la Escuela Politécnica de Madrid. Entre sus últimas contribuciones destacan “Marine Decolonization”, en 100 Words for Water (Zúrich: Lars Müller, 2025), “The Mark of Water on Spain’s Vandellòs Nuclear Power Plant”, en The Nuclear-Water Nexus (Cambridge, Mass.: MIT Press, 2025) y “Shaping the Void”, en Radioactive Traces (Madrid: Medialab Matadero, 2024).
Medios de transporte
Un mundo restringido. Frente a la imagen puramente tecnológica que está asociada a las instalaciones nucleares, en los proyectos de los años sesenta participaron algunos de los arquitectos más destacados del pasado siglo. La arquitectura buscó así mediar con la producción de energía, proporcionarle una imagen, por así decirlo, al introducir recursos plásticos que dotaban de mayor complejidad a unas estructuras que trascendían a escala geográfica. Ejemplo de ello fue la central nuclear de Vandellòs, en Tarragona, proyectada por Antonio Bonet Castellana en 1967, en un territorio donde la producción de energía coexistía con el turismo internacional en la costa, impulsado por la apertura del país.
Bonet Castellana propuso transformar el edificio del reactor en una enorme escultura frente al mar. Con ello, dejaba de ser solo una máquina con la última tecnología y pasaba a funcionar como un elemento que al mismo tiempo ordenaba el paisaje. Este cuidado formal traspasó los límites de la instalación y resultó útil, además, para formalizar los edificios del poblado donde se alojó buena parte del personal técnico y sus familias. Es un hecho menos conocido que los primeros proyectos nucleares contaron con los mismos arquitectos para construir también el lugar de residencia. Así, en Vandellòs, se levantaron viviendas y equipamientos que configuraron un núcleo casi autónomo que establecía cierta continuidad formal con el lugar de trabajo.
A pesar del interés plástico, esta propuesta nunca llegó a realizarse en su totalidad. Aun así, pese a las limitaciones tanto técnicas como económicas, en el poblado se conservó al menos la cubierta de la escuela resuelta mediante troncos de pirámide que identificaban cada aula. En el recinto de la central, se construyeron tres pabellones de planta circular y trazos curvos, destinados a albergar funciones auxiliares, como el control meteorológico, la centralización de las llamadas y la vigilancia del acceso. En estos edificios construidos a escala humana, Bonet Castellana pudo retomar esa arquitectura capaz de dar forma a programas técnicos tan complejos sin renunciar a su dimensión más expresiva.
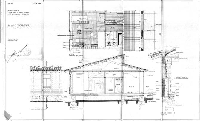
Las centrales nucleares que buscaron alejarse de la costa se insertaron, por lo general, en enclaves que contaban con embalses y centrales hidroeléctricas, consolidando en cierta manera esas áreas rurales como territorios destinados a la producción eléctrica. Este fue el caso de la central nuclear de Santa María de Garoña, situada junto al embalse de Sobrón, en Burgos. Para alojar al equipo técnico, Julio Bravo Giralt construyó un poblado en la periferia de Miranda de Ebro a unos treinta kilómetros. Los edificios principales de la central nuclear y una residencia fueron encomendados, en este caso, a Ignacio Álvarez Castelao en 1965.
La residencia fue levantada con técnicas y materiales locales, adoptando la apariencia de una construcción tradicional agazapada en el paisaje. Frente a la imagen tecnológica que suele estar asociada a lo nuclear, Álvarez Castelao recurrió a un lenguaje vernáculo similar al que puede encontrarse en las pedanías del entorno. En contraste con la residencia, aunque visible desde sus terrazas, se levantaron los edificios de la central, con un lenguaje próximo al brutalismo y que asumía sin disimulo la escala y la condición técnica de la nuclear, llevando al límite la tensión entre las dos partes que definen el programa de las primeras instalaciones, en concreto, entre lo doméstico y lo industrial, entre lo local y lo tecnológico.
Por su parte, la central nuclear de José Cabrera —también conocida como Zorita— se construyó en las proximidades del embalse de Bolarque, en Guadalajara. El conjunto fue proyectado por Antonio Fernández Alba en 1965 e incluía un poblado y el edificio del reactor, separados escasos metros. Este último edificio presentaba un estriado vertical que decoraba su envolvente y la hacía vibrar bajo el fuerte sol de la Alcarria. Durante las obras, Fernández Alba valoró junto con la dirección de las obras la posibilidad de ornamentarla en colaboración con Joaquín Vaquero.
Con su demolición en el verano de 2022, esta central se convirtió en un ejemplo de cómo a las restricciones propias del mundo nuclear, se suma hoy el hecho consumado de que algunas de ellas han sido abandonadas cuando no directamente demolidas. A excepción del poblado y los pabellones de Vandellòs, declarados recientemente como parte del patrimonio a conservar, la continuidad de las otras arquitecturas recorridas en este itinerario parece poco probable. De esta manera, el cierre de centrales que está previsto concluir en las próximas décadas está añadiendo irremediablemente una nueva capa de invisibilidad a las arquitecturas de la nuclear.
Al otro lado de la valla. En las instalaciones nucleares existe otra serie de propuestas que no buscaron dar solución a la escala plástica del conjunto, ni siquiera abordar el problema de cómo transformaban el paisaje estas enormes estructuras, ni resolver el alojamiento del equipo técnico. Algunas arquitecturas han explorado desde las últimas décadas los límites de las centrales nucleares —sean físicos o temporales— para tratar de diluirlos y hacerlos más permeables. Esta serie de propuestas evita el aislamiento y trata de mostrar las plantas desde nuevas perspectivas o simplemente planteando formas distintas de relación.
Una de estas propuestas fue realizada por Néstor Basterretxea en 2001 sobre los restos de la central nuclear de Lemóniz, en la costa vizcaína. Lemóniz iba a ser la cuarta central construida en España, pero nunca entró en servicio debido a la moratoria nuclear y a la violenta presión ejercida por la banda terrorista ETA. Basterretxea propuso transformar los restos frente al mar en una ciudad de la energía, la ciencia y el medio ambiente, llamada Atlántida. Aunque no prosperó, su objetivo era revertir el secretismo y el control instaurado en torno a esta instalación, transformar las estructuras mediante la escultura y generar una sensibilidad hacia un lugar que había permanecido hasta entonces restringido.
Una aproximación similar estuvo presente en el Museo de la Energía proyectado en 2011 por Josep Camps y Olga Felip, de Arquitecturia, en la central nuclear de Ascó, en Tarragona. Situado en un punto elevado entre la población y la central, el nuevo edificio ofrecía una cara menos conocida de la instalación, con la enorme chimenea de trazo hiperbólico como telón de fondo. Con esta obra, se despejaba el camino para acercar al público este tipo de planta y que pudiera conocerse de primera mano cómo se generaba energía con esta tecnología, algo ya presente en el centro de información que Fernández Alba tampoco llegó a construir en Zorita.
Con este cambio en la forma de relacionarse con lo nuclear, este itinerario regresa al poblado de Vandellòs, conocido también como Poblat Hifrensa. Tras el cierre de la central nuclear en los años noventa, su situación aislada y desconectada del municipio cambió por completo. Las viviendas pasaron a manos privadas y los equipamientos se cedieron al municipio, convirtiéndose desde entonces en edificios de uso público, aunque algunos de ellos quedaron abandonados y otros descuidados.
En 2019, en la escuela de este poblado se inauguró el Petit Museu – Escola Àster, un espacio expositivo destinado a devolver la dignidad a esta obra, al tiempo que construir un relato más complejo sobre su pasado. La intervención, realizada por Juan Fernando Ródenas, Gilermo Zuaznabar y por mi, rehabilitó dos de las doce aulas bajo las conocidas pirámides. Una de ellas acoge una exposición permanente dedicada a la obra de Bonet Castellana en la central y el poblado, mientras que la otra se restauró a su estado original, preservando, en el mismo lugar, buena parte de la memoria formada en este conjunto.
Ante el previsible derribo de las centrales y sus poblados, en Restos nucleares propongo una lectura crítica que recorre desde el contexto cultural en el que las primeras instalaciones fueron construidas hasta el proceso de desmantelamiento en curso. Lejos de asumir su desaparición como un desenlace inevitable, el libro abre un debate necesario sobre su porvenir y el papel que puede desempeñar la arquitectura. La investigación se acompaña de una serie de fotografías de Manolo Laguillo, que documentan el estado más reciente de estos conjuntos.
Con esta serie de obras, este itinerario parece llegar a su final con una aproximación distinta, casi opuesta, a la que ha predominado en su inicio. Al reunir, documentar, poner en relación y recorrer arquitecturas que durante décadas permanecieron aisladas, y en cierta manera desconocidas, se ha construido una contra-historia rica, pública y compartida sobre unos restos que paradójicamente tienden hacia el futuro. Hacer visibles estas arquitecturas no supone, sin embargo, eximirlas de una lectura crítica más profunda, sino incorporarlas por el momento a un relato más amplio y atento sobre la energía nuclear. Este hecho resulta especialmente relevante en un momento como el actual en el que se debate sobre la conservación de ciertas estructuras nucleares y la pertinencia de continuar con esta tecnología.



