Cargando...
“(…) El ambiente local, tanto en lo que al paisaje se refiere, las condiciones climatológicas de mucha dureza, la topografía, etc.
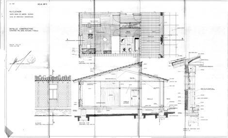
nos ha orientado hacia un desarrollo horizontal en una sola planta, enlazando los edificios que forman un conjunto en el que al mismo tiempo disfrutan de independencia. Su situación al borde de la explanada, además de favorecer esta independencia en las zonas privadas y de facilitar la vista del Paisaje y la Central, permite desde ésta una agradable visión del conjunto en el que hemos acusado el juego de volúmenes, planos y sombras. En la zona de acceso y con el fin de procurar mayor aislamiento de las carreteras, se dispone un amplio espacio abierto ajardinado y con posibilidad de emplazar una zona de deporte. El chopo será el árbol que ordene y presida paisajísticamente toda la zona. Tanto la residencia, como las viviendas se ordenarán alrededor de un patio central ajardinado, de cuyas conocidas ventajas destacan la intimidad, defensa del viento y aprovechamiento de sol. Sobre el corte del terreno y como complemento abierto de las Zonas de Estar se sitúan amplias terrazas cubiertas. (…) Siguiendo igual criterio que en la Composición arquitectónica, se emplearán los materiales locales con criterios y técnicas modernas”.
.
Información general
Edificio para Residencia de Nuclenor en Santa María de Garoña
AÑO
Dirección
Central Nuclear, s/n
09212 Santa María de Garoña - Burgos -Santa María de Garoña
Latitud: 42.775258676
Longitud: -3.211187
Arquitectos participantes
Información aportada por
Carlos Gonzalvo
-
Ignacio Álvarez Castelao, Archivo Histórico del Colegio de Arquitectos de Asturias. -
Folleto Nuclenor, US Department of Energy
Ubicación
Itinerarios
https://content.gnoss.ws/carq/https://content.gnoss.ws/carq//imagenes/Documentos/imgsem/08/0853/0853c0c9-b707-4cf3-803e-779cd1b9a10e/250b7927-787c-463a-82b1-5006283fc0d8.jpg, 0000108940/doe-01.jpg
https://content.gnoss.ws/carq/https://content.gnoss.ws/carq//imagenes/Documentos/imgsem/08/0853/0853c0c9-b707-4cf3-803e-779cd1b9a10e/d5fa182c-ba75-4181-8c90-61e40a62e8f2.jpg, 0000108940/libro-01.jpg
https://content.gnoss.ws/carq/https://content.gnoss.ws/carq//imagenes/Documentos/imgsem/08/0853/0853c0c9-b707-4cf3-803e-779cd1b9a10e/16aecd11-e6b2-4f9e-af13-813bf4314946.jpg, 0000108940/libro-02.jpg
https://content.gnoss.ws/carq//imagenes/Documentos/imgsem/08/0853/0853c0c9-b707-4cf3-803e-779cd1b9a10e/5cdfb0f4-e876-40f2-94b9-924532cd3165.jpg, 0000108940/sinfuente-01.jpg
https://content.gnoss.ws/carq//imagenes/Documentos/imgsem/08/0853/0853c0c9-b707-4cf3-803e-779cd1b9a10e/437fac5b-1103-4717-9d17-b37ec625ee90.jpg, 0000108940/oviedo-02.jpg
https://content.gnoss.ws/carq//imagenes/Documentos/imgsem/08/0853/0853c0c9-b707-4cf3-803e-779cd1b9a10e/ea675f93-f14f-43a2-9a36-2af95ed5d05a.jpg, 0000108940/oviedo-03.jpg
https://content.gnoss.ws/carq//imagenes/Documentos/imgsem/08/0853/0853c0c9-b707-4cf3-803e-779cd1b9a10e/a9034ffe-9ca1-4c99-b09b-1789b543ebe7.jpg, 0000108940/oviedo-01.jpg




