Cargando...
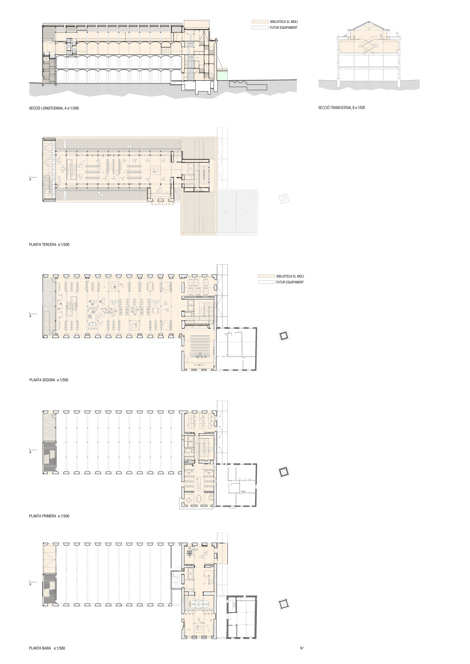
El proyecto de la biblioteca El Molí en Molins de Rei se sitúa en la antigua fábrica de tejidos Ferrer y Mora, de 1858. La biblioteca se ubica en las dos plantas superiores del edificio. Esta situación define una nueva sección de la cubierta, que recupera el perfil original de la fábrica, incorpora las vistas e iluminación natural y permite disfrutar de las terrazas desde esta planta.
Como el Paseo del Terraplè no sigue la traza de El Molí, el edificio ha quedado en una posición urbana singular. Así, la fachada sur se ha convertido en un elemento visual de referencia de la fábrica. El antiguo testero, prácticamente ciego, se transforma en una galería que filtra la luz hacia el interior, tamizada por un muro de celosía cerámica. En este espacio hay una zona de lectura exterior, la escalera y los accesos del futuro equipamiento municipal.
El núcleo de comunicaciones verticales y los conductos de las instalaciones se ubican en el centro del edificio. Este nuevo espacio, que comunica las distintas plantas, tiene un sistema de pasarelas cruzadas alrededor de una escalera suspendida del techo, que facilita la comprensión inmediata del edificio a través de las relaciones visuales y las transparencias que se establecen entre los distintos niveles.
Se han conservado las huellas y texturas del pasado en los muros; y las irregularidades donde se anclaban poleas y correas. El proyecto se centra en la restauración de los materiales de fachada y la recuperación de la estructura original interior, mediante un refuerzo superior con hormigón aligerado sobre las bóvedas tabicadas cerámicas, soportadas por columnas de fundición, sobre las que se apoyan vigas de madera existentes. Una parte del sótano se ha incorporado a la planta baja, para que puedan verse las antiguas galerías, incluida una turbina doble original de la fábrica, hallada y desenterrada durante las obras.
Información general
Biblioteca El Molí
AÑO
Estado
Obra protegida
Opción de visitas
Dirección
plza. 1 d'Octubre de 2017, 2
08750 Molins de Rei - Barcelona
Latitud: 41.412854127
Longitud: 2.0146619583
Clasificación
Sistema constructivo
Nave: Estructura original interior de bóveda tabicada cerámica, columnas de fundición sobre vigas de madera. Fachada muro mamposteria piedra y estuco. Ampliación: estructura de acero y forjados chapa colaborante. Fachada celosia cerámica y vidrio.
Superficie construida
Arquitectos participantes
Colaboradores
Juan Ignacio Eskubi, Arquitecto (Estructura)
Maria Sánchez y Mireia Díaz (AMB) (Arquitectas técnicas)
Rosa Bertran (AMB) (Arquitecta)
Jesús de Santiago, Ingeniero (Instalaciones)
Estudios de arquitectura participantes
Información aportada por
Antonio Montes-AMB
-
Detalle galeria fachada sur - Antonio Montes-AMB -
Plantas y secciones - Antonio Montes-AMB -
Fotografia fachada sur - Jordi Surroca
Ubicación
Itinerarios
https://content.gnoss.ws/carq/https://content.gnoss.ws/carq//imagenes/Documentos/imgsem/18/1818/1818a0fc-468b-48d7-86ac-4edfe71074e5/5cc39ee2-e954-4036-8248-a0db6067190e.jpg, 0000000150/El_Moli_F5-0865_02_Jordi Surroca.jpg
https://content.gnoss.ws/carq/https://content.gnoss.ws/carq//imagenes/Documentos/imgsem/18/1818/1818a0fc-468b-48d7-86ac-4edfe71074e5/827f2c01-6dd9-46f1-98f1-de9dd5808776.jpg, 0000000150/El_Moli_F5-0865_3_Jordi Surroca.jpg
https://content.gnoss.ws/carq/https://content.gnoss.ws/carq//imagenes/Documentos/imgsem/18/1818/1818a0fc-468b-48d7-86ac-4edfe71074e5/10b74958-241c-415a-9f7e-d0c002d67eba.jpg, 0000000150/_R2A2786_04_Jordi Surroca.jpg
https://content.gnoss.ws/carq/https://content.gnoss.ws/carq//imagenes/Documentos/imgsem/18/1818/1818a0fc-468b-48d7-86ac-4edfe71074e5/85bcc941-9f64-4462-9f53-ea80c6d9d53a.jpg, 0000000150/_R2A2883_Jordi Surroca.jpg
https://content.gnoss.ws/carq/https://content.gnoss.ws/carq//imagenes/Documentos/imgsem/18/1818/1818a0fc-468b-48d7-86ac-4edfe71074e5/04ef002e-1e67-46d9-aa2e-418d546d78a7.jpg, 0000000150/_R2A3040_80-97_Jordi_Surroca.jpg
https://content.gnoss.ws/carq/https://content.gnoss.ws/carq//imagenes/Documentos/imgsem/18/1818/1818a0fc-468b-48d7-86ac-4edfe71074e5/2dcd895c-13b0-4706-89f4-f39e8575ba4b.jpg, 0000000150/el moli biblioteca.jpg
https://content.gnoss.ws/carq/https://content.gnoss.ws/carq//imagenes/Documentos/imgsem/18/1818/1818a0fc-468b-48d7-86ac-4edfe71074e5/d5d11c13-a532-4ab8-8534-b1f0e1242438.jpg, 0000000150/El_Moli_F5-389_421_32_Jordi Surroca.jpg
https://content.gnoss.ws/carq/https://content.gnoss.ws/carq//imagenes/Documentos/imgsem/18/1818/1818a0fc-468b-48d7-86ac-4edfe71074e5/40012935-2292-4779-b4b6-ec61cc717b91.jpg, 0000000150/_R2A2817_27-30_Jordi Surroca.jpg
https://content.gnoss.ws/carq//imagenes/Documentos/imgsem/18/1818/1818a0fc-468b-48d7-86ac-4edfe71074e5/761ef54c-b774-4ac6-b734-d8d4440098c5.jpg, 0000000150/Biblioteca Moli_plantas_secciones.jpg
https://content.gnoss.ws/carq//imagenes/Documentos/imgsem/18/1818/1818a0fc-468b-48d7-86ac-4edfe71074e5/15e0d83e-3a39-4e96-81b4-a0b8c2318ed4.jpg, 0000000150/Biblioteca Moli-Detalle Fachada.jpg
https://content.gnoss.ws/carq//imagenes/Documentos/imgsem/18/1818/1818a0fc-468b-48d7-86ac-4edfe71074e5/07eecdac-0df7-4470-976a-a4b2e5cbdd38.jpg, 0000000150/Biblioteca Moli-Axonometria Fachada Sur.jpg
https://content.gnoss.ws/carq//imagenes/Documentos/imgsem/18/1818/1818a0fc-468b-48d7-86ac-4edfe71074e5/19c9f244-247f-43df-a1f9-5c42d472d3f7.jpg, 0000000150/Biblioteca Moli-Axonometria Instalaciones.jpg




