Cargando...
Como dos manos que se entrelazan, los llenos y los vacíos construyen un conjunto donde los edificios y el espacio que los envuelve establecen un intercambio de presencias, una respiración, en el que el espacio público ya no es tan solo lo que queda entre lo construido.
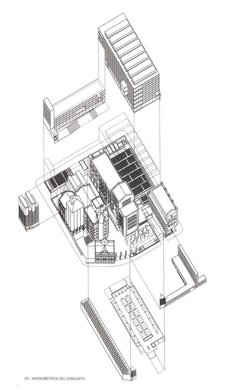
Desde el origen del proyecto, en la propuesta del concurso público de 1994, los poderosos e inquietantes espacios libres de la antigua fábrica de cerveza han ordenado las diferentes actividades mediante la construcción de vacíos, intersticios y expansiones de superficies, a la búsqueda de revalorizar un espacio exterior que la modernidad entendió como vacío “tal cual “. El espacio entre los edificios se convierte así en lo definitorio del trazado, valorando múltiples recorridos y planos de actividad e información que modifican el carácter lineal del conjunto, al establecer invisibles vínculos entre las diferentes construcciones. El proyecto del Centro de El Águila, desde su gestación, ha tratado de poner sobre el tablero de juego el compromiso que las administraciones públicas tienen de afrontar sus equipamientos desde una vocación de sostenibilidad, estableciendo una estrategia de conservación y renovación proporcionada (control de las demoliciones y reciclado de materiales), de minimización del impacto ambiental en la forma explotación de recursos materiales (construcción sana), de optimización de recursos energéticos por medio de la incorporación de sistemas pasivos (preclimatización por lago de aire), de regulación de la energía (optimización de consumos y concienciación de usuarios), y control de los residuos (tratamiento de aguas residuales y residuos sólidos). Para Madrid, el conjunto integrado por el Archivo y la Biblioteca Regional de la Comunidad de Madrid debe ser como dos manos entrelazadas, símbolo del acuerdo que entre medio ambiente y arquitectura debe producirse en el futuro que ya está aquí. Una mano que protege el patrimonio histórico y la otra que cobija la cultura, nuestro patrimonio del futuro.
Información general
Biblioteca y Archivo Regional de la Comunidad de Madrid en la antigua fábrica de cervezas El Águila
AÑO
Opción de visitas
Dirección
c/ de Ramírez de Prado, 3
28045 Madrid - Madrid
Latitud: 40.399750613
Longitud: -3.690574896
Clasificación
Superficie construida
Colaboradores
Juan Carlos Corona (Aparejador)
Gráfica Futura (Diseño gráfico)
Estudios de arquitectura participantes
Información aportada por
Colegio Oficial de Arquitectos de Madrid (COAM)
-
Luis Asín -
Mansilla + Tuñón Arquitectos -
Sección transversal - Mansilla + Tuñón Arquitectos -
Luis Asín -
Luis Asín -
Luis Asín
Ubicación
Itinerarios
https://content.gnoss.ws/carq/https://content.gnoss.ws/carq//imagenes/Documentos/imgsem/7b/7b11/7b11cacb-f0e7-4754-9a30-8a32b4121ce5/e246a40c-b564-4bfc-a5be-50c243eb79ee.jpg, 0000054422/revista-arquitectura-2002- 11 .jpg
https://content.gnoss.ws/carq/https://content.gnoss.ws/carq//imagenes/Documentos/imgsem/7b/7b11/7b11cacb-f0e7-4754-9a30-8a32b4121ce5/ab212d23-374f-4953-b051-3771a38f3d15.jpg, 0000054422/revista-arquitectura-2002- 3 .jpg
https://content.gnoss.ws/carq/https://content.gnoss.ws/carq//imagenes/Documentos/imgsem/7b/7b11/7b11cacb-f0e7-4754-9a30-8a32b4121ce5/6f4c6cd5-95f2-4fe0-9bcf-b2a471b8f294.jpg, 0000054422/revista-arquitectura-2002- 4 .jpg
https://content.gnoss.ws/carq/https://content.gnoss.ws/carq//imagenes/Documentos/imgsem/7b/7b11/7b11cacb-f0e7-4754-9a30-8a32b4121ce5/9e6d4672-adf0-431e-8b90-3380e9257e12.jpg, 0000054422/revista-arquitectura-2002- 5 .jpg
https://content.gnoss.ws/carq/https://content.gnoss.ws/carq//imagenes/Documentos/imgsem/7b/7b11/7b11cacb-f0e7-4754-9a30-8a32b4121ce5/bd769f70-206d-4899-b277-1312573fc680.jpg, 0000054422/revista-arquitectura-2002- 6 .jpg
https://content.gnoss.ws/carq/https://content.gnoss.ws/carq//imagenes/Documentos/imgsem/7b/7b11/7b11cacb-f0e7-4754-9a30-8a32b4121ce5/93e2c310-fb9d-4e61-9390-5a6996ce6f56.jpg, 0000054422/revista-arquitectura-2002- 7 .jpg
https://content.gnoss.ws/carq/https://content.gnoss.ws/carq//imagenes/Documentos/imgsem/7b/7b11/7b11cacb-f0e7-4754-9a30-8a32b4121ce5/bd6343d0-7547-49ee-a24b-699088685a05.jpg, 0000054422/revista-arquitectura-2002- 8 .jpg
https://content.gnoss.ws/carq/https://content.gnoss.ws/carq//imagenes/Documentos/imgsem/7b/7b11/7b11cacb-f0e7-4754-9a30-8a32b4121ce5/7520b33a-fdf2-49d0-9c4f-443e5dee91e6.jpg, 0000054422/revista-arquitectura-2002- 9 .jpg
https://content.gnoss.ws/carq/https://content.gnoss.ws/carq//imagenes/Documentos/imgsem/7b/7b11/7b11cacb-f0e7-4754-9a30-8a32b4121ce5/28ffc495-4530-4b49-8c74-c6e38e8d7081.jpg, 0000054422/revista-arquitectura-2002- 10 .jpg
https://content.gnoss.ws/carq/https://content.gnoss.ws/carq//imagenes/Documentos/imgsem/7b/7b11/7b11cacb-f0e7-4754-9a30-8a32b4121ce5/e4b094c2-6959-4fff-8efb-5482c6867056.jpg, 0000054422/revista-arquitectura-2002- 12 .jpg
https://content.gnoss.ws/carq/https://content.gnoss.ws/carq//imagenes/Documentos/imgsem/7b/7b11/7b11cacb-f0e7-4754-9a30-8a32b4121ce5/d435f89f-ba09-4c38-8766-9565b754606c.jpg, 0000054422/revista-arquitectura-2002- 13 .jpg
https://content.gnoss.ws/carq/https://content.gnoss.ws/carq//imagenes/Documentos/imgsem/7b/7b11/7b11cacb-f0e7-4754-9a30-8a32b4121ce5/b3049fd3-897c-4258-96dc-50a9614b18c9.jpg, 0000054422/revista-arquitectura-2002- 14 .jpg
https://content.gnoss.ws/carq/https://content.gnoss.ws/carq//imagenes/Documentos/imgsem/7b/7b11/7b11cacb-f0e7-4754-9a30-8a32b4121ce5/b5f172b4-a7ad-470e-a0d8-c91cdd75970d.jpg, 0000054422/revista-arquitectura-2002- 15 .jpg
https://content.gnoss.ws/carq/https://content.gnoss.ws/carq//imagenes/Documentos/imgsem/7b/7b11/7b11cacb-f0e7-4754-9a30-8a32b4121ce5/98efe3a4-7542-483a-9fdf-231e5c37570f.jpg, 0000054422/revista-arquitectura-2002- 16 .jpg
https://content.gnoss.ws/carq/https://content.gnoss.ws/carq//imagenes/Documentos/imgsem/7b/7b11/7b11cacb-f0e7-4754-9a30-8a32b4121ce5/0a52622c-31f8-43b9-80d1-4256656bc880.jpg, 0000054422/revista-arquitectura-2002- 2 .jpg
https://content.gnoss.ws/carq//imagenes/Documentos/imgsem/7b/7b11/7b11cacb-f0e7-4754-9a30-8a32b4121ce5/c90d0229-cf68-4c2b-b698-63f0cd42961d.jpg, 0000054422/revista-arquitectura-2002- 6 s .jpg
https://content.gnoss.ws/carq//imagenes/Documentos/imgsem/7b/7b11/7b11cacb-f0e7-4754-9a30-8a32b4121ce5/89c9ec46-c005-4dbd-a171-3d8fbae9ba07.jpg, 0000054422/revista-arquitectura-2002- 1 .jpg
https://content.gnoss.ws/carq//imagenes/Documentos/imgsem/7b/7b11/7b11cacb-f0e7-4754-9a30-8a32b4121ce5/847ab379-5ca1-4acc-892b-31a265946859.jpg, 0000054422/revista-arquitectura-2002- 6 pb .jpg
https://content.gnoss.ws/carq//imagenes/Documentos/imgsem/7b/7b11/7b11cacb-f0e7-4754-9a30-8a32b4121ce5/14fb3bd8-ebe9-43fd-ac72-023861d74f34.jpg, 0000054422/revista-arquitectura-2002- 6 slon .jpg







