Cargando...
El proyecto de construcción de una nave para usos agrícolas se enmarca en la iniciativa Bioalverde, que desde 2015 gestiona huertos ecológicos promoviendo la formación y la inclusión social. Este proyecto busca aprovechar la práctica arquitectónica para crear un espacio que facilite la incorporación de personas en situación de vulnerabilidad, combinando el aprendizaje práctico con el desarrollo de habilidades laborales y sociales.
La construcción contó con la participación de más de setecientas personas, uniendo a talleres de formación de Cáritas, universidades, institutos, asociaciones de ayuda a inmigrantes y familias que ya habían colaborado en proyectos previos de Recetas Urbanas. Este enfoque participativo y comunitario permitió que personas de diversos orígenes, capacidades y culturas trabajaran juntas, generando una estructura física y un entorno inclusivo y enriquecedor.
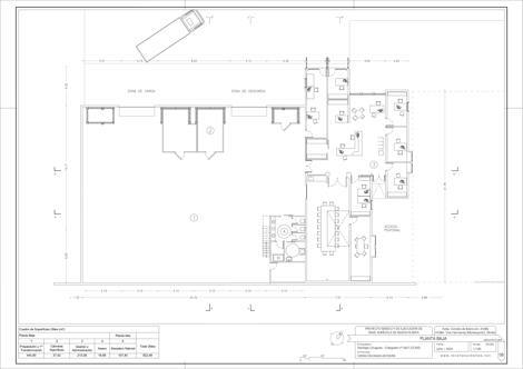
Para el desarrollo del proyecto, se diseñaron sistemas constructivos que requerían un trabajo en equipo intensivo. En muchos momentos, fue necesaria la colaboración simultánea de un gran número de participantes para lograr construir y elevar, de manera manual y colectiva, la estructura de madera más grande realizada hasta ahora: una nave con espacios sociales anexos de 850 m². Este proceso promovió el aprendizaje práctico y fomentó vínculos personales, entendimiento mutuo y un mayor reconocimiento de las diferencias y problemáticas individuales de los participantes.
El impacto educativo y social del proyecto ha sido significativo. Más allá de crear convivencias enriquecedoras, permitió la contratación de personas que finalizaron los cursos de formación asociados. En el ámbito académico, institutos de secundaria y universidades de ciudades como Sevilla, Málaga, Alcalá de Henares, Montevideo y Estados Unidos integraron estas experiencias de construcción participativa como parte de sus actividades formativas. Aunque no forman parte de los programas académicos tradicionales, estas prácticas han sido valoradas por docentes y estudiantes como esenciales, subrayando su relevancia en el aprendizaje y confirmando la necesidad de incluirlas en futuros planes de estudio.
Este proyecto demuestra cómo la arquitectura y la construcción pueden ser herramientas poderosas para la inclusión social, el aprendizaje colectivo y la transformación comunitaria, aportando beneficios duraderos tanto a las personas implicadas como al entorno educativo y social.
Información general
Bioalverde. Empresa de inserción sociolaboral
AÑO
Dirección
Avda. Condes de Ibarra, s/n
41089 Dos Hermanas, Montequito - Sevilla -Dos Hermanas, Montequito
Latitud: 37.331363123
Longitud: -5.937393837
Sistema constructivo
Construcción participativa en seco con formación al empleo y alegría.
Superficie construida
Arquitectos participantes
Estudios de arquitectura participantes
Información aportada por
Recetas Urbanas
Enlaces web
-
Plantas proyecto - Recetas Urbanas -
Recetas Urbanas -
Recetas Urbanas
Ubicación
https://content.gnoss.ws/carq/https://content.gnoss.ws/carq//imagenes/Documentos/imgsem/bd/bd08/bd0804c5-e3aa-4cf1-a30f-9ea80cfb7f0e/1f52ede5-ead0-4921-b7a9-d9cb7ce54fc7.jpg, 0000107629/2.jpg
https://content.gnoss.ws/carq/https://content.gnoss.ws/carq//imagenes/Documentos/imgsem/bd/bd08/bd0804c5-e3aa-4cf1-a30f-9ea80cfb7f0e/018dd510-cfbd-483c-8070-8919ed37c007.jpg, 0000107629/8 (2).jpg
https://content.gnoss.ws/carq/https://content.gnoss.ws/carq//imagenes/Documentos/imgsem/bd/bd08/bd0804c5-e3aa-4cf1-a30f-9ea80cfb7f0e/e985792b-602e-445a-bc54-c898332761e4.jpg, 0000107629/1 (1).jpg
https://content.gnoss.ws/carq/https://content.gnoss.ws/carq//imagenes/Documentos/imgsem/bd/bd08/bd0804c5-e3aa-4cf1-a30f-9ea80cfb7f0e/1005fbcd-4e6c-4d42-983f-9ccd79cfd236.jpg, 0000107629/2 (2).jpg
https://content.gnoss.ws/carq/https://content.gnoss.ws/carq//imagenes/Documentos/imgsem/bd/bd08/bd0804c5-e3aa-4cf1-a30f-9ea80cfb7f0e/ff995a57-df3c-4e6d-9869-f432042e1a55.jpg, 0000107629/2 (3).jpg
https://content.gnoss.ws/carq/https://content.gnoss.ws/carq//imagenes/Documentos/imgsem/bd/bd08/bd0804c5-e3aa-4cf1-a30f-9ea80cfb7f0e/f381b5d4-b58f-4c8d-91af-76e2ac3450b9.jpg, 0000107629/3 (1).jpg
https://content.gnoss.ws/carq/https://content.gnoss.ws/carq//imagenes/Documentos/imgsem/bd/bd08/bd0804c5-e3aa-4cf1-a30f-9ea80cfb7f0e/76adbff4-3de5-4136-9a8c-389288c9d8d0.jpg, 0000107629/3 (2).jpg
https://content.gnoss.ws/carq/https://content.gnoss.ws/carq//imagenes/Documentos/imgsem/bd/bd08/bd0804c5-e3aa-4cf1-a30f-9ea80cfb7f0e/8d222a75-1fb9-43ae-87cf-8b42a901cf4f.jpg, 0000107629/5 (1).jpg
https://content.gnoss.ws/carq/https://content.gnoss.ws/carq//imagenes/Documentos/imgsem/bd/bd08/bd0804c5-e3aa-4cf1-a30f-9ea80cfb7f0e/d3ae8df7-9b9f-459f-9b5e-edcfd8218dd5.jpg, 0000107629/5 (2).jpg
https://content.gnoss.ws/carq/https://content.gnoss.ws/carq//imagenes/Documentos/imgsem/bd/bd08/bd0804c5-e3aa-4cf1-a30f-9ea80cfb7f0e/6b8ede78-6ae5-416c-afe5-fe95fa0470bd.jpg, 0000107629/5 (6).jpg
https://content.gnoss.ws/carq/https://content.gnoss.ws/carq//imagenes/Documentos/imgsem/bd/bd08/bd0804c5-e3aa-4cf1-a30f-9ea80cfb7f0e/28da773a-8ac4-470c-9b86-3eaa42e3ce56.jpg, 0000107629/5 (7).jpg
https://content.gnoss.ws/carq/https://content.gnoss.ws/carq//imagenes/Documentos/imgsem/bd/bd08/bd0804c5-e3aa-4cf1-a30f-9ea80cfb7f0e/166a1a44-a642-4173-bc05-58b5c8c6050e.jpg, 0000107629/5 (9).jpg
https://content.gnoss.ws/carq/https://content.gnoss.ws/carq//imagenes/Documentos/imgsem/bd/bd08/bd0804c5-e3aa-4cf1-a30f-9ea80cfb7f0e/7ea4910c-33ab-4d39-95a6-c5d45b897774.jpg, 0000107629/6 (2).jpg
https://content.gnoss.ws/carq/https://content.gnoss.ws/carq//imagenes/Documentos/imgsem/bd/bd08/bd0804c5-e3aa-4cf1-a30f-9ea80cfb7f0e/3047533f-263e-448b-9134-6f23569b4516.jpg, 0000107629/6 (3).jpg
https://content.gnoss.ws/carq/https://content.gnoss.ws/carq//imagenes/Documentos/imgsem/bd/bd08/bd0804c5-e3aa-4cf1-a30f-9ea80cfb7f0e/b5e39247-aba4-4395-a1ae-5213392c53f6.jpg, 0000107629/6 (5).jpg
https://content.gnoss.ws/carq/https://content.gnoss.ws/carq//imagenes/Documentos/imgsem/bd/bd08/bd0804c5-e3aa-4cf1-a30f-9ea80cfb7f0e/d2f2ab65-b738-4ea3-973b-f39205dcd8dc.jpg, 0000107629/6 (7).jpg
https://content.gnoss.ws/carq/https://content.gnoss.ws/carq//imagenes/Documentos/imgsem/bd/bd08/bd0804c5-e3aa-4cf1-a30f-9ea80cfb7f0e/fd15dc97-b38a-4117-acda-874dd0c97ef7.jpg, 0000107629/6 (8).jpg
https://content.gnoss.ws/carq/https://content.gnoss.ws/carq//imagenes/Documentos/imgsem/bd/bd08/bd0804c5-e3aa-4cf1-a30f-9ea80cfb7f0e/47be6cdc-182e-40ea-8745-4ec26ec39b29.jpg, 0000107629/7 (4).jpg
https://content.gnoss.ws/carq/https://content.gnoss.ws/carq//imagenes/Documentos/imgsem/bd/bd08/bd0804c5-e3aa-4cf1-a30f-9ea80cfb7f0e/a09882e0-6e18-484a-9b0f-f6a2793c4ff7.jpeg, 0000107629/7 (7).jpeg
https://content.gnoss.ws/carq/https://content.gnoss.ws/carq//imagenes/Documentos/imgsem/bd/bd08/bd0804c5-e3aa-4cf1-a30f-9ea80cfb7f0e/32ac1aa3-f1d0-4977-b922-c0a9ba5543c2.jpg, 0000107629/7 (8).jpg
https://content.gnoss.ws/carq//imagenes/Documentos/imgsem/bd/bd08/bd0804c5-e3aa-4cf1-a30f-9ea80cfb7f0e/215f654d-43f1-4119-8f2d-c853002c171f.jpg, 0000107629/Plantas Proyecto Ejecutado_page-0003.jpg
https://content.gnoss.ws/carq//imagenes/Documentos/imgsem/bd/bd08/bd0804c5-e3aa-4cf1-a30f-9ea80cfb7f0e/5861022c-e351-49c0-8ec7-dbf89c0f5ba7.jpg, 0000107629/Plantas Proyecto Ejecutado_page-0001.jpg
https://content.gnoss.ws/carq//imagenes/Documentos/imgsem/bd/bd08/bd0804c5-e3aa-4cf1-a30f-9ea80cfb7f0e/51e28893-35e4-4de4-9cc1-7e96ba5aed32.jpg, 0000107629/Plantas Proyecto Ejecutado_page-0002.jpg




